¿·ÃÛ°ì¸Í·ú½»Âð

½Ð±À»ÔÈåÀîÄ®½ÐÀ¾4020-54

¤ªµ¤¤ËÆþ¤ê¤ËÄɲà °õºþ²èÌ̤ò³«¤¯

²Á³Ê 3,600Ëü±ß ¸ò¾Ä¾õ¶· ÈÎÇäÃæ ¸½¶· ʬ¾ùÃæ ¤³¤Îʪ·ï¤Ë¤Ä¤¤¤ÆÌ䤤¹ç¤ï¤»¤ë
  • Îä˼
  • ÃÈ˼
  • ¥¨¥¢¥³¥ó
  • µëÅò
  • ¥ª¡¼¥ëÅŲ½
  • ¼ýǼ¥¹¥Ú¡¼¥¹
  • Àö¾ôÊØºÂ
  • ÃÈË¼ÊØºÂ
  • ¥Õ¥í¡¼¥ê¥ó¥°
  • IH¥¯¥Ã¥­¥ó¥°¥Ò¡¼¥¿¡¼
  • ¥·¥¹¥Æ¥à¥­¥Ã¥Á¥ó
  • ÀìÍÑÄí
  • Íá¼¼´¥Áç
  • Äɤ¤¿æ¤­
  • ÆüÅö¤¿¤êÎɹ¥
  • ´×ÀŽ»ÂðÃÏ
  • Ãó¼Ö¾ì£²Âæ°Ê¾å

¼Ì¿¿ ¼Ì¿¿¤ò¥¯¥ê¥Ã¥¯¤¹¤ë¤ÈÂ礭¤¯É½¼¨¤µ¤ì¤Þ¤¹¡£

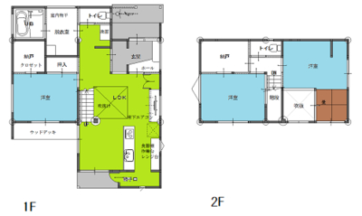
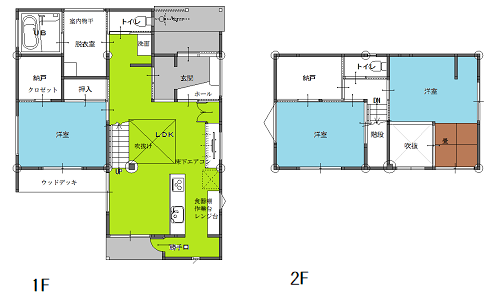
´Ö¼è¤ê¿Þ

¼Ì¿¿

´Ö¼è¤ê¿Þ

ʪ·ï¾ÜºÙ¾ðÊó

ʪ·ïÈÖ¹æ BZ0001 ½êºßÃÏ ½Ð±À»ÔÈåÀîÄ®½ÐÀ¾4020-54
¼ïÊÌ ¿·ÃÛ°ì¸Í·ú½»Â𠹽¤ ÌÚ¤£²³¬·ú
´Ö¼è¤ê £³£Ì£Ä£Ë ·úÃÛǯ·î 2024ǯ4·î
·úʪÌÌÀÑ 105.35­Ö¡Ê31.87ÄÚ¡Ë ÅÚÃÏÌÌÀÑ 224.42­Ö¡Ê67.89ÄÚ¡Ë
»äÆ»ÌÌÀÑ ·ú¤Ú¤¤Î¨ 80¡ó
ÍÆÀÑΨ 200¡ó ÀÜÆ»¾õ¶· ËÌÌÌ¡¦¡¦6£í¡¡ÆîÌÌ¡¦¡¦7.92£í
Êݾڶ⡦Éß¶â ¸¢Íø¶â
¤½¤Î¾°ì»þ¶â Ãó¼Ö¾ì Í­(ÎÁ¶â¹þ¤ß)
Ãó¼Ö¾ìÀâÌÀ ÉßÃÏÆâ¤Ë£³Âæ¼ýǼ²Ä ¶è²èÈÖ¹æ
¼è°ú·ÁÂÖ Çä¼ç ÅÚÃϸ¢Íø ½êÍ­¸¢
¹ñÅÚË¡ÆÏ½Ð ÉÔÍ× ±èÀþ¸òÄÌ £Ê£Ò
°úÅϤ· ¨»þ ÃÏÌÜ ÂðÃÏ
ÅÔ»Ô·×²è ¤½¤Î¾ ÍÑÅÓÃÏ°è »ØÄê¤Ê¤·
ÃÏÌÜÀâÌÀ
°Ý»ý´ÉÍýÈñÅù
¼ÚÃÏ´ü´Ö¡¦ÃÏÂå
ÃÏÀª Ê¿ÃÏ
´ÉÍý·ÁÂÖ¡¢¾ò·ïÅù
ºÇ´ó±Ø JR»³±¢ËÜÀþ¡Öľ¹¾±Ø¡×ÅÌÊâ22ʬ¡ÊÌó1.8£ë£í¡Ë
¥Ð¥¹Åù¸òÄ̼êÃÊ
¹»¶è ½Ð±À»ÔΩÀ¾Ìî¾®³Ø¹»¡ÊÌó1.2£ë£í¡Ë¡¢½Ð±À»ÔΩÈåÀîÀ¾Ãæ³Ø¹»¡ÊÌó2.7£ë£í¡Ë
¾Ò²ð¥µ¥¤¥È
¹­¹ðÍ­¸ú´ü´Ö
´Ö¼è¤êÆâÌõ Íμ¼6Ä¡1¼¼¡¦Íμ¼8Ä¡1¼¼Ç¼¸Í2¥ö½ê²¡Æþ1¥ö½ê¥È¥¤¥ì2¥ö½êLDKÀöÌÌ/æ°á
È÷¹Í ¡Ö¤¿¤À¤¤¤Þ¡ª¡×
¡Ö¤¤¤Ã¤Æ¤­¤Þ¤¹¡ª¡×¤È¸¼´Ø¤«¤é²È²¤Î´é¤ò°ì˾¤Ç¤­¤ë½»Âð¤Ç¤¹¡£
Ǽ¸Í¤â³ÆÉô²°¤ËÀߤ±¡¢Êª¤¬Áý¤¨¤Æ¤âÉô²°¤ÎÃæ¤Ï¤¤¤Ä¤â¥¹¥Ã¥­¥ê¡£

Å纬¸©¤Î¹ñ»ºÌÚºà¤ò¤Õ¤ó¤À¤ó¤Ë»ÈÍѤ·¡¢Ìڤλý¤Äí÷¤·¤µ¤È¹á¤ê¤ÎÃæ¤ËÊñ¤Þ¤ì¤¿°Â¿´´¶¤Ç°ìÆü¤ÎÈè¤ì¤òÌþ¤·¤Æ¤¯¤ì¡¢ÌÀÆü¤Î¥¨¥Í¥ë¥®¡¼¤òÍ¿¤¨¤Æ¤¯¤ì¤Þ¤¹¡£
¿¦¿Í¤µ¤ó¤¿¤Á¤Îµ»¤¬¥­¥é¥ê¤È¸÷¤ë¡¢¼«Á³Ë­¤«¤Ê½»¤Þ¤¤¤¬½ÐÍè¤Þ¤·¤¿¡£

¡ØÉÞ·¬¤Î²È¡Ù¤Ï¡¢¤½¤³¤Ë½»¤à¿Í¤ÎÆü¾ï¤¬¾Ð´é¤Ç¤¢¤ê¤Þ¤¹¤è¤¦¤Ë¤È¤Î»×¤¤¤ò¹þ¤á¤ÆÂ¤¤ê¤Þ¤¹¡£

¡¦°ì³¬ÆâÊɤϡ¢·¾ÁôÅڻž夲
¡¦Æó³¬ÆâÊɤϡ¢Ï»æÅ½¤ê
¡¦Á´¾²¡¢Ìµ¹¤ºà
¡¦³°Êɤϡ¢¥é¥¹¥â¥ë¥¿¥ëÅɤê¡Êº¸´±¤µ¤ó¤¬ÃúÇ«¤Ë»Å¾å¤²¤Æ¤ª¤ê¤Þ¤¹¡£ ÊɰìÌ̤Ĥʤ®ÌܤΤʤ¤Èþ¤·¤¤»Å¾å¤²¤Ï¡¢ÅɤêÊɤÎÌ¥ÎϤΰì¤Ä¤Ç¤¹¡£¤Þ¤µ¤Ë¿¦¿Í¤Î¤Ê¤»¤ë¶È¡Ë
¡¦²°º¬¤Ï¡¢Àн£´¤Éø¤­



¢¨³°¹½¡¢½ô·ÐÈñ¡¢¥¨¥¢¥³¥ó´Þ¤à

ʪ·ïÈÖ¹æ BZ0001
½êºßÃÏ ½Ð±À»ÔÈåÀîÄ®½ÐÀ¾4020-54
¼ïÊÌ ¿·ÃÛ°ì¸Í·ú½»Âð
¹½Â¤ ÌÚ¤£²³¬·ú
´Ö¼è¤ê £³£Ì£Ä£Ë
·úÃÛǯ·î 2024ǯ4·î
·úʪÌÌÀÑ 105.35­Ö¡Ê31.87ÄÚ¡Ë
ÅÚÃÏÌÌÀÑ 224.42­Ö¡Ê67.89ÄÚ¡Ë
»äÆ»ÌÌÀÑ
·ú¤Ú¤¤Î¨ 80¡ó
ÍÆÀÑΨ 200¡ó
ÀÜÆ»¾õ¶· ËÌÌÌ¡¦¡¦6£í¡¡ÆîÌÌ¡¦¡¦7.92£í
Êݾڶ⡦Éß¶â
¸¢Íø¶â
¤½¤Î¾°ì»þ¶â
Ãó¼Ö¾ì Í­(ÎÁ¶â¹þ¤ß)
Ãó¼Ö¾ìÀâÌÀ ÉßÃÏÆâ¤Ë£³Âæ¼ýǼ²Ä
¶è²èÈÖ¹æ
¼è°ú·ÁÂÖ Çä¼ç
ÅÚÃϸ¢Íø ½êÍ­¸¢
¹ñÅÚË¡ÆÏ½Ð ÉÔÍ×
±èÀþ¸òÄÌ £Ê£Ò
°úÅϤ· ¨»þ
ÃÏÌÜ ÂðÃÏ
ÅÔ»Ô·×²è ¤½¤Î¾
ÍÑÅÓÃÏ°è »ØÄê¤Ê¤·
ÃÏÌÜÀâÌÀ
°Ý»ý´ÉÍýÈñÅù
¼ÚÃÏ´ü´Ö¡¦ÃÏÂå
ÃÏÀª Ê¿ÃÏ
´ÉÍý·ÁÂÖ¡¢¾ò·ïÅù
ºÇ´ó±Ø JR»³±¢ËÜÀþ¡Öľ¹¾±Ø¡×ÅÌÊâ22ʬ¡ÊÌó1.8£ë£í¡Ë
¥Ð¥¹Åù¸òÄ̼êÃÊ
¹»¶è ½Ð±À»ÔΩÀ¾Ìî¾®³Ø¹»¡ÊÌó1.2£ë£í¡Ë¡¢½Ð±À»ÔΩÈåÀîÀ¾Ãæ³Ø¹»¡ÊÌó2.7£ë£í¡Ë
¾Ò²ð¥µ¥¤¥È
¹­¹ðÍ­¸ú´ü´Ö
´Ö¼è¤êÆâÌõ Íμ¼6Ä¡1¼¼¡¦Íμ¼8Ä¡1¼¼Ç¼¸Í2¥ö½ê²¡Æþ1¥ö½ê¥È¥¤¥ì2¥ö½êLDKÀöÌÌ/æ°á
È÷¹Í ¡Ö¤¿¤À¤¤¤Þ¡ª¡×
¡Ö¤¤¤Ã¤Æ¤­¤Þ¤¹¡ª¡×¤È¸¼´Ø¤«¤é²È²¤Î´é¤ò°ì˾¤Ç¤­¤ë½»Âð¤Ç¤¹¡£
Ǽ¸Í¤â³ÆÉô²°¤ËÀߤ±¡¢Êª¤¬Áý¤¨¤Æ¤âÉô²°¤ÎÃæ¤Ï¤¤¤Ä¤â¥¹¥Ã¥­¥ê¡£

Å纬¸©¤Î¹ñ»ºÌÚºà¤ò¤Õ¤ó¤À¤ó¤Ë»ÈÍѤ·¡¢Ìڤλý¤Äí÷¤·¤µ¤È¹á¤ê¤ÎÃæ¤ËÊñ¤Þ¤ì¤¿°Â¿´´¶¤Ç°ìÆü¤ÎÈè¤ì¤òÌþ¤·¤Æ¤¯¤ì¡¢ÌÀÆü¤Î¥¨¥Í¥ë¥®¡¼¤òÍ¿¤¨¤Æ¤¯¤ì¤Þ¤¹¡£
¿¦¿Í¤µ¤ó¤¿¤Á¤Îµ»¤¬¥­¥é¥ê¤È¸÷¤ë¡¢¼«Á³Ë­¤«¤Ê½»¤Þ¤¤¤¬½ÐÍè¤Þ¤·¤¿¡£

¡ØÉÞ·¬¤Î²È¡Ù¤Ï¡¢¤½¤³¤Ë½»¤à¿Í¤ÎÆü¾ï¤¬¾Ð´é¤Ç¤¢¤ê¤Þ¤¹¤è¤¦¤Ë¤È¤Î»×¤¤¤ò¹þ¤á¤ÆÂ¤¤ê¤Þ¤¹¡£

¡¦°ì³¬ÆâÊɤϡ¢·¾ÁôÅڻž夲
¡¦Æó³¬ÆâÊɤϡ¢Ï»æÅ½¤ê
¡¦Á´¾²¡¢Ìµ¹¤ºà
¡¦³°Êɤϡ¢¥é¥¹¥â¥ë¥¿¥ëÅɤê¡Êº¸´±¤µ¤ó¤¬ÃúÇ«¤Ë»Å¾å¤²¤Æ¤ª¤ê¤Þ¤¹¡£ ÊɰìÌ̤Ĥʤ®ÌܤΤʤ¤Èþ¤·¤¤»Å¾å¤²¤Ï¡¢ÅɤêÊɤÎÌ¥ÎϤΰì¤Ä¤Ç¤¹¡£¤Þ¤µ¤Ë¿¦¿Í¤Î¤Ê¤»¤ë¶È¡Ë
¡¦²°º¬¤Ï¡¢Àн£´¤Éø¤­



¢¨³°¹½¡¢½ô·ÐÈñ¡¢¥¨¥¢¥³¥ó´Þ¤à

377 since 2025-10-09

¼è¤ê°·¤¤Å¹ÊÞ

Í­¸Â²ñ¼Ò¡¡ÉÞ·¬·úÀß

¢©693-0073¡¡Å纬¸©½Ð±À»ÔÀ¾ÎÓÌÚÄ®£´£³¡Ý£±
[ÌȵöÈÖ¹æ]Å纬¸©Ãλö¡Ê6¡Ë992¹æ
¸ø±×¼ÒÃÄË¡¿Í¡¡Á´¹ñÂðÃÏ·úʪ¼è°ú¶ÈÊݾڶ¨²ñ²ñ°÷

TEL
0853-22-6090
¤´Ï¢Íí¤ÎºÝ¤Ï¡Ö»³±¢ÉÔÆ°»º¥Ê¥Ó¤ò¸«¤¿¡×¤È¸À¤¦¤È¥¹¥à¡¼¥º¤Ç¤¹
FAX
0853-22-4480

¤³¤ÎŹÊޤξܺ٤ò¸«¤ë