¿·ÃÛ°ì¸Í·ú½»Âð
ÆîÊ¿Âæ¥Æ¥é¥¹£±¹æÃÏ¡¦¹âÀǽ½»Â𡦼ýǼ½¼¼Â¡¦½ñºØÍ
| ²Á³Ê 2,880Ëü±ß ¸ò¾Ä¾õ¶· ÈÎÇäÃæ ¸½¶· ·úÀßÃæ | ¤³¤Îʪ·ï¤Ë¤Ä¤¤¤ÆÌ䤤¹ç¤ï¤»¤ë |
- µëÅò
- ¥ª¡¼¥ëÅŲ½
- ¼ýǼ¥¹¥Ú¡¼¥¹
- ¾²²¼¼ýǼ
- Àö¾ôÊØºÂ
- ÃÈË¼ÊØºÂ
- ¥Õ¥í¡¼¥ê¥ó¥°
- IH¥¯¥Ã¥¥ó¥°¥Ò¡¼¥¿¡¼
- ¥·¥¹¥Æ¥à¥¥Ã¥Á¥ó
- TV¥â¥Ë¥¿¡¼¥Õ¥©¥ó
- Íá¼¼´¥Áç
- ÆüÅö¤¿¤êÎɹ¥
- ´×ÀŽ»ÂðÃÏ
- Ãó¼Ö¾ì£²Âæ°Ê¾å
¼Ì¿¿
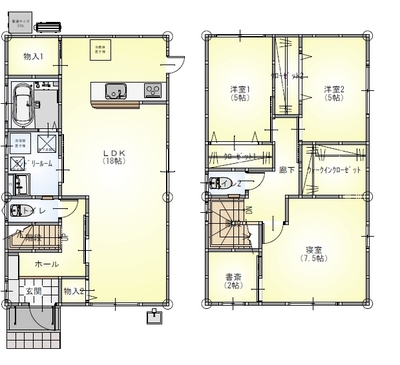
´Ö¼è¤ê¿Þ
ʪ·ï¾ÜºÙ¾ðÊó
| ʪ·ïÈÖ¹æ | EL0052 | ½êºßÃÏ | ¾¾¹¾»ÔÆîÊ¿Âæ16-5 |
|---|---|---|---|
| ¼ïÊÌ | ¿·ÃÛ°ì¸Í·ú½»Âð | ¹½Â¤ | ÌÚ¤£²³¬·ú |
| ´Ö¼è¤ê | £³£Ì£Ä£Ë | ·úÃÛǯ·î | 2026ǯ4·î |
| ·úʪÌÌÀÑ | 99.36Ö¡Ê30.06ÄÚ¡Ë | ÅÚÃÏÌÌÀÑ | 155.29Ö¡Ê46.98ÄÚ¡Ë |
| »äÆ»ÌÌÀÑ | ·ú¤Ú¤¤Î¨ | 60¡ó | |
| ÍÆÀÑΨ | 200¡ó | ÀÜÆ»¾õ¶· | ÆîÀ¾Â¦¸øÆ»5.0£í¤Ë7.5£íÀÜÆ» |
| Êݾڶ⡦Éß¶â | ¸¢Íø¶â | ||
| ¤½¤Î¾°ì»þ¶â | ¿åÆ»Ééô¶â14Ëü3Àé±ß | Ãó¼Ö¾ì | Í(ÎÁ¶â¹þ¤ß) |
| Ãó¼Ö¾ìÀâÌÀ | Ãó¼Ö¾ì£²Âæ | ¶è²èÈÖ¹æ | |
| ¼è°ú·ÁÂÖ | Çä¼ç | ÅÚÃϸ¢Íø | ½ê͸¢ |
| ¹ñÅÚË¡ÆÏ½Ð | ÉÔÍ× | ±èÀþ¸òÄÌ | £Ê£Ò |
| °úÅϤ· | ´°À®¸å | ÃÏÌÜ | ÂðÃÏ |
| ÅԻԷײè | »Ô³¹²½¶è°è | ÍÑÅÓÃϰè | Â裱¼ïÃæ¹âÁؽ»µïÀìÍÑÃϰè |
| ÃÏÌÜÀâÌÀ | |||
| °Ý»ý´ÉÍýÈñÅù | |||
| ¼ÚÃÏ´ü´Ö¡¦ÃÏÂå | |||
| ÃÏÀª | |||
| ´ÉÍý·ÁÂÖ¡¢¾ò·ïÅù | |||
| ºÇ´ó±Ø | |||
| ¥Ð¥¹Åù¸òÄ̼êÃÊ | ÆîÊ¿ÂæÆþ¸ý¥Ð¥¹ÄäÅÌÊâ3ʬ | ||
| ¹»¶è | ÆâÃæ¸¶¾®³Ø¹»¡¦Âè°ìÃæ³Ø¹» | ||
| ¾Ò²ð¥µ¥¤¥È | https://matsue-housedo.com/new_ikkodate/4377936/ | ||
| ¹¹ð͸ú´ü´Ö | |||
| ´Ö¼è¤êÆâÌõ | £³LDK¡Ü½ñºØ¡ÜWIC | ||
| È÷¹Í | ½ñºØ¡¢¥¦¥©¡¼¥¯¥¤¥ó¥¯¥í¡¼¥¼¥Ã¥È¤Î¤¢¤ë¤ª²È¡£ ¤»¤Ã¤«¤¯¸Í·ú¤ò¹ØÆþ¤¹¤ë¤Ê¤é¡¢¼ýǼËÉ٤ˡª ¼«Ê¬¤Î¥¹¥Ú¡¼¥¹¤¬Íߤ·¤¤¡ª¡ª¤½¤ó¤ÊÊý¤Ë¥ª¥¹¥¹¥á¤Î´Ö¼è¤ê¤Ç¤¹¡£ LDK¹¤á¡¦¼ç¿²¼¼¹¤á¡¦³Æ³¬¥È¥¤¥ì¡¦¼ýǼ½¼¼Â¤Ê¤É¤Ê¤É ÂÑ¿ÌÅùµé£³¡ÊºÇ¹â¡Ë¤Ç°Â¿´¡£ZEH´ð½à¤òËþ¤¿¤·¤¿¹âÃÇÇ®¤Ç¡¢²÷Ŭ¾Ê¥¨¥Í¡£ ·úÃÛ³ÎǧÈֹ桡Âè07-294¹æ |
||
| ʪ·ïÈÖ¹æ | EL0052 | ||
|---|---|---|---|
| ½êºßÃÏ | ¾¾¹¾»ÔÆîÊ¿Âæ16-5 | ||
| ¼ïÊÌ | ¿·ÃÛ°ì¸Í·ú½»Âð | ||
| ¹½Â¤ | ÌÚ¤£²³¬·ú | ||
| ´Ö¼è¤ê | £³£Ì£Ä£Ë | ||
| ·úÃÛǯ·î | 2026ǯ4·î | ||
| ·úʪÌÌÀÑ | 99.36Ö¡Ê30.06ÄÚ¡Ë | ||
| ÅÚÃÏÌÌÀÑ | 155.29Ö¡Ê46.98ÄÚ¡Ë | ||
| »äÆ»ÌÌÀÑ | |||
| ·ú¤Ú¤¤Î¨ | 60¡ó | ||
| ÍÆÀÑΨ | 200¡ó | ||
| ÀÜÆ»¾õ¶· | ÆîÀ¾Â¦¸øÆ»5.0£í¤Ë7.5£íÀÜÆ» | ||
| Êݾڶ⡦Éß¶â | |||
| ¸¢Íø¶â | |||
| ¤½¤Î¾°ì»þ¶â | ¿åÆ»Ééô¶â14Ëü3Àé±ß | ||
| Ãó¼Ö¾ì | Í(ÎÁ¶â¹þ¤ß) | ||
| Ãó¼Ö¾ìÀâÌÀ | Ãó¼Ö¾ì£²Âæ | ||
| ¶è²èÈÖ¹æ | |||
| ¼è°ú·ÁÂÖ | Çä¼ç | ||
| ÅÚÃϸ¢Íø | ½ê͸¢ | ||
| ¹ñÅÚË¡ÆÏ½Ð | ÉÔÍ× | ||
| ±èÀþ¸òÄÌ | £Ê£Ò | ||
| °úÅϤ· | ´°À®¸å | ||
| ÃÏÌÜ | ÂðÃÏ | ||
| ÅԻԷײè | »Ô³¹²½¶è°è | ||
| ÍÑÅÓÃϰè | Â裱¼ïÃæ¹âÁؽ»µïÀìÍÑÃϰè | ||
| ÃÏÌÜÀâÌÀ | |||
| °Ý»ý´ÉÍýÈñÅù | |||
| ¼ÚÃÏ´ü´Ö¡¦ÃÏÂå | |||
| ÃÏÀª | |||
| ´ÉÍý·ÁÂÖ¡¢¾ò·ïÅù | |||
| ºÇ´ó±Ø | |||
| ¥Ð¥¹Åù¸òÄ̼êÃÊ | ÆîÊ¿ÂæÆþ¸ý¥Ð¥¹ÄäÅÌÊâ3ʬ | ||
| ¹»¶è | ÆâÃæ¸¶¾®³Ø¹»¡¦Âè°ìÃæ³Ø¹» | ||
| ¾Ò²ð¥µ¥¤¥È | https://matsue-housedo.com/new_ikkodate/4377936/ | ||
| ¹¹ð͸ú´ü´Ö | |||
| ´Ö¼è¤êÆâÌõ | £³LDK¡Ü½ñºØ¡ÜWIC | ||
| È÷¹Í | ½ñºØ¡¢¥¦¥©¡¼¥¯¥¤¥ó¥¯¥í¡¼¥¼¥Ã¥È¤Î¤¢¤ë¤ª²È¡£ ¤»¤Ã¤«¤¯¸Í·ú¤ò¹ØÆþ¤¹¤ë¤Ê¤é¡¢¼ýǼËÉ٤ˡª ¼«Ê¬¤Î¥¹¥Ú¡¼¥¹¤¬Íߤ·¤¤¡ª¡ª¤½¤ó¤ÊÊý¤Ë¥ª¥¹¥¹¥á¤Î´Ö¼è¤ê¤Ç¤¹¡£ LDK¹¤á¡¦¼ç¿²¼¼¹¤á¡¦³Æ³¬¥È¥¤¥ì¡¦¼ýǼ½¼¼Â¤Ê¤É¤Ê¤É ÂÑ¿ÌÅùµé£³¡ÊºÇ¹â¡Ë¤Ç°Â¿´¡£ZEH´ð½à¤òËþ¤¿¤·¤¿¹âÃÇÇ®¤Ç¡¢²÷Ŭ¾Ê¥¨¥Í¡£ ·úÃÛ³ÎǧÈֹ桡Âè07-294¹æ |
||
5140 since 2025-08-19
¼è¤ê°·¤¤Å¹ÊÞ
¥Ï¥¦¥¹¥É¥¥¡¡¾¾¹¾¡ÊÀ¾ÆüËÜ¥Û¡¼¥à¡Ê³ô¡Ë¡Ë
¢©690-0017¡¡¾¾¹¾»ÔÀ¾ÄÅÅÄ5ÃúÌÜ1-1
[ÌȵöÈÖ¹æ]¹ñÅÚ¸òÄÌÂç¿Ã(3)Âè8218¹æ
°µÅÝŪ¤Êʪ·ï¿ô¡ª
¥Þ¥¤¥Ú¡¼¥¸ÅÐÏ¿¤Ç300·ï°Ê¾å¤Îʪ·ï¾ðÊó¤ò¸ø³«Ã桪
ÉÔÆ°»ºÃç²ð¤ò¤Ï¤¸¤á¡¢¿·ÃÛ¤ä¥ê¥Õ¥©¡¼¥à¤Ê¤É½»¤Þ¤¤¤Î¤³¤È¤Ê¤é¤Ê¤ó¤Ç¤â¥Ï¥¦¥¹¥É¥¥¾¾¹¾Å¹¤Ø¤ªÇ¤¤»¤¯¤À¤µ¤¤¤Þ¤»¡£
·úÀ߶ȵö²Ä¡¡¡¡¡¡¡¡ ¡¡¡¡¹ñÅÚ¸òÄÌÂç¿Ãµö²Ä¡ÊÈÌ-5¡ËÂè18110¹æ
Æóµé·úÃۻλö̳½ê¡¡¡¡¡¡ Å纬¸©Ãλö¡Ê6¡ËÂè4748¹æ
¡Ê¸ø¼Ò¡ËÅ纬¸©ÂðÃÏ·úʪ¼è°ú¶È¶¨²ñ²ñ°÷
¡Ê¸ø¼Ò¡ËÁ´¹ñÂðÃÏ·úʪ¼è°ú¶ÈÊݾڶ¨²ñ²ñ°÷
¡Ê¸ø¼Ò¡ËÀ¾ÆüËÜÉÔÆ°»ºÎ®Ä̵¡¹½²ñ°÷
¡Ê¸ø¼Ò¡ËÃæ¹ñÃ϶èÉÔÆ°»º¸øÀµ¼è°ú¶¨µÄ²ñ²ÃÌÁ

- 0852-33-7778
¤´Ï¢Íí¤ÎºÝ¤Ï¡Ö»³±¢ÉÔÆ°»º¥Ê¥Ó¤ò¸«¤¿¡×¤È¸À¤¦¤È¥¹¥à¡¼¥º¤Ç¤¹ - FAX
- 0852-33-7735






















