![]()
Ãæ¸Å°ì¸Í·ú½»Âð
ÊÆ»Ò»Ô³§À¸¿·ÅÄ2ÃúÌÜ
- ²Á³Ê
- 1,980Ëü±ß
- ¸ò¾Ä¾õ¶·
- ÈÎÇäÃæ
- ¸½¶·
- ¶õ¼¼Ãæ
- ÅÔ»Ô¥¬¥¹
- Àö¾ôÊØºÂ
- ¥·¥¹¥Æ¥à¥¥Ã¥Á¥ó
| ʪ·ïÈÖ¹æ | CK0010 | ½êºßÃÏ | ÊÆ»Ò»Ô³§À¸¿·ÅÄ2ÃúÌÜ13-21 | ||
|---|---|---|---|---|---|
| ¼ïÊÌ | Ãæ¸Å°ì¸Í·ú½»Âð | ¹½Â¤ | ÌÚ¤£²³¬·ú | ´Ö¼è¤ê | £¶£Ë°Ê¾å |
| ·úÃÛǯ·î | 1993ǯ1·î | ·úʪÌÌÀÑ | 169.34Ö¡Ê51.23ÄÚ¡Ë | ÅÚÃÏÌÌÀÑ | 295Ö¡Ê89.24ÄÚ¡Ë |
| »äÆ»ÌÌÀÑ | ·ú¤Ú¤¤Î¨ | 60¡ó | ÍÆÀÑΨ | 200¡ó | |
| ÀÜÆ»¾õ¶· | Åì¦ Éý°÷6m | Êݾڶ⡦Éß¶â | |||
| ¸¢Íø¶â | ¤½¤Î¾°ì»þ¶â | ||||
| Ãó¼Ö¾ì | Í(ÎÁ¶â¹þ¤ß) | Ãó¼Ö¾ìÀâÌÀ | |||
| ¶è²èÈÖ¹æ | ¼è°ú·ÁÂÖ | ÇÞ²ð | ÅÚÃϸ¢Íø | ½ê͸¢ | |
| ¹ñÅÚË¡ÆÏ½Ð | ¤½¤Î¾ | ±èÀþ¸òÄÌ | ¤½¤Î¾ | °úÅϤ· | ÁêÃÌ |
| ÃÏÌÜ | ÂðÃÏ | ÃÏÌÜÀâÌÀ | ÂðÃÏ | ||
| ÅԻԷײè | »Ô³¹²½¶è°è | ÍÑÅÓÃϰè | Â裱¼ïÃæ¹âÁؽ»µïÀìÍÑÃϰè | ||
| °Ý»ý´ÉÍýÈñÅù | ¸ÇÄê»ñ»ºÀÇ:Ìó76200±ß/ǯ´Ö | ||||
| ¼ÚÃÏ´ü´Ö¡¦ÃÏÂå | |||||
| ÃÏÀª | |||||
| ´ÉÍý·ÁÂÖ¡¢¾ò·ïÅù | |||||
| ºÇ´ó±Ø | JRÅ컳¸ø±à±Ø | ||||
| ¥Ð¥¹Åù¸òÄ̼êÃÊ | Ï«ºÒɱ¡¥Ð¥¹Ää¤Þ¤ÇÅÌÊâÌó8ʬ | ||||
| ¹»¶è | Ê¡À¸Åì¾®³Ø¹»¡¡Ê¡À¸Ãæ³Ø¹» | ||||
| ¹¹ð͸ú´ü´Ö | |||||
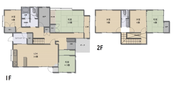
| ´Ö¼è¤êÆâÌõ | LDK:Ìó16Ä¡ ÍÎ:Ìó6Ä¡ ÏÂ:Ìó4.5Ä¡ ÏÂ:Ìó10Ä¡/1F¡¢ÍÎ:Ìó9Ä¡ ÍÎ:Ìó6Ä¡ ÏÂ:Ìó6Ä¡/2F | ||||
| È÷¹Í | ³§À¸¿·ÅÄ2ÃúÌܤδ×ÀŤʽ»Â𳹤ˤ¢¤ë6SLDK¤Î¸Í·úʪ·ï¡ª ¤ªÉô²°¿ô¤¬¤¿¤¯¤µ¤ó¤´¤¶¤¤¤Þ¤¹¡ª ¥Ï¥¦¥¹¥¯¥ê¡¼¥Ë¥ó¥°ºÑ¤ß¤Ç¥¥ì¥¤¢ö ¥ê¥Ó¥ó¥°¤Ï¿á¤È´¤±¤Ë¤Ê¤Ã¤Æ¤ª¤ê¡¢³«Êü´¶¤¬¤¢¤ê¤Þ¤¹¡ª 1³¬¡¦2³¬Î¾Êý¤Ë¤ª¼êÀö¤¤¤ÈÀöÌÌÂæ¤¬¤¢¤ë¤Î¤Ç¡¢Ä«¤Î»ÙÅ٤κݤ⺮»¨¤ò·Ú¸º¤Ç¤¤Þ¤¹¢ö ¥¦¥§¥ë¥Í¥¹¤ä¤Þ¤ë¤´¤¦¡¢¥Û¥Ã¥¯¤Ê¤É¤âÅÌÊâ·÷Æâ¤ÇÀ¸³è¤ËÊØÍø¤ÊΩÃϤǤ¹¡ª |
||||
¥¤¥Á¥¨¥¤¡Ê°ì±ÉÉÔÆ°»º³«È¯³ô¼°²ñ¼Ò¡Ë
¢©683-0041¡¡Ä»¼è¸©ÊƻһÔÃãÄ®63ÈÖÃÏ£±
[ÌȵöÈÖ¹æ]¹ñÅÚ¸òÄÌÂç¿Ã(4)7264¹æ
½»¤Þ¤¤¤Î¾ðÊ󥿡¼¥ß¥Ê¥ë
°ì±ÉÉÔÆ°»º³«È¯³ô¼°²ñ¼Ò
ÊÆ»Ò¤Ë¾Ü¤·¤¤¥¹¥¿¥Ã¥Õ¤¬¡¢¤ªµÒÍͤÎÍýÁۤΤªÉô²°Ãµ¤·¤ò¤ª¼êÅÁ¤¤¤¤¤¿¤·¤Þ¤¹¡ª
¡¼¡¼¡¼¡¼¡¼¡¼¡¼¡¼¡¼¡¼¡¼¡¼¡¼
±Ä¶È»þ´Ö9:00¡Á17:30
(Æü¡¦º×Æü¡§9:30¡Á17:30)
ÄêµÙÆü¡§¿åÍËÆü
¡¼¡¼¡¼¡¼¡¼¡¼¡¼¡¼¡¼¡¼¡¼¡¼¡¼
¤ª°ú¤Ã±Û¤·¥·¡¼¥º¥ó¤Ïº®¤ß¹ç¤¤¤Þ¤¹¤Î¤Ç¡¢
»öÁ°¤Ë¤´Í½Ì󤤤¿¤À¤¤Þ¤¹¤È¥¹¥à¡¼¥º¤Ë¤´°ÆÆâ¤Ç¤¤Þ¤¹

- 0859-33-0088
- FAX
- 0859-33-0838




