![]()
Ãæ¸Å°ì¸Í·ú½»Âð
±ü½Ð±ÀÄ®ÂçÇÏÌÚÇä½»Âð
- ²Á³Ê
- 130Ëü±ß
- ¸ò¾Ä¾õ¶·
- ÈÎÇäÃæ
- ¸½¶·
- ¶õ¼¼Ãæ
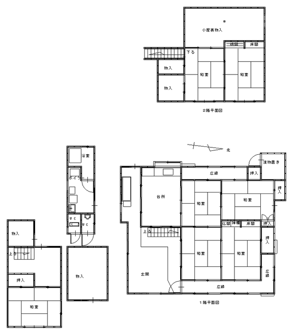
| ʪ·ïÈÖ¹æ | DB0511 | ½êºßÃÏ | ¿Î¿·´±ü½Ð±ÀÄ®ÂçÇÏÌÚ1668-6 | ||
|---|---|---|---|---|---|
| ¼ïÊÌ | Ãæ¸Å°ì¸Í·ú½»Âð | ¹½Â¤ | ÌÚ¤£²³¬·ú | ´Ö¼è¤ê | £¶£Ë°Ê¾å |
| ·úÃÛǯ·î | 1929ǯ | ·úʪÌÌÀÑ | 215.08Ö¡Ê65.06ÄÚ¡Ë | ÅÚÃÏÌÌÀÑ | 433.84Ö¡Ê131.24ÄÚ¡Ë |
| »äÆ»ÌÌÀÑ | ·ú¤Ú¤¤Î¨ | ÍÆÀÑΨ | |||
| ÀÜÆ»¾õ¶· | Êݾڶ⡦Éß¶â | ||||
| ¸¢Íø¶â | ¤½¤Î¾°ì»þ¶â | ||||
| Ãó¼Ö¾ì | Í(ÎÁ¶â¹þ¤ß) | Ãó¼Ö¾ìÀâÌÀ | |||
| ¶è²èÈÖ¹æ | ¼è°ú·ÁÂÖ | ÇÞ²ð | ÅÚÃϸ¢Íø | ½ê͸¢ | |
| ¹ñÅÚË¡ÆÏ½Ð | ÉÔÍ× | ±èÀþ¸òÄÌ | £Ê£Ò | °úÅϤ· | ÁêÃÌ |
| ÃÏÌÜ | ÂðÃÏ | ÃÏÌÜÀâÌÀ | |||
| ÅԻԷײè | ¤½¤Î¾ | ÍÑÅÓÃϰè | »ØÄê¤Ê¤· | ||
| °Ý»ý´ÉÍýÈñÅù | |||||
| ¼ÚÃÏ´ü´Ö¡¦ÃÏÂå | |||||
| ÃÏÀª | |||||
| ´ÉÍý·ÁÂÖ¡¢¾ò·ïÅù | |||||
| ºÇ´ó±Ø | £Ê£ÒÌÚ¼¡Àþ¡¡È¬Àî±Ø | ||||
| ¥Ð¥¹Åù¸òÄ̼êÃÊ | Å·ËþµÜ¥Ð¥¹Ää¤è¤êÅÌÊ⣶ʬ | ||||
| ¹»¶è | ²£ÅÄÅý¹ç¾®¡¦²£ÅÄÃæ | ||||
| ¹¹ð͸ú´ü´Ö | |||||
| ´Ö¼è¤êÆâÌõ | |||||
| È÷¹Í | ÃÛ95ǯ¤Î¸Å̱²È¡ù×Ä JR½Ð±ÀȬÀî±Ø¤è¤ê¼Ö¤ÇÌó10ʬ¤Î¾ì½ê¤Ç¤¹¡£ ÇÀÃϤ˰Ϥޤ줿¼«Á³Ë¤«¤ÊÅÚÃϤǡ¢¤æ¤Ã¤¿¤ê¥é¥¤¥Õ¤ò³Ú¤·¤ó¤Ç¤ß¤Þ¤»¤ó¤«¡© ¾å²¼¿åÆ»¤Ï¤¢¤ê¤Þ¤¹¤¬¡¢²¼¿åÆ»¤ÏÀܳ¤µ¤ì¤Æ¤¤¤Þ¤»¤ó¡£ ¥È¥¤¥ì¡¦Íá¼¼¤ÏÊÌÅï¤È¤Ê¤Ã¤Æ¤¤¤ë¤Î¤Ç¡¢¥ê¥Õ¥©¡¼¥à¤µ¤ì¤ë¤³¤È¤ò¤ª¤¹¤¹¤á¤·¤Þ¤¹¡£ ¸½ºß¤ÏÇÏÌÚ¾®³Ø¹»¤Ç¤¹¤¬¡¢ÎáÏÂ7ǯ4·î¤è¤ê²£ÅÄÅý¹ç¾®³Ø¹»¡Ê²¾Ì¾¡Ë¤Ë¤Ê¤ëͽÄê¤Ç¤¹¡£ |
||||
͸²ñ¼Ò¡¡Áí¹çÂð·ú
¢©690-0048¡¡Å纬¸©¾¾¹¾»ÔÀ¾²ÇÅ磱ÃúÌÜ£±¡Ý£±£³
[ÌȵöÈÖ¹æ]Å纬¸©Ãλö¡Ê4¡Ë1120¹æ
¸ø±×¼ÒÃÄË¡¿Í¡¡Å纬¸©ÂðÃÏ·úʪ¼è°ú¶È¶¨²ñ²ñ°÷
¸ø±×¼ÒÃÄË¡¿Í¡¡Á´¹ñÂðÃÏ·úʪ¼è°ú¶ÈÊݾڶ¨²ñ²ñ°÷
°ìÈ̼ÒÃÄË¡¿Í¡¡Á´¹ñÄÂÂßÉÔÆ°»º´ÉÍý¶È¶¨²ñ²ñ°÷
¡Ú±Ä¶È»þ´Ö¡Û£¹¡§£°£°¡Á£±£·¡§£°£°
¡ÚÄêµÙÆü¡ÛÅÚ¡¦Æü¡¦½Ë

- 0852-28-8032
- FAX
- 0852-28-8034




