![]()
Ãæ¸Å°ì¸Í·ú½»Âð
°ÂÍè»Ô¾åºäÅÄ¡¡Çä½»Âð¦
- ²Á³Ê
- 1,480Ëü±ß
- ¸ò¾Ä¾õ¶·
- ÈÎÇäÃæ
- ¸½¶·
- ¶õ¼¼Ãæ
- ¥×¥í¥Ñ¥ó¥¬¥¹
- ¥¨¥¢¥³¥ó
- µëÅò
- ¼ýǼ¥¹¥Ú¡¼¥¹
- ¥Õ¥í¡¼¥ê¥ó¥°
- ¥·¥¹¥Æ¥à¥¥Ã¥Á¥ó
- ¥Ð¥ë¥³¥Ë¡¼
- ÁÒ¸Ë
- ÀìÍÑÄí
- ¥Ú¥Ã¥ÈÁêÃ̲Ä
- ³Ú´ïÁêÃ̲Ä
- ´×ÀŽ»ÂðÃÏ
- Ãó¼Ö¾ì£²Âæ°Ê¾å
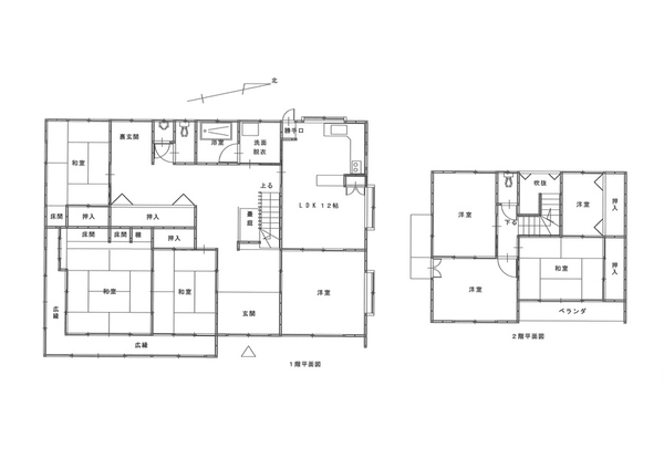
| ʪ·ïÈÖ¹æ | DB0804 | ½êºßÃÏ | °ÂÍè»Ô¾åºäÅÄ£±7 | ||
|---|---|---|---|---|---|
| ¼ïÊÌ | Ãæ¸Å°ì¸Í·ú½»Âð | ¹½Â¤ | ÌÚ¤£²³¬·ú | ´Ö¼è¤ê | £¶£Ë°Ê¾å |
| ·úÃÛǯ·î | 1996ǯ12·î | ·úʪÌÌÀÑ | 207.74Ö¡Ê62.84ÄÚ¡Ë | ÅÚÃÏÌÌÀÑ | 691.48Ö¡Ê209.17ÄÚ¡Ë |
| »äÆ»ÌÌÀÑ | ·ú¤Ú¤¤Î¨ | ÍÆÀÑΨ | |||
| ÀÜÆ»¾õ¶· | À¾Â¦ | Êݾڶ⡦Éß¶â | |||
| ¸¢Íø¶â | ¤½¤Î¾°ì»þ¶â | ||||
| Ãó¼Ö¾ì | Í(ÎÁ¶â¹þ¤ß) | Ãó¼Ö¾ìÀâÌÀ | |||
| ¶è²èÈÖ¹æ | ¼è°ú·ÁÂÖ | ÇÞ²ð | ÅÚÃϸ¢Íø | ½ê͸¢ | |
| ¹ñÅÚË¡ÆÏ½Ð | ÉÔÍ× | ±èÀþ¸òÄÌ | £Ê£Ò | °úÅϤ· | ÁêÃÌ |
| ÃÏÌÜ | ÂðÃÏ | ÃÏÌÜÀâÌÀ | |||
| ÅԻԷײè | »Ô³¹²½Ä´À°¶è°è | ÍÑÅÓÃϰè | »ØÄê¤Ê¤· | ||
| °Ý»ý´ÉÍýÈñÅù | |||||
| ¼ÚÃÏ´ü´Ö¡¦ÃÏÂå | |||||
| ÃÏÀª | |||||
| ´ÉÍý·ÁÂÖ¡¢¾ò·ïÅù | |||||
| ºÇ´ó±Ø | £Ê£Ò¹ÓÅç±Ø | ||||
| ¥Ð¥¹Åù¸òÄ̼êÃÊ | °ÂÍè»Ô¹°èÀ¸³è¥Ð¥¹¡¡À¾ÀÖ¹¾¥Ð¥¹ÄäÉÕ¶á | ||||
| ¹»¶è | ¹ÓÅç¾®³Ø¹»¡¦°ÂÍè»°Ãæ | ||||
| ¹¹ð͸ú´ü´Ö | |||||
| ´Ö¼è¤êÆâÌõ | |||||
| È÷¹Í | ¡»ÊÌÅï¤ÇÎ¥¤ì¡Ê£²£±¡¥£¸£¶Ö¡Ë¡¢ÊªÃÖ¡Ê£·£°¡¥£¸£´Ö¡Ë¤¬¤¢¤ê¤Þ¤¹¡£ ¡»Èª¡¡£µ£³Ö¤â´Þ¤Þ¤ì¤Æ¤¤¤Þ¤¹¡£ ¡»»Ô³¹²½Ä´À°¶è°è¤Ç¤¹¤¬¡¢¡Ø£ÁÎÙÀÜ¡¦¶áÀܶè°è¡Ù¤Ë³ºÅö¤·¤Þ¤¹¡£ ¡»½»½êɽ¼¨¤Ï¡¢¡Ø¾åºäÅġ٤Ǥ¹¤¬¡¢Ä®Æâ²ñ¤Ï¡ØÀ¾ÀÖ¹¾Ä®¡Ù¤Ë¤Ê¤ê¤Þ¤¹¡£ |
||||
͸²ñ¼Ò¡¡Áí¹çÂð·ú
¢©690-0048¡¡Å纬¸©¾¾¹¾»ÔÀ¾²ÇÅ磱ÃúÌÜ£±¡Ý£±£³
[ÌȵöÈÖ¹æ]Å纬¸©Ãλö¡Ê4¡Ë1120¹æ
¸ø±×¼ÒÃÄË¡¿Í¡¡Å纬¸©ÂðÃÏ·úʪ¼è°ú¶È¶¨²ñ²ñ°÷
¸ø±×¼ÒÃÄË¡¿Í¡¡Á´¹ñÂðÃÏ·úʪ¼è°ú¶ÈÊݾڶ¨²ñ²ñ°÷
°ìÈ̼ÒÃÄË¡¿Í¡¡Á´¹ñÄÂÂßÉÔÆ°»º´ÉÍý¶È¶¨²ñ²ñ°÷
¡Ú±Ä¶È»þ´Ö¡Û£¹¡§£°£°¡Á£±£·¡§£°£°
¡ÚÄêµÙÆü¡ÛÅÚ¡¦Æü¡¦½Ë

- 0852-28-8032
- FAX
- 0852-28-8034




