![]()
¿·ÃÛ°ì¸Í·ú½»Âð
¡Ú¿·ÃÛ·úÇä¡Û¥¹¥Æ¥é¥Ó¥ì¥Ã¥¸Åì½Ð±À£¶¹æÃÏ
- ²Á³Ê
- 3,150Ëü±ß
- ¸ò¾Ä¾õ¶·
- ÈÎÇäÃæ
- ¸½¶·
- ·úÀßÃæ
- µëÅò
- ¥ª¡¼¥ëÅŲ½
- ¼ýǼ¥¹¥Ú¡¼¥¹
- ¾²²¼¼ýǼ
- Àö¾ôÊØºÂ
- ÃÈË¼ÊØºÂ
- IH¥¯¥Ã¥¥ó¥°¥Ò¡¼¥¿¡¼
- ¥·¥¹¥Æ¥à¥¥Ã¥Á¥ó
- TV¥â¥Ë¥¿¡¼¥Õ¥©¥ó
- Íá¼¼´¥Áç
- Äɤ¤¿æ¤
- ÆüÅö¤¿¤êÎɹ¥
- Ãó¼Ö¾ì£²Âæ°Ê¾å
| ʪ·ïÈÖ¹æ | EL0070 | ½êºßÃÏ | ¾¾¹¾»ÔÅì½Ð±ÀĮͬ²°143-4 | ||
|---|---|---|---|---|---|
| ¼ïÊÌ | ¿·ÃÛ°ì¸Í·ú½»Âð | ¹½Â¤ | ÌÚ¤£²³¬·ú | ´Ö¼è¤ê | £³£Ì£Ä£Ë |
| ·úÃÛǯ·î | 2026ǯ9·î | ·úʪÌÌÀÑ | 95.22Ö¡Ê28.80ÄÚ¡Ë | ÅÚÃÏÌÌÀÑ | 157.29Ö¡Ê47.58ÄÚ¡Ë |
| »äÆ»ÌÌÀÑ | ·ú¤Ú¤¤Î¨ | 60¡ó | ÍÆÀÑΨ | 200¡ó | |
| ÀÜÆ»¾õ¶· | Å즸øÆ»Éý°÷6.0£í´Ö¸ý6.32£í | Êݾڶ⡦Éß¶â | |||
| ¸¢Íø¶â | ¤½¤Î¾°ì»þ¶â | ¾å¿åÆ»²ÃÆþ¶â11Ëü±ß¡¦²¼¿åÆ»Ééô¶â5Ëü9770±ß¤¬É¬ÍפǤ¹¡£ | |||
| Ãó¼Ö¾ì | Í(ÎÁ¶â¹þ¤ß) | Ãó¼Ö¾ìÀâÌÀ | Ãó¼Ö¥¹¥Ú¡¼¥¹£´ÂæÊ¬ | ||
| ¶è²èÈÖ¹æ | ¼è°ú·ÁÂÖ | Çä¼ç | ÅÚÃϸ¢Íø | ½ê͸¢ | |
| ¹ñÅÚË¡ÆÏ½Ð | ÉÔÍ× | ±èÀþ¸òÄÌ | £Ê£Ò | °úÅϤ· | ´°À®¸å |
| ÃÏÌÜ | ÂðÃÏ | ÃÏÌÜÀâÌÀ | |||
| ÅԻԷײè | »Ô³¹²½¶è°è | ÍÑÅÓÃϰè | Â裱¼ï½»µïÃϰè | ||
| °Ý»ý´ÉÍýÈñÅù | |||||
| ¼ÚÃÏ´ü´Ö¡¦ÃÏÂå | |||||
| ÃÏÀª | |||||
| ´ÉÍý·ÁÂÖ¡¢¾ò·ïÅù | |||||
| ºÇ´ó±Ø | |||||
| ¥Ð¥¹Åù¸òÄ̼êÃÊ | ¿·Ä®¥Ð¥¹ÄäÅÌÊâ2ʬ | ||||
| ¹»¶è | ͬ²°¾®³Ø¹»¡ÊÅÌÊâ19ʬ¡Ë¡¦Åì½Ð±ÀÃæ³Ø¹»¡ÊÅÌÊâ12ʬ¡Ë | ||||
| ¹¹ð͸ú´ü´Ö | |||||
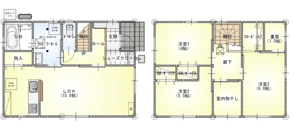
| ´Ö¼è¤êÆâÌõ | 3SLDK¡Ê½ñºØ¡¦¼¼Æâʪ´³¤·¡Ë | ||||
| È÷¹Í | 15.8Ä¡LDK¤Î¤æ¤È¤êÀ߷ס£¥·¥å¡¼¥º¥¯¥í¡¼¥¯¤äWIC¤Ê¤É¼ýǼ½¼¼Â¡£ ½ñºØ¤ä¼¼Æâʪ´³¤·¤âÈ÷¤¨¤¿¡¢Êë¤é¤·¤ä¤¹¤µ¤ËÇÛθ¤·¤¿½»¤Þ¤¤¤Ç¤¹¡£ ¢£Î©ÃÏ ¥¬¥¹¥ÈÅì½Ð±ÀŹ¡¡Ìó820£í¡ÊÅÌÊâ10ʬ¡Ë ºÇ´ó¤ê¥»¥Ö¥ó¥¤¥ì¥Ö¥ó¡¡Ìó920£í¡ÊÅÌÊâ11ʬ¡Ë ¥¶¡¦¥Ó¥Ã¥¯Åì½Ð±ÀŹ¡¡Ìó1050£í¡ÊÅÌÊâ13ʬ¡Ë ¥¢¥¤¥Ñ¥ë¥ÆÅì½Ð±ÀŹ¡¡Ìó1050£í¡ÊÅÌÊâ13ʬ¡Ë ¥Û¥Ã¥¯Í¬²°Å¹¡¡Ìó1140£í¡ÊÅÌÊâ14ʬ¡Ë ¢£É¸½à»ÅÍͤ¬¹âÀǽ ¡¦ZEH޵ި޴ŽÝŽÃޝŽÄŽÞ´ð½à¡§¹âÃÇÇ®¡¢¾Ê¥¨¥Í ¡¦ÂÑ¿ÌÅùµé£³¡§ÃÏ¿ÌÊݸ±50¡ó³ä°ú ¡¦Îô²½ÂкöÅùµé£³¡§75¡Á90ǯ¤ÎÂѵ×À ¡¦¸÷¥»¥é³°ÊÉ¡§365Æü¤ªÁݽüÉÔÍסª»ç³°Àþ¤Ë¶¯¤¯Îô²½¤·¤Ë¤¯¤¤¹âÂѸõ ¡¦¸«¤¿ÌܤÎÈþ¤·¤¤´¤²°º¬ ¡ö¾å¿åÆ»ÉßÃÏÆâ°ú¤¹þ¤ß¤¢¤ê¡Ê¾å¿åÆ»²ÃÆþ¶â110000±ßÍ×¡Ë ¡ö²¼¿åÆ»ÉßÃÏÆâ°ú¤¹þ¤ß¤¢¤ê¡Ê²¼¿åÆ»¼õ¸ø¶¦ËñÀßÃÖ¶â59770±ßÊÌÅÓÀº»»¤¢¤ê¡Ë ¡öÉßÃÏÆâ¤ËÅÅÃì¤È»ÙÃ줢¤ê ¡öÇä¼ç¤è¤ê»ÊË¡½ñ»Î¤Î»ØÄ꤬¤¢¤ê¤Þ¤¹¡£ ¡ö·úʪ³°´Ñ²èÁü¤Ï¥¤¥á¡¼¥¸¤Ç¤¢¤ê¡¢¿¢ºÏ¡¦¥Õ¥§¥ó¥¹¡¦¥«¡¼¥Æ¥ó¡¦¼Ö¤ÏÀßÃÖ¤µ¤ì¤Þ¤»¤ó¡£ ·úÃÛ³ÎǧÈֹ桡Âè07-860¹æ |
||||
¥Ï¥¦¥¹¥É¥¥¡¡¾¾¹¾¡ÊÀ¾ÆüËÜ¥Û¡¼¥à¡Ê³ô¡Ë¡Ë
¢©690-0017¡¡¾¾¹¾»ÔÀ¾ÄÅÅÄ5ÃúÌÜ1-1
[ÌȵöÈÖ¹æ]¹ñÅÚ¸òÄÌÂç¿Ã(3)Âè8218¹æ
°µÅÝŪ¤Êʪ·ï¿ô¡ª
¥Þ¥¤¥Ú¡¼¥¸ÅÐÏ¿¤Ç300·ï°Ê¾å¤Îʪ·ï¾ðÊó¤ò¸ø³«Ã桪
ÉÔÆ°»ºÃç²ð¤ò¤Ï¤¸¤á¡¢¿·ÃÛ¤ä¥ê¥Õ¥©¡¼¥à¤Ê¤É½»¤Þ¤¤¤Î¤³¤È¤Ê¤é¤Ê¤ó¤Ç¤â¥Ï¥¦¥¹¥É¥¥¾¾¹¾Å¹¤Ø¤ªÇ¤¤»¤¯¤À¤µ¤¤¤Þ¤»¡£
·úÀ߶ȵö²Ä¡¡¡¡¡¡¡¡ ¡¡¡¡¹ñÅÚ¸òÄÌÂç¿Ãµö²Ä¡ÊÈÌ-5¡ËÂè18110¹æ
Æóµé·úÃۻλö̳½ê¡¡¡¡¡¡ Å纬¸©Ãλö¡Ê6¡ËÂè4748¹æ
¡Ê¸ø¼Ò¡ËÅ纬¸©ÂðÃÏ·úʪ¼è°ú¶È¶¨²ñ²ñ°÷
¡Ê¸ø¼Ò¡ËÁ´¹ñÂðÃÏ·úʪ¼è°ú¶ÈÊݾڶ¨²ñ²ñ°÷
¡Ê¸ø¼Ò¡ËÀ¾ÆüËÜÉÔÆ°»ºÎ®Ä̵¡¹½²ñ°÷
¡Ê¸ø¼Ò¡ËÃæ¹ñÃ϶èÉÔÆ°»º¸øÀµ¼è°ú¶¨µÄ²ñ²ÃÌÁ

- 0852-33-7778
- FAX
- 0852-33-7735




