![]()
Ãæ¸Å°ì¸Í·ú½»Âð
»°Åá²°Ä®²µ²ÃµÜ¡¡Ãæ¸Å½»Âð¡¡¡ù²Á³Ê²þÄꤷ¤Þ¤·¤¿¡ù
- ²Á³Ê
- 500Ëü±ß
- ¸ò¾Ä¾õ¶·
- ¾¦ÃÌÃæ
- ¸½¶·
- ¶õ¼¼Ãæ
- Îä˼
- ¥¨¥¢¥³¥ó
- µëÅò
- £Ã£Á£Ô£Ö
- ¼ýǼ¥¹¥Ú¡¼¥¹
- ¾²²¼¼ýǼ
- Àö¾ôÊØºÂ
- ÃÈË¼ÊØºÂ
- ¥Õ¥í¡¼¥ê¥ó¥°
- ÁÒ¸Ë
- ÀìÍÑÄí
- TV¥â¥Ë¥¿¡¼¥Õ¥©¥ó
- Íá¼¼´¥Áç
- ¥Ú¥Ã¥ÈÁêÃ̲Ä
- ³Ú´ïÁêÃ̲Ä
- ÆüÅö¤¿¤êÎɹ¥
- ´×ÀŽ»ÂðÃÏ
- Ãó¼Ö¾ì£²Âæ°Ê¾å
| ʪ·ïÈÖ¹æ | ES0050 | ½êºßÃÏ | ±ÀÆî»Ô»°Åá²°Ä®²µ²ÃµÜ¡¡³°13É® | ||
|---|---|---|---|---|---|
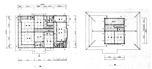
| ¼ïÊÌ | Ãæ¸Å°ì¸Í·ú½»Âð | ¹½Â¤ | ÌÚ¤£²³¬·ú | ´Ö¼è¤ê | £¶£Ë°Ê¾å |
| ·úÃÛǯ·î | 1989ǯ3·î | ·úʪÌÌÀÑ | 193.77Ö¡Ê58.62ÄÚ¡Ë | ÅÚÃÏÌÌÀÑ | 849.57Ö¡Ê256.99ÄÚ¡Ë |
| »äÆ»ÌÌÀÑ | ·ú¤Ú¤¤Î¨ | ÍÆÀÑΨ | |||
| ÀÜÆ»¾õ¶· | Êݾڶ⡦Éß¶â | ||||
| ¸¢Íø¶â | ¤½¤Î¾°ì»þ¶â | ¼êÉÕ¶â¡§100Ëü±ß | |||
| Ãó¼Ö¾ì | Í(ÎÁ¶â¹þ¤ß) | Ãó¼Ö¾ìÀâÌÀ | ¼Ö¸Ë¡¢ÀìÍÑÄí | ||
| ¶è²èÈÖ¹æ | ¼è°ú·ÁÂÖ | ÇÞ²ð | ÅÚÃϸ¢Íø | ½ê͸¢ | |
| ¹ñÅÚË¡ÆÏ½Ð | ÉÔÍ× | ±èÀþ¸òÄÌ | £Ê£Ò | °úÅϤ· | ÁêÃÌ |
| ÃÏÌÜ | ÂðÃÏ | ÃÏÌÜÀâÌÀ | ÂðÃÏ¡¢Èª¡¢ÅÄ¡¢¸¶Ìî¡¢»³ÎÓ | ||
| ÅԻԷײè | ¤½¤Î¾ | ÍÑÅÓÃϰè | »ØÄê¤Ê¤· | ||
| °Ý»ý´ÉÍýÈñÅù | |||||
| ¼ÚÃÏ´ü´Ö¡¦ÃÏÂå | |||||
| ÃÏÀª | |||||
| ´ÉÍý·ÁÂÖ¡¢¾ò·ïÅù | |||||
| ºÇ´ó±Ø | JRÌÚ¼¡Àþ¡ÖÌÚ¼¡±Ø¡×¤Þ¤Ç7.5km | ||||
| ¥Ð¥¹Åù¸òÄ̼êÃÊ | ±ÀÆî»Ô̱¥Ð¥¹¡ÖÆé»³¡×¤Þ¤Ç220m | ||||
| ¹»¶è | Æé»³¾®³Ø¹»¡¡»°Åá²°Ãæ³Ø¹» | ||||
| ¹¹ð͸ú´ü´Ö | |||||
| ´Ö¼è¤êÆâÌõ | ¸¼´Ø¡¢DK¡¢Ï¼¼¡¢Íá¼¼¡¢Ã¦°á¼¼¡¢¥È¥¤¥ì¡¢²¡Æþ | ||||
| È÷¹Í | ¡ÔÅÚÃÏ¾ÜºÙ¡Õ ¢¡ÂðÃÏ¡Ê2É®¡Ë1525.88Ö¡¡¢¡Èª¡Ê4É®¡Ë1472Ö ¢¡ÅÄ¡Ê2É®¡Ë1547Ö¡¡¢¡¸¶Ìî¡Ê2É®¡Ë198Ö ¢¡»³ÎÓ¡Ê4É®¡Ë¡§3433Ö ¢¨ÇÀÃϤΤ¿¤á¼èÆÀ¤Ë¾ò·ï¤¢¤ê ¡Ô·úʪ¾ÜºÙ¡Õ ¸¼´Ø¡¢DK¡¢Íá¼¼¡¢Ã¦°á¼¼¡¢¥È¥¤¥ì¡¢²¡Æþ¡¢±ï¦¡¢ÅÚ´Ö Ï¼¼8Ä¡¢¡¢Ï¼¼6Ä¡¤¡¢²°º¬Î¢¼ýǼ¡¢¼Ö¸Ë ¡ÔÀßÈ÷¾õ¶·¡Õ¡¡¡úºîư̤³Îǧ ¢¡µëÅò´ï¡§ÅôÌý¥Ü¥¤¥é¡¼ ¢¡¥³¥ó¥í¡§£É£È¥¯¥Ã¥¥ó¥°¥Ò¡¼¥¿¡¼¡Ê100V¡¢¥³¥ó¥í¤¢¤ê¡Ë ¢¡Íá¼¼¡§¥æ¥Ë¥Ã¥È¥Ð¥¹ ¢¡¥È¥¤¥ì¡§Íμ°¥È¥¤¥ì¡¢Ã˻ҥȥ¤¥ì¡ÊÍ×½¤Á¶¡Ë¡¢³°Éô¥È¥¤¥ì ¢¡¥¨¥¢¥³¥ó¡§1Âæ ¢¡¼Ö¸Ë¡§1ÂæÊ¬¡Ê¥·¥ã¥Ã¥¿¡¼ÇË»¡¦°úÅϤ·¤Þ¤Ç¤Ë¼è³°¤·¡Ë ¡Ô¼þÊմĶ¡Õ ¢¡¥¹¡¼¥Ñ¡¼¡§¤ß¤·¤Þ¤ä»°ÅᲰŹ¤Þ¤Ç6.2km ¢¡¥³¥ó¥Ó¥Ë¡§¥í¡¼¥½¥ó»°Åá²°ÌÚ¼¡¥¤¥ó¥¿¡¼Å¹¤Þ¤Ç5.5km ¢¡É±¡¡§Ê¿À®µÇ°É±¡¤Þ¤Ç5.5km ¢¡³Ø¹»¡§Æé»³¾®³Ø¹»¤Þ¤Ç1.1km¡¢»°Åá²°Ãæ³Ø¹»¤Þ¤Ç3.5km ¡ù¡ú¡ù¡ú¡ù ¸½Ãϸ«³Ø¤Ç¤¤Þ¤¹¡£»öÁ°¤Ë¤´Ï¢Íí¤ò¤ª´ê¤¤¤¤¤¿¤·¤Þ¤¹¡£ ¡ù¡ú¡ù¡ú¡ù |
||||
͸²ñ¼Ò¡¡±Ñ(¤Ï¤Ê¤Ö¤µ)¹©Ì³Å¹
¢©690-2404¡¡Å纬¸©±ÀÆî»Ô»°Åá²°Ä®»°Åá²°24-8
[ÌȵöÈÖ¹æ]Å纬¸©Ãλö¡Ê6¡ËÂè1010¹æ
¸ø±×¼ÒÃÄË¡¿Í Á´ÆüËÜÉÔÆ°»º¶¨²ñ²ñ°÷
¸ø±×¼ÒÃÄË¡¿Í ÉÔÆ°»ºÊݾڶ¨²ñ²ñ°÷

- 0854-45-5755
- FAX
- 0854-45-5758




