![]()
»ö̳½ê¡¦Å¹ÊÞ
¡ù¡ú¹ñÆ»314¹æÀþ±è¤¤¡ú¡ù¹¥Î©ÃÏ¡¦ÉßÃϤ⹤¤Å¹ÊÞʪ·ï
- ²Á³Ê
- 1,900Ëü±ß
- ¸ò¾Ä¾õ¶·
- ÈÎÇäÃæ
- ¸½¶·
- ¶õ¼¼Ãæ
- ¥×¥í¥Ñ¥ó¥¬¥¹
- ¥¨¥¢¥³¥ó
- µëÅò
- £Ã£Á£Ô£Ö
- Àö¾ôÊØºÂ
- ÃóÎØ¾ì
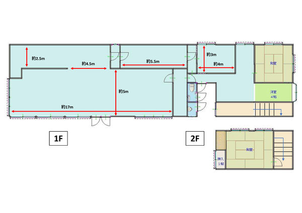
| ʪ·ïÈÖ¹æ | HL0055 | ½êºßÃÏ | ¿Î¿·´±ü½Ð±ÀÄ®²¼²£ÅÄ£¸£¹¡Ý£´ | ||
|---|---|---|---|---|---|
| ¼ïÊÌ | »ö̳½ê¡¦Å¹ÊÞ | ¹½Â¤ | ÌÚ¤£±³¬·ú | ½êºß³¬¿ô | --- |
| ·úÃÛǯ·î | 1989ǯ10·î | ·úʪÌÌÀÑ | 155.1Ö¡Ê46.92ÄÚ¡Ë | ÅÚÃÏÌÌÀÑ | 1,079Ö¡Ê326.40ÄÚ¡Ë |
| »äÆ»ÌÌÀÑ | ·ú¤Ú¤¤Î¨ | 60¡ó | ÍÆÀÑΨ | 200¡ó | |
| ÀÜÆ»¾õ¶· | |||||
| ´Ö¼è¤ê | ¤½¤Î¾ | Áí¸Í¿ô | Êݾڶ⡦Éß¶â | ||
| ¸¢Íø¶â | ¤½¤Î¾°ì»þ¶â | ||||
| Ãó¼Ö¾ì | Í(ÎÁ¶â¹þ¤ß) | Ãó¼Ö¾ìÀâÌÀ | |||
| Éô²°¡¢¶è²èÈÖ¹æ | ¼è°ú·ÁÂÖ | ÇÞ²ð | ÅÚÃϸ¢Íø | ½ê͸¢ | |
| ¹ñÅÚË¡ÆÏ½Ð | ÉÔÍ× | ±èÀþ¸òÄÌ | £Ê£Ò | °úÅϤ· | ÁêÃÌ |
| ÃÏÌÜ | ÂðÃÏ | ÃÏÌÜÀâÌÀ | |||
| ÅԻԷײè | ¤½¤Î¾ | ÍÑÅÓÃϰè | ½à¹©¶ÈÃϰè | ||
| °Ý»ý´ÉÍýÈñÅù | |||||
| ¼ÚÃÏ´ü´Ö¡¦ÃÏÂå | |||||
| ÃÏÀª | |||||
| ´ÉÍý·ÁÂÖ¡¢¾ò·ïÅù | |||||
| ºÇ´ó±Ø | |||||
| ¥Ð¥¹Åù¸òÄ̼êÃÊ | |||||
| ¹»¶è | |||||
| ¹¹ð͸ú´ü´Ö | |||||
| ´Ö¼è¤êÆâÌõ | |||||
| È÷¹Í | ±ü½Ð±ÀÄ®¹ñÆ»314¹æÀþ±è¤¤¤Î¹¥Î©ÃÏʪ·ï¤Ç¤¹¡ª ¼þÊդˤϥ¦¥§¥ë¥Í¥¹¡¦¥¸¥å¥ó¥Æ¥ó¥É¡¼¡¦¥¬¥½¥ê¥ó¥¹¥¿¥ó¥É¡¦¥¹¡¼¥Ñ¡¼¤Ê¤É¤ÎŹÊÞ¤¬½¸Ã椷¤Æ¤¤¤ë¥¨¥ê¥¢¤Ç¤¹¤Î¤ÇŹÊޤȤ·¤Æ¤À¤±¤Ç¤Ê¤¯¡¢Ê¬¾ùÍÑÂðÃϤÀ®¤Ê¤É¤ÎÍÑÅӤȤ·¤Æ¤â¤¤¤¤¤«¤â¤·¤ì¤Þ¤»¤ó¡ª ¤´¶½Ì£¤¬¤¢¤ëÊý¤Ï¤ªµ¤·Ú¤Ë¤ªÌä¹ç¤»¤¯¤À¤µ¤¤¡£ |
||||
¥ª¥¯¥ê¥ÎÉÔÆ°»º¡Ú³ô¼°²ñ¼Ò OKU-Reno.¡Û
¢©699-1513¡¡Å纬¸©¿Î¿·´±ü½Ð±ÀÄ®»°Âô499
[ÌȵöÈÖ¹æ]Å纬¸©Ãλö¡Ê2¡ËÂè1283¹æ
¡Ú¥Û¡¼¥à¥Ú¡¼¥¸¡Ûhttps://oku-reno.com/
¸ø±×¼ÒÃÄË¡¿Í¡¡Á´¹ñÂðÃÏ·úʪ¼è°ú¶ÈÊݾڶ¨²ñ²ñ°÷

- 0854-54-2455
- FAX
- 0854-54-2455




