| 賃料/共益費 6.8万円/4,000円 礼金/敷金 1ヶ月/2ヶ月 現況 建築中 | この物件について問い合わせる |
- 2階以上
- 最上階
- 角部屋
- 南向き
- IHコンロ
- コンロ2口以上
- バス・トイレ別
- 洗浄便座
- 浴室乾燥
- シャワー
- エアコン
- 給湯
- 洗面台
- 室内洗濯機置場
- フローリング
- クロ−ゼット
- 駐輪場
- 宅配ボックス
- オートロック
- TVモニターフォン
- 防犯カメラ
- ケーブルテレビ
- BSアンテナ
- インターネット
写真
間取り図
物件詳細情報
| 物件番号 | BW0828 | 所在地 | 浜田市朝日町 |
|---|---|---|---|
| 種別 | アパート、コーポ | 構造 | 木造 |
| 建築年月 | 2026年2月 | 間取り | 1DK |
| 専有面積 | 32.48m² | 向き | 南 |
| 建物階数 | 3階建 | 駐車場 | 有(料金別) |
| 駐車料金 | 4,400円 | 所在階数 | 3階部 |
| 取引形態 | 仲介 | 仲介料 | 74,800円 |
| 敷き引き | |||
| 保険料 | 火災保険料2年16000円〜 | ||
| 校区 | |||
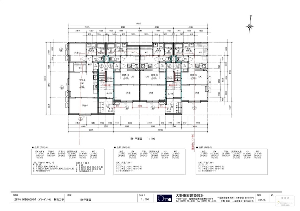
| 備考 | 【市街地(朝日町)単身社会人〜2人暮らし向け 1DKアパート】 ★2026年2月末 完成予定!(入居時期要相談) 春からの新生活を新築物件でスタートさせたい方へ スーパー、浜田駅、医療センター、バス停、コンビニ近く、とにかく便利な立地 オートロック・防犯カメラ・カメラ付きインターフォンでセキュリティー対策OK 転居後も複雑な手続きは必要なくスムーズにインターネット利用(無料)できます。 間取り:DK7.9帖・洋間5.1帖・トイレ・洗面脱衣・浴室 毎日の暮らしを支えるうれしい設備が満載です。 ↓ ●主な設備● ・システムキッチン ・IHコンロ(2口 ) ・トイレ水洗洋式(温水洗浄便座付) ・洗面ユニット(シャワードレッサー) ・脱衣室、室内洗濯機置き場 ・給湯は都市ガス ・浴室乾燥機・浴室暖房 ・照明器具付き(ダウンライト有) ・エアコン1台付 ・24時間換気システム ・クローゼット ・シューズボックス ・石見ケーブルビジョン基本チャンネルが視聴可能(無料) ・インターネット使用料無料 ・複層ガラス窓 ・宅配ボックス ・防犯カメラ ・オートロック・モニター付きインターフォン ・敷地内ゴミ置き場 **工事状況により間取り・設備・外観等が変更となる可能性があります** |
||
| 物件番号 | BW0828 |
|---|---|
| 所在地 | 浜田市朝日町 |
| 種別 | アパート、コーポ |
| 構造 | 木造 |
| 建築年月 | 2026年2月 |
| 間取り | 1DK |
| 専有面積 | 32.48m² |
| 向き | 南 |
| 建物階数 | 3階建 |
| 駐車場 | 有(料金別) |
| 駐車料金 | 4,400円 |
| 所在階数 | 3階部 |
| 取引形態 | 仲介 |
| 仲介料 | 74,800円 |
| 敷き引き | |
| 保険料 | 火災保険料2年16000円〜 |
| 校区 | |
| 備考 | 【市街地(朝日町)単身社会人〜2人暮らし向け 1DKアパート】 ★2026年2月末 完成予定!(入居時期要相談) 春からの新生活を新築物件でスタートさせたい方へ スーパー、浜田駅、医療センター、バス停、コンビニ近く、とにかく便利な立地 オートロック・防犯カメラ・カメラ付きインターフォンでセキュリティー対策OK 転居後も複雑な手続きは必要なくスムーズにインターネット利用(無料)できます。 間取り:DK7.9帖・洋間5.1帖・トイレ・洗面脱衣・浴室 毎日の暮らしを支えるうれしい設備が満載です。 ↓ ●主な設備● ・システムキッチン ・IHコンロ(2口 ) ・トイレ水洗洋式(温水洗浄便座付) ・洗面ユニット(シャワードレッサー) ・脱衣室、室内洗濯機置き場 ・給湯は都市ガス ・浴室乾燥機・浴室暖房 ・照明器具付き(ダウンライト有) ・エアコン1台付 ・24時間換気システム ・クローゼット ・シューズボックス ・石見ケーブルビジョン基本チャンネルが視聴可能(無料) ・インターネット使用料無料 ・複層ガラス窓 ・宅配ボックス ・防犯カメラ ・オートロック・モニター付きインターフォン ・敷地内ゴミ置き場 **工事状況により間取り・設備・外観等が変更となる可能性があります** |
5 since 2025-11-29
地図
この物件の周辺地図を開く取り扱い店舗
有限会社日建
〒697-0037 島根県浜田市新町57番地1
[免許番号]島根県知事(11)第548号
───・───・───・───・───・───・───
セブンイレブン新町店 向かい
事務所横の専用駐車場をご利用ください(3台分)
営業時間:AM9時〜PM5時
定休日:土曜日・日曜日・祝祭日(2月3月は一部対応)
弊社HP:https://www.est-nikken.co.jp/
★★★LINE公式アカウントへ是非ご登録ください★★★
ご登録の上、トーク画面からメッセージをお願いします!
ID:@930fujzm
もしくはこちらから ↓
https://lin.ee/ucOgA59
★★★インスタグラム始めました!★★★
空き物件やお勧め物件の情報など、随時更新しています!
インスタグラムの検索で『日建』と入力してnikken_hamadaを探して是非フォローをお願いします!
https://www.instagram.com/nikken_hamada/
DMには対応しておりませんので、メールもしくはLINE公式アカウントからお問い合わせください♪
★★★所属・加盟団体★★★
公益社団法人 全国宅地建物取引業保証協会会員
公益社団法人 島根県宅地建物取引業協会会員
中国地区不動産公正取引協議会会員
一般社団法人 全国賃貸不動産管理業協会

- 0855-22-3344
ご連絡の際は「山陰不動産ナビを見た」と言うとスムーズです - FAX
- 0855-23-3344


























