![]()
貸し店舗
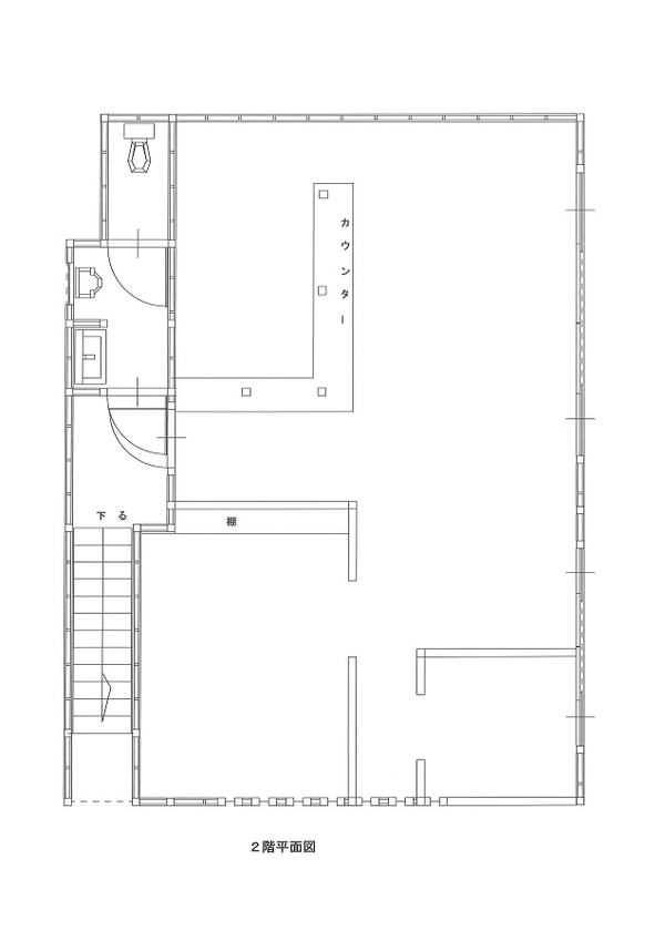
京店テナント 2階
- 賃料/共益費
- 8万円/
- 礼金/敷金
- 無し/2ヶ月
- 現況
- 空室中
- 2階以上
| 物件番号 | DB0312 | 所在地 | 松江市末次本町91番地2 | ||
|---|---|---|---|---|---|
| 種別 | 貸し店舗 | 構造 | 鉄骨造 | 建築年月 | 1996年8月 |
| 間取り | 無該当 | 専有面積 | 57.83m² | 向き | --- |
| 建物階数 | 2階建 | 駐車場 | 無 | 駐車料金 | |
| 所在階数 | 2階部 | 取引形態 | 仲介 | 仲介料 | 88,000円 |
| 敷き引き | |||||
| 保険料 | 要加入 | ||||
| 校区 | 母衣小・松江二中 | ||||
| 備考 | 歴史・伝統・文化を感じるまち『京店商店街』テナントに空きがでました! 窓から京橋川が望める落ち着いたお部屋です。(風流堂様の2階) ※賠償責任保険要加入 ※賃貸保証会社 初回保証料100%、更新保証料10%/年 ※商業地域 ※飲食店不可 |
||||
有限会社 総合宅建
〒690-0048 島根県松江市西嫁島1丁目1−13
[免許番号]島根県知事(4)1120号
公益社団法人 島根県宅地建物取引業協会会員
公益社団法人 全国宅地建物取引業保証協会会員
一般社団法人 全国賃貸不動産管理業協会会員
【営業時間】9:00〜17:00
【定休日】土・日・祝

- 0852-28-8032
- FAX
- 0852-28-8034




