![]()
一戸建借家
【5DK貸家】古志原戸建て
- 賃料/共益費
- 6.5万円/
- 礼金/敷金
- 1ヶ月/2ヶ月
- 現況
- 空室中
- 1階の物件
- 2階以上
- ガスコンロ
- システムキッチン
- バス・トイレ別
- 洗浄便座
- 暖房便座
- シャワー
- エアコン
- 給湯
- 室内洗濯機置場
- ペット相談可
| 物件番号 | GS0049 | 所在地 | 松江市古志原3丁目2-37 | ||
|---|---|---|---|---|---|
| 種別 | 一戸建借家 | 構造 | 木造 | 建築年月 | 1963年4月 |
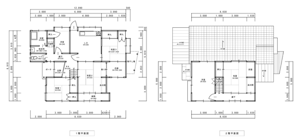
| 間取り | 5DK | 専有面積 | 120.95m² | 向き | 北西 |
| 建物階数 | 2階建 | 駐車場 | 有(料金込み) | 駐車料金 | |
| 所在階数 | 戸建 | 取引形態 | 直営 | 仲介料 | |
| 敷き引き | |||||
| 保険料 | 火災保険加入要 | ||||
| 校区 | |||||
| 備考 | 古志原希少戸建でました!! 〜おすすめポイント〜 ・部屋数が多さが希少な戸建てです!お子さんが多い世帯の方にはおすすめです♪ ・小型犬・猫飼育OKです(家賃+3,000円) ・全室照明付き ・1階にお部屋がたくさんあるので、ご高齢の方がいらっしゃっても安心です。 ※DK以外エアコン、食器棚、ベッドなどは設備ではありません(照明は設備です)。 ※現状TVアンテナはありませんので、TV設置の際はCATVとご契約いただくか、アンテナ設置をお願い致します。 ※駐車場2台目以降は近隣お探しいたします。 ※家賃保証会社加入要(初回保証料:保証人有りで賃料の50%、口座振替手数料:月440円) |
||||
ユニティ不動産/株式会社UNITY
〒690-0064 島根県松江市天神町127番地2F
[免許番号]島根県知事(1)第1344号
◇営業時間 9:30〜18:30◇
水曜日・土曜日・日曜日・祝日も元気に営業しています(^^♪
松江の売買・賃貸物件のことなら何でも
お気軽にご相談ください!
※当社へご来店の際は、天神町13番地の時間貸し駐車場12〜14番をご利用くださいませ。

- 0852-61-8833
- FAX
- 0852-61-8834




