![]()
一戸建借家
借 民芸調古民家・2階建て 広瀬町(比田) 【問合せコード:014-096】
- 賃料/共益費
- 3万円/
- 礼金/敷金
- 無し/3ヶ月
- 現況
- 空室中
- 2階以上
- 南向き
- バス・トイレ別
- 給湯
- 室内洗濯機置場
- 即入居可
- 礼金ゼロ
| 物件番号 | HR0203 | 所在地 | 安来市広瀬町比田 | ||
|---|---|---|---|---|---|
| 種別 | 一戸建借家 | 構造 | 木造 | 建築年月 | |
| 間取り | 5LDK以上 | 専有面積 | 向き | 南 | |
| 建物階数 | 2階建 | 駐車場 | 有(料金込み) | 駐車料金 | |
| 所在階数 | 戸建 | 取引形態 | 仲介 | 仲介料 | |
| 敷き引き | |||||
| 保険料 | 火災保険加入:要 | ||||
| 校区 | 比田小学校・広瀬中学校 | ||||
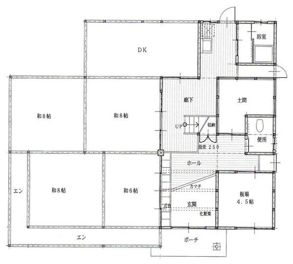
| 備考 | 四季の彩 優雅な暮し 『借 民芸調古民家』 です。 【間取り】1F:台所・和室8帖×3室・和室6帖・板間4.5帖 2F:和室12帖・車庫あり 【設備】トイレ水洗・ガス風呂・駐車場有・車庫有 【備考】保証会社:要加入(※有料) ※間取り・配置は現況優先 ◆◆◆◆◆◆◆◆◆◆◆◆◆ お問い合わせは、 『遠藤会計不動産事務』まで、ご連絡ください。 ☎0854(22)3767 |
||||
遠藤会計不動産事務所
〒692-0011 島根県安来市安来町853番地6
[免許番号]島根県知事(12)第440号
公益社団法人 全国宅地建物取引業保証協会会員
公益社団法人 島根県宅地建物取引業協会会員
公益社団法人 公益社団法人不動産保証協会会員
中国地区不動産公正取引業協会会員
一般社団法人 マンション管理業協会会員

- 0854-22-3767
- FAX
- 0854-21-0012




