![]()
貸し店舗
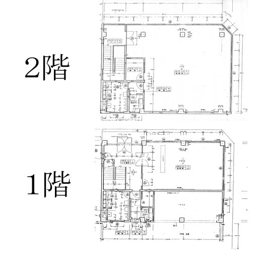
貸店舗・貸事務所 安来町(本町)【問合せコード:17-22】
- 賃料/共益費
- 26万円/
- 礼金/敷金
- 1ヶ月/3ヶ月
- 現況
- 空室待ち(入居可能日:2026年03月15日)
- 2階以上
- 最上階
- 南向き
- エアコン
- 給湯
| 物件番号 | HR0715 | 所在地 | 安来市安来町 | ||
|---|---|---|---|---|---|
| 種別 | 貸し店舗 | 構造 | 鉄筋コンクリート造 | 建築年月 | 1972年5月 |
| 間取り | 無該当 | 専有面積 | 146m² | 向き | 南 |
| 建物階数 | 2階建 | 駐車場 | 有(料金込み) | 駐車料金 | |
| 所在階数 | 2階部 | 取引形態 | 仲介 | 仲介料 | |
| 敷き引き | |||||
| 保険料 | 家財保険加入:要 | ||||
| 校区 | 十神小学校・安来1中 | ||||
| 備考 | 〇家賃:26万円+税 〇設備:ガス・電気・水道・冷暖房有・トイレ水洗 〇駐車場:含む 〇用途地域:商業地域 〇備考:安来市の中心地、安来市役所より280m、安来駅より600m 〇保証会社:要加入 〇引渡日:2026年3月中旬 ※間取り・配置は現況優先 ◆◆◆◆◆◆◆◆◆◆◆◆◆ お問い合わせは、 『遠藤会計不動産事務』まで、ご連絡ください。 ☎0854(22)3767 ◆◆◆◆◆◆◆◆◆◆◆◆◆ |
||||
遠藤会計不動産事務所
〒692-0011 島根県安来市安来町853番地6
[免許番号]島根県知事(12)第440号
公益社団法人 全国宅地建物取引業保証協会会員
公益社団法人 島根県宅地建物取引業協会会員
公益社団法人 公益社団法人不動産保証協会会員
中国地区不動産公正取引業協会会員
一般社団法人 マンション管理業協会会員

- 0854-22-3767
- FAX
- 0854-21-0012


