Ãæ¸Å°ì¸Í·ú½»Âð
¡Ú400Ëü±ß¢ª300Ëü±ß¤Ë ÃͲ¼¤²¤·¤Þ¤·¤¿¡ÛÌó59.4ÄÚ¡¡ÉÍÅÄ»ÔÁêÀ¸Ä®¡¡Çä²È
| ²Á³Ê 300Ëü±ß ¸ò¾Ä¾õ¶· ÈÎÇäÃæ ¸½¶· ¶õ¼¼Ãæ | ¤³¤Îʪ·ï¤Ë¤Ä¤¤¤ÆÌ䤤¹ç¤ï¤»¤ë |
- ´×ÀŽ»ÂðÃÏ
¼Ì¿¿
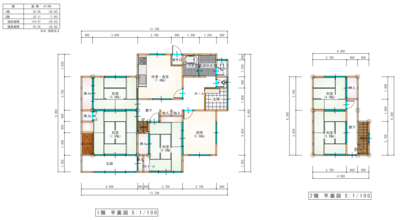
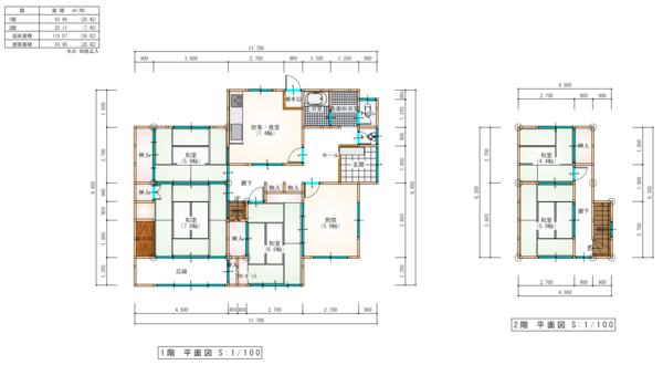
´Ö¼è¤ê¿Þ
ʪ·ï¾ÜºÙ¾ðÊó
1428 since 2026-03-02
¼è¤ê°·¤¤Å¹ÊÞ
TS¥Ç¥¶¥¤¥ó¡¡Í¸Â²ñ¼Ò¡¡»ÖÅÄÈø¹©Ì³Å¹
¢©697-0035¡¡Å纬¸©ÉÍÅĻԿù¸ÍÄ®2328-7
[ÌȵöÈÖ¹æ]Å纬¸©Ãλö¡Ê2¡Ë1312¹æ
¸ø±×¼ÒÃÄË¡¿Í¡¡Á´¹ñÂðÃÏ·úʪ¼è°ú¶È¶¨²ñÏ¢¹ç²ñ
¸ø±×¼ÒÃÄË¡¿Í¡¡Å纬¸©ÂðÃÏ·úʪ¼è°ú¶È¶¨²ñ²ñ°÷

- 0855-23-2345
¤´Ï¢Íí¤ÎºÝ¤Ï¡Ö»³±¢ÉÔÆ°»º¥Ê¥Ó¤ò¸«¤¿¡×¤È¸À¤¦¤È¥¹¥à¡¼¥º¤Ç¤¹ - FAX
- 0855-23-3130


























