¿·ÃÛ°ì¸Í·ú½»Âð
Ê¿²°¹©Ì³Å¹ÉÍÅÄ5ÅÔÌîÄÅÄ®µÊ¬¾ù¥â¥Ç¥ë
| ²Á³Ê 2,300Ëü±ß ¸ò¾Ä¾õ¶· ¾¦ÃÌÃæ ¸½¶· ·úÀßÃæ | ¤³¤Îʪ·ï¤Ë¤Ä¤¤¤ÆÌ䤤¹ç¤ï¤»¤ë |
- ¥¨¥¢¥³¥ó
- ¥ª¡¼¥ëÅŲ½
- ¼ýǼ¥¹¥Ú¡¼¥¹
- IH¥¯¥Ã¥¥ó¥°¥Ò¡¼¥¿¡¼
- ¥·¥¹¥Æ¥à¥¥Ã¥Á¥ó
- Ãó¼Ö¾ì£²Âæ°Ê¾å
¼Ì¿¿
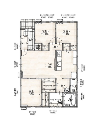
´Ö¼è¤ê¿Þ
ʪ·ï¾ÜºÙ¾ðÊó
| ʪ·ïÈÖ¹æ | AI0264 | ½êºßÃÏ | ¹¾ÄÅ»ÔÅÔÌîÄÅÄ®2347-8 |
|---|---|---|---|
| ¼ïÊÌ | ¿·ÃÛ°ì¸Í·ú½»Âð | ¹½Â¤ | ÌÚ¤£±³¬·ú |
| ´Ö¼è¤ê | £³£Ì£Ä£Ë | ·úÃÛǯ·î | 2026ǯ1·î |
| ·úʪÌÌÀÑ | 77.84Ö¡Ê23.55ÄÚ¡Ë | ÅÚÃÏÌÌÀÑ | 174.12Ö¡Ê52.67ÄÚ¡Ë |
| »äÆ»ÌÌÀÑ | ·ú¤Ú¤¤Î¨ | 60¡ó | |
| ÍÆÀÑΨ | 200¡ó | ÀÜÆ»¾õ¶· | ËÌÅì¦6£í¤Îƻϩ¤Ë6£í¡¢ËÌÀ¾Â¦6£í¤Îƻϩ¤Ë16.2£íÀÜÆ» |
| Êݾڶ⡦Éß¶â | ¸¢Íø¶â | ||
| ¤½¤Î¾°ì»þ¶â | Ãó¼Ö¾ì | Í(ÎÁ¶â¹þ¤ß) | |
| Ãó¼Ö¾ìÀâÌÀ | ¶è²èÈÖ¹æ | ||
| ¼è°ú·ÁÂÖ | Çä¼ç | ÅÚÃϸ¢Íø | ½ê͸¢ |
| ¹ñÅÚË¡ÆÏ½Ð | ÉÔÍ× | ±èÀþ¸òÄÌ | £Ê£Ò |
| °úÅϤ· | ÁêÃÌ | ÃÏÌÜ | ÂðÃÏ |
| ÅԻԷײè | ¤½¤Î¾ | ÍÑÅÓÃϰè | Â裲¼ï½»µïÃϰè |
| ÃÏÌÜÀâÌÀ | |||
| °Ý»ý´ÉÍýÈñÅù | |||
| ¼ÚÃÏ´ü´Ö¡¦ÃÏÂå | |||
| ÃÏÀª | |||
| ´ÉÍý·ÁÂÖ¡¢¾ò·ïÅù | |||
| ºÇ´ó±Ø | ÅÔÌîÄÅ±Ø | ||
| ¥Ð¥¹Åù¸òÄ̼êÃÊ | ¤ª¤«¤À¥Õ¥¡¥ß¥ê¡¼¥¯¥ê¥Ë¥Ã¥¯Á°¥Ð¥¹Ää¤Þ¤ÇÌó290£í¡¡ÅÌÊâÌó4ʬ | ||
| ¹»¶è | ¹¾ÄÅ»ÔΩÄŵܾ®³Ø¹»¡¢¹¾ÄÅ»ÔΩÀÄÎÍÃæ³Ø¹» | ||
| ¾Ò²ð¥µ¥¤¥È | https://niconico-jutaku.com/owner/owner-8475/ | ||
| ¹¹ð͸ú´ü´Ö | 2025ǯ12·î26Æü | ||
| ´Ö¼è¤êÆâÌõ | LDK16Ä¡¡¢¿²¼¼6Ä¡¡¢Íμ¼4.5Ä¡¡¢Íμ¼4.5Ä¡¡¢¥Õ¥¡¥ß¥ê¡¼¥¯¥í¡¼¥¼¥Ã¥È | ||
| È÷¹Í | |||
| ʪ·ïÈÖ¹æ | AI0264 | ||
|---|---|---|---|
| ½êºßÃÏ | ¹¾ÄÅ»ÔÅÔÌîÄÅÄ®2347-8 | ||
| ¼ïÊÌ | ¿·ÃÛ°ì¸Í·ú½»Âð | ||
| ¹½Â¤ | ÌÚ¤£±³¬·ú | ||
| ´Ö¼è¤ê | £³£Ì£Ä£Ë | ||
| ·úÃÛǯ·î | 2026ǯ1·î | ||
| ·úʪÌÌÀÑ | 77.84Ö¡Ê23.55ÄÚ¡Ë | ||
| ÅÚÃÏÌÌÀÑ | 174.12Ö¡Ê52.67ÄÚ¡Ë | ||
| »äÆ»ÌÌÀÑ | |||
| ·ú¤Ú¤¤Î¨ | 60¡ó | ||
| ÍÆÀÑΨ | 200¡ó | ||
| ÀÜÆ»¾õ¶· | ËÌÅì¦6£í¤Îƻϩ¤Ë6£í¡¢ËÌÀ¾Â¦6£í¤Îƻϩ¤Ë16.2£íÀÜÆ» | ||
| Êݾڶ⡦Éß¶â | |||
| ¸¢Íø¶â | |||
| ¤½¤Î¾°ì»þ¶â | |||
| Ãó¼Ö¾ì | Í(ÎÁ¶â¹þ¤ß) | ||
| Ãó¼Ö¾ìÀâÌÀ | |||
| ¶è²èÈÖ¹æ | |||
| ¼è°ú·ÁÂÖ | Çä¼ç | ||
| ÅÚÃϸ¢Íø | ½ê͸¢ | ||
| ¹ñÅÚË¡ÆÏ½Ð | ÉÔÍ× | ||
| ±èÀþ¸òÄÌ | £Ê£Ò | ||
| °úÅϤ· | ÁêÃÌ | ||
| ÃÏÌÜ | ÂðÃÏ | ||
| ÅԻԷײè | ¤½¤Î¾ | ||
| ÍÑÅÓÃϰè | Â裲¼ï½»µïÃϰè | ||
| ÃÏÌÜÀâÌÀ | |||
| °Ý»ý´ÉÍýÈñÅù | |||
| ¼ÚÃÏ´ü´Ö¡¦ÃÏÂå | |||
| ÃÏÀª | |||
| ´ÉÍý·ÁÂÖ¡¢¾ò·ïÅù | |||
| ºÇ´ó±Ø | ÅÔÌîÄÅ±Ø | ||
| ¥Ð¥¹Åù¸òÄ̼êÃÊ | ¤ª¤«¤À¥Õ¥¡¥ß¥ê¡¼¥¯¥ê¥Ë¥Ã¥¯Á°¥Ð¥¹Ää¤Þ¤ÇÌó290£í¡¡ÅÌÊâÌó4ʬ | ||
| ¹»¶è | ¹¾ÄÅ»ÔΩÄŵܾ®³Ø¹»¡¢¹¾ÄÅ»ÔΩÀÄÎÍÃæ³Ø¹» | ||
| ¾Ò²ð¥µ¥¤¥È | https://niconico-jutaku.com/owner/owner-8475/ | ||
| ¹¹ð͸ú´ü´Ö | 2025ǯ12·î26Æü | ||
| ´Ö¼è¤êÆâÌõ | LDK16Ä¡¡¢¿²¼¼6Ä¡¡¢Íμ¼4.5Ä¡¡¢Íμ¼4.5Ä¡¡¢¥Õ¥¡¥ß¥ê¡¼¥¯¥í¡¼¥¼¥Ã¥È | ||
| È÷¹Í | |||
329 since 2025-10-25
¼è¤ê°·¤¤Å¹ÊÞ
Ãæ±û·úÀߡʳô¡Ë
¢©693-0028¡¡Å纬¸©½Ð±À»Ô±öÌêÁ±¹ÔÄ®£±£°¡Ý£±
[ÌȵöÈÖ¹æ]¹ñÅÚ¸òÄÌÂç¿Ã(3¡ËÂè8852¹æ
¸ø±×¼ÒÃÄË¡¿Í¡¡Á´ÆüËÜÉÔÆ°»º¶¨²ñ²ñ°÷
¸ø±×¼ÒÃÄË¡¿Í¡¡ÉÔÆ°»ºÊݾڶ¨²ñ²ñ°÷
Ãæ¹ñÃ϶èÉÔÆ°»º¸øÀµ¼è°ú¶¨µÄ²ñ²ñ°÷

- 0853-22-6311
¤´Ï¢Íí¤ÎºÝ¤Ï¡Ö»³±¢ÉÔÆ°»º¥Ê¥Ó¤ò¸«¤¿¡×¤È¸À¤¦¤È¥¹¥à¡¼¥º¤Ç¤¹ - FAX
- 0853-22-6794















