°ì³çÇä¥Ó¥ë
Ëö¼¡ËÜÄ®£±£°0¡¡¥Æ¥Ê¥ó¥È¥Ó¥ë
| ²Á³Ê 6,200Ëü±ß ¸ò¾Ä¾õ¶· ÈÎÇäÃæ ¸½¶· ¶õ¼¼Ãæ | ¤³¤Îʪ·ï¤Ë¤Ä¤¤¤ÆÌ䤤¹ç¤ï¤»¤ë |
¼Ì¿¿
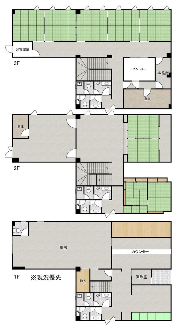
´Ö¼è¤ê¿Þ
ʪ·ï¾ÜºÙ¾ðÊó
2064 since 2025-12-08
¼è¤ê°·¤¤Å¹ÊÞ
͸²ñ¼ÒÄ«Æü½»Âð
¢©690-0017¡¡¾¾¹¾»ÔÀ¾ÄÅÅÄ4ÃúÌÜ1ÈÖ2¹æ
[ÌȵöÈÖ¹æ]Å纬¸©Ãλö¡Ê£¶¡ËÂ裹£³£°¹æ
¸ø±×¼ÒÃÄË¡¿ÍÁ´¹ñÂðÃÏ·úʪ¼è°ú¶ÈÊݾڶ¨²ñ²ñ°÷
¸ø±×¼ÒÃÄË¡¿ÍÅ纬¸©ÂðÃÏ·úʪ¼è°ú¶È¶¨²ñ²ñ°÷
°ìÈ̼ÒÃÄË¡¿ÍÁ´¹ñÄÂÂßÉÔÆ°»º´ÉÍý¶È¶¨²ñ²ñ°÷

- 0852-67-2020
¤´Ï¢Íí¤ÎºÝ¤Ï¡Ö»³±¢ÉÔÆ°»º¥Ê¥Ó¤ò¸«¤¿¡×¤È¸À¤¦¤È¥¹¥à¡¼¥º¤Ç¤¹ - FAX
- 0852-67-2021


























