Ãæ¸Å°ì¸Í·ú½»Âð
¼þÉÛÄ®¡¡Ãæ¸Å¸Í·ú½»Âð
| ²Á³Ê 1,980Ëü±ß ¸ò¾Ä¾õ¶· ÈÎÇäÃæ ¸½¶· ¶õ¼¼Ãæ | ¤³¤Îʪ·ï¤Ë¤Ä¤¤¤ÆÌ䤤¹ç¤ï¤»¤ë |
- ¥¨¥¢¥³¥ó
- µëÅò
- ¥ª¡¼¥ëÅŲ½
- ¼ýǼ¥¹¥Ú¡¼¥¹
- Àö¾ôÊØºÂ
- ÃÈË¼ÊØºÂ
- ¥Õ¥í¡¼¥ê¥ó¥°
- IH¥¯¥Ã¥¥ó¥°¥Ò¡¼¥¿¡¼
- ¥·¥¹¥Æ¥à¥¥Ã¥Á¥ó
- ¥Ð¥ë¥³¥Ë¡¼
- TV¥â¥Ë¥¿¡¼¥Õ¥©¥ó
- Íá¼¼´¥Áç
- Äɤ¤¿æ¤
- ÆüÅö¤¿¤êÎɹ¥
- ´×ÀŽ»ÂðÃÏ
- Ãó¼Ö¾ì£²Âæ°Ê¾å
¼Ì¿¿
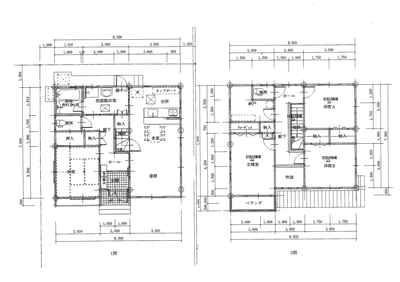
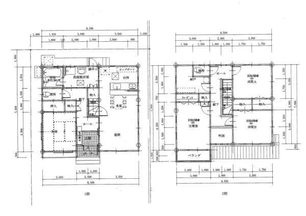
´Ö¼è¤ê¿Þ
ʪ·ï¾ÜºÙ¾ðÊó
16 since 2026-03-12
¼è¤ê°·¤¤Å¹ÊÞ
͸²ñ¼Ò¥¹¥¨¥¿ÉÔÆ°»º
¢©697-0027¡¡Å纬¸©ÉÍÅÄ»ÔÅÂÄ®83ÈÖÃÏ194¡¡¥¹¥¨¥¿£Ò¥Ó¥ë1F
[ÌȵöÈÖ¹æ]Å纬¸©Ãλö¡Ê6¡ËÂè951¹æ
¡ÚURL¡Û http://sueta-fudousan.jp/
¡Ú±Ä¶È»þ´Ö¡ÛÊ¿Æü¡¡9¡§00¡Á17¡§30
¡ÚÄêµÙÆü¡ÛÅÚ¡¦Æü¡¦½ËÆü
¡ÚÃó¼Ö¾ì¡Û·úʪ²£¤Î¤ªµÒÍÍÃó¼Ö¾ì¤ò¤´ÍøÍѤ¯¤À¤µ¤¤¤Þ¤»¡£
¡Ú²ÃÌÁÃÄÂΡ۸ø±×¼ÒÃÄË¡¿Í¡¡Á´¹ñÂðÃÏ·úʪ¼è°ú¶ÈÊݾڶ¨²ñ
¡¡¡¡¡¡¡¡¡¡¡¡¸ø±×¼ÒÃÄË¡¿Í¡¡Å纬¸©ÂðÃÏ·úʪ¼è°ú¶È¶¨²ñ

- 0855-24-2030
¤´Ï¢Íí¤ÎºÝ¤Ï¡Ö»³±¢ÉÔÆ°»º¥Ê¥Ó¤ò¸«¤¿¡×¤È¸À¤¦¤È¥¹¥à¡¼¥º¤Ç¤¹ - FAX
- 0855-24-2031


























