Ãæ¸Å°ì¸Í·ú½»Âð
º½»ÒÄ®¡¡Ãæ¸Å½»Âð
| ²Á³Ê 1,200Ëü±ß ¸ò¾Ä¾õ¶· ¾¦ÃÌÃæ ¸½¶· ¶õ¼¼Ãæ | ¤³¤Îʪ·ï¤Ë¤Ä¤¤¤ÆÌ䤤¹ç¤ï¤»¤ë |
- µëÅò
- ¥ª¡¼¥ëÅŲ½
- ¼ýǼ¥¹¥Ú¡¼¥¹
- ¾²²¼¼ýǼ
- ÃÈË¼ÊØºÂ
- IH¥¯¥Ã¥¥ó¥°¥Ò¡¼¥¿¡¼
- ÀìÍÑÄí
- ÆüÅö¤¿¤êÎɹ¥
- ´×ÀŽ»ÂðÃÏ
¼Ì¿¿
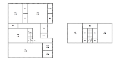
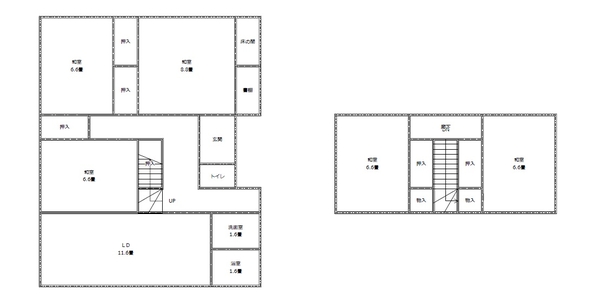
´Ö¼è¤ê¿Þ
ʪ·ï¾ÜºÙ¾ðÊó
1553 since 2025-10-31
¼è¤ê°·¤¤Å¹ÊÞ
³ô¼°²ñ¼Ò¡¡¾¾Èø¹©Ì³Å¹
¢©690-0876¡¡Å纬¸©¾¾¹¾»Ô¹õÅÄÄ®350ÈÖÃÏ32
[ÌȵöÈÖ¹æ]Å纬¸©Ãλö¡Ê12¡ËÂè484¹æ
¸ø±×¼ÒÃÄË¡¿Í¡¡Å纬¸©ÂðÃÏ·úʪ¼è°ú¶È¶¨²ñ²ñ°÷

- 0852-23-1230
¤´Ï¢Íí¤ÎºÝ¤Ï¡Ö»³±¢ÉÔÆ°»º¥Ê¥Ó¤ò¸«¤¿¡×¤È¸À¤¦¤È¥¹¥à¡¼¥º¤Ç¤¹ - FAX
- 0852-23-1233


























