Ãæ¸Å°ì¸Í·ú½»Âð
¡ÚÅì»ýÅÄÄ®Ãæ¸Å°ì¸Í·ú½»Âð¡Û»ýÅľ®³Ø¹»¤ØÅÌÊâ4ʬ¡ª¼þÊմͽ¼¼Â¢ö
| ²Á³Ê 2,650Ëü±ß ¸ò¾Ä¾õ¶· ÈÎÇäÃæ ¸½¶· ÆþµïÃæ | ¤³¤Îʪ·ï¤Ë¤Ä¤¤¤ÆÌ䤤¹ç¤ï¤»¤ë |
- Îä˼
- ÃÈ˼
- ¥¨¥¢¥³¥ó
- µëÅò
- ¥ª¡¼¥ëÅŲ½
- ¼ýǼ¥¹¥Ú¡¼¥¹
- ¾²²¼¼ýǼ
- Àö¾ôÊØºÂ
- ÃÈË¼ÊØºÂ
- ¥Õ¥í¡¼¥ê¥ó¥°
- IH¥¯¥Ã¥¥ó¥°¥Ò¡¼¥¿¡¼
- ¥·¥¹¥Æ¥à¥¥Ã¥Á¥ó
- ¥í¥Õ¥È
- ¥Æ¥é¥¹
- ÀìÍÑÄí
- TV¥â¥Ë¥¿¡¼¥Õ¥©¥ó
- Íá¼¼´¥Áç
- Äɤ¤¿æ¤
- ÆüÅö¤¿¤êÎɹ¥
- ´×ÀŽ»ÂðÃÏ
- Ãó¼Ö¾ì£²Âæ°Ê¾å
¼Ì¿¿
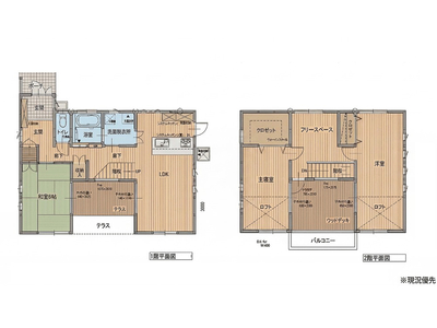
´Ö¼è¤ê¿Þ
ʪ·ï¾ÜºÙ¾ðÊó
12 since 2026-04-19
¼è¤ê°·¤¤Å¹ÊÞ
³ô¼°²ñ¼Ò¥Þ¥Á¥ê¥ÖÉÔÆ°»º
¢©683-0853¡¡ÊƻһÔξ»°Ìø255-8
[ÌȵöÈÖ¹æ]Ä»¼è¸©Ãλö¡Ê£±¡ËÂè1444¹æ
¸ø±×¼ÒÃÄË¡¿Í Á´¹ñÂðÃÏ·úʪ¼è°ú¶ÈÊݾڶ¨²ñ²ñ°÷
¡ÚÂðÃÏ·úʪ¼è°ú¶ÈÊݾڶ¨²ñ¤Î̾¾ÎµÚ¤Ó½êºßÃÏ¡Û
¸ø±×¼ÒÃÄË¡¿Í¡¡Á´¹ñÂðÃÏ·úʪ¼è°ú¶ÈÊݾڶ¨²ñ
ÅìµþÅÔÀéÂåÅĶè´äËÜÄ®£²ÃúÌÜ£¶ÈÖ£³¹æ
½ê°ÃÏÊýËÜÉô¤Î̾¾ÎµÚ¤Ó½êºßÃÏ
Ä»¼èËÜÉô
Ä»¼è¸©Ä»¼è»ÔÀîü2ÃúÌÜ125ÈÖÃÏ
Ä»¼è¸©ÉÔÆ°»º²ñ´Û
¡ÚÊۺѶÈ̳Êݾڶâ¤Î¶¡Â÷½êµÚ¤Ó½êºßÃÏ¡Û
Åìµþˡ̳¶É
ÅìµþÅÔÀéÂåÅĶè¶åÃÊÆî£±ÃúÌÜ£±ÈÖ15¹æ

- 0120-759-575
¤´Ï¢Íí¤ÎºÝ¤Ï¡Ö»³±¢ÉÔÆ°»º¥Ê¥Ó¤ò¸«¤¿¡×¤È¸À¤¦¤È¥¹¥à¡¼¥º¤Ç¤¹ - FAX
- 0859-21-2235


























