Ãæ¸Å°ì¸Í·ú½»Âð
±ü½Ð±ÀĮȬÀî£ÈÅ¡Ãæ¸Å½»Âð
| ²Á³Ê 200Ëü±ß ¸ò¾Ä¾õ¶· ÈÎÇäÃæ ¸½¶· ¶õ¼¼Ãæ | ¤³¤Îʪ·ï¤Ë¤Ä¤¤¤ÆÌ䤤¹ç¤ï¤»¤ë |
- ¥×¥í¥Ñ¥ó¥¬¥¹
¼Ì¿¿
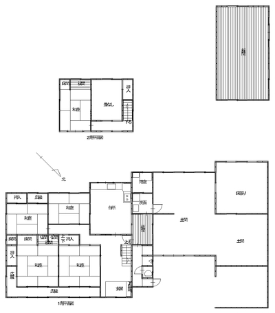
´Ö¼è¤ê¿Þ
ʪ·ï¾ÜºÙ¾ðÊó
194 since 2026-01-07
¼è¤ê°·¤¤Å¹ÊÞ
͸²ñ¼Ò¡¡Áí¹çÂð·ú
¢©690-0048¡¡Å纬¸©¾¾¹¾»ÔÀ¾²ÇÅ磱ÃúÌÜ£±¡Ý£±£³
[ÌȵöÈÖ¹æ]Å纬¸©Ãλö¡Ê4¡Ë1120¹æ
¸ø±×¼ÒÃÄË¡¿Í¡¡Å纬¸©ÂðÃÏ·úʪ¼è°ú¶È¶¨²ñ²ñ°÷
¸ø±×¼ÒÃÄË¡¿Í¡¡Á´¹ñÂðÃÏ·úʪ¼è°ú¶ÈÊݾڶ¨²ñ²ñ°÷
°ìÈ̼ÒÃÄË¡¿Í¡¡Á´¹ñÄÂÂßÉÔÆ°»º´ÉÍý¶È¶¨²ñ²ñ°÷
¡Ú±Ä¶È»þ´Ö¡Û£¹¡§£°£°¡Á£±£·¡§£°£°
¡ÚÄêµÙÆü¡ÛÅÚ¡¦Æü¡¦½Ë

- 0852-28-8032
¤´Ï¢Íí¤ÎºÝ¤Ï¡Ö»³±¢ÉÔÆ°»º¥Ê¥Ó¤ò¸«¤¿¡×¤È¸À¤¦¤È¥¹¥à¡¼¥º¤Ç¤¹ - FAX
- 0852-28-8034

























