Ãæ¸Å°ì¸Í·ú½»Âð
ÆîÅÄÄ®¡¡/¡¡Êì°á¾®¹»¶è¡¡/¡¡Âç²È²¸þ¤±ÃÛ7ǯ¤Î²È
| ²Á³Ê 3,580Ëü±ß ¸ò¾Ä¾õ¶· ÈÎÇäÃæ ¸½¶· ÆþµïÃæ | ¤³¤Îʪ·ï¤Ë¤Ä¤¤¤ÆÌ䤤¹ç¤ï¤»¤ë |
- ÅÔ»Ô¥¬¥¹
- µëÅò
- ¼ýǼ¥¹¥Ú¡¼¥¹
- ¾²²¼¼ýǼ
- Àö¾ôÊØºÂ
- ÃÈË¼ÊØºÂ
- ¥Õ¥í¡¼¥ê¥ó¥°
- ¥·¥¹¥Æ¥à¥¥Ã¥Á¥ó
- ÁÒ¸Ë
- ÀìÍÑÄí
- TV¥â¥Ë¥¿¡¼¥Õ¥©¥ó
- Íá¼¼´¥Áç
- Äɤ¤¿æ¤
- ¥Ú¥Ã¥ÈÁêÃ̲Ä
- ³Ú´ïÁêÃ̲Ä
- ÆüÅö¤¿¤êÎɹ¥
- ´×ÀŽ»ÂðÃÏ
- ¥Ð¥ê¥¢¥Õ¥ê¡¼
- Ãó¼Ö¾ì£²Âæ°Ê¾å
¼Ì¿¿
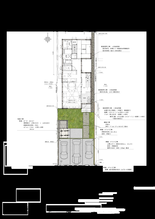
´Ö¼è¤ê¿Þ
ʪ·ï¾ÜºÙ¾ðÊó
55 since 2026-02-15
¼è¤ê°·¤¤Å¹ÊÞ
¥ê¥¯¥·¥ëÉÔÆ°»º¥·¥ç¥Ã¥×¡¡¡¡DAIKOUÉÔÆ°»º¡¡
¢©690-0024¡¡Å纬¸©¾¾¹¾»ÔÇϳãÄ®341-4
[ÌȵöÈÖ¹æ]Å纬¸©Ãλö¡Ê4¡ËÂè1103¹æ
±Ä¶È»þ´Ö¡¡9¡§00¡Á18¡§00
µÙ¶ÈÆü¡§Ëè½µ²ÐÍË¡¦¿åÍË¡¢²Æµ¨µÙ²Ë¡¢Ç¯Ëöǯ»Ï
¸ø±×¼ÒÃÄË¡¿Í¡¡Å纬¸©ÂðÃÏ·úʪ¼è°ú¶È¶¨²ñ²ñ°÷

- 0852-61-9020
¤´Ï¢Íí¤ÎºÝ¤Ï¡Ö»³±¢ÉÔÆ°»º¥Ê¥Ó¤ò¸«¤¿¡×¤È¸À¤¦¤È¥¹¥à¡¼¥º¤Ç¤¹ - FAX
- 0852-33-7769
















