Ãæ¸Å°ì¸Í·ú½»Âð
½Ð±À»ÔÈåÀîÄ®¹õÌܤÎÃæ¸Å½»Âð
| ²Á³Ê 2,480Ëü±ß ¸ò¾Ä¾õ¶· ÈÎÇäÃæ ¸½¶· ÆþµïÃæ | ¤³¤Îʪ·ï¤Ë¤Ä¤¤¤ÆÌ䤤¹ç¤ï¤»¤ë |
¼Ì¿¿
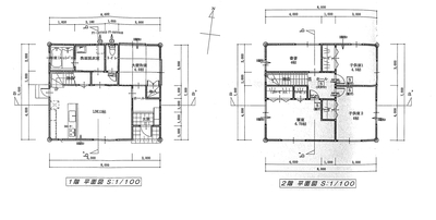
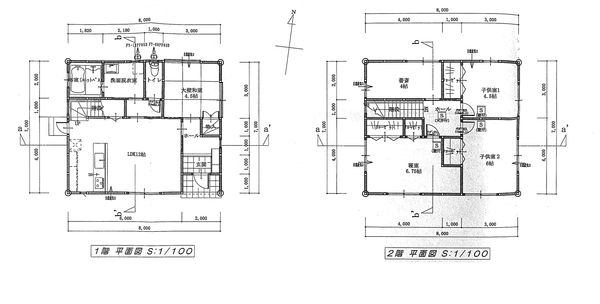
´Ö¼è¤ê¿Þ
ʪ·ï¾ÜºÙ¾ðÊó
| ʪ·ïÈÖ¹æ | EF0003 | ½êºßÃÏ | ½Ð±À»ÔÈåÀîÄ®¹õÌÜ |
|---|---|---|---|
| ¼ïÊÌ | Ãæ¸Å°ì¸Í·ú½»Âð | ¹½Â¤ | ÌÚ¤£²³¬·ú |
| ´Ö¼è¤ê | £µ£Ì£Ä£Ë | ·úÃÛǯ·î | 2010ǯ |
| ·úʪÌÌÀÑ | 100Ö¡Ê30.25ÄÚ¡Ë | ÅÚÃÏÌÌÀÑ | 350.5Ö¡Ê106.03ÄÚ¡Ë |
| »äÆ»ÌÌÀÑ | ·ú¤Ú¤¤Î¨ | 70¡ó | |
| ÍÆÀÑΨ | 200¡ó | ÀÜÆ»¾õ¶· | Åì¦¤Ë»ÔÆ»5mÀÜÆ» |
| Êݾڶ⡦Éß¶â | ¸¢Íø¶â | ||
| ¤½¤Î¾°ì»þ¶â | Ãó¼Ö¾ì | Í(ÎÁ¶â¹þ¤ß) | |
| Ãó¼Ö¾ìÀâÌÀ | ¶è²èÈÖ¹æ | ||
| ¼è°ú·ÁÂÖ | ÇÞ²ð | ÅÚÃϸ¢Íø | ½ê͸¢ |
| ¹ñÅÚË¡ÆÏ½Ð | ÉÔÍ× | ±èÀþ¸òÄÌ | £Ê£Ò |
| °úÅϤ· | ÁêÃÌ | ÃÏÌÜ | ÂðÃÏ |
| ÅԻԷײè | ¤½¤Î¾ | ÍÑÅÓÃϰè | »ØÄê¤Ê¤· |
| ÃÏÌÜÀâÌÀ | |||
| °Ý»ý´ÉÍýÈñÅù | |||
| ¼ÚÃÏ´ü´Ö¡¦ÃÏÂå | |||
| ÃÏÀª | |||
| ´ÉÍý·ÁÂÖ¡¢¾ò·ïÅù | |||
| ºÇ´ó±Ø | |||
| ¥Ð¥¹Åù¸òÄ̼êÃÊ | |||
| ¹»¶è | ½ÐÅì¾®³Ø¹» | ||
| ¾Ò²ð¥µ¥¤¥È | https://www.ohkurahome.com/co_bukken/d0650f35e164d32c55c494b7d9994239-147.html&p=5 | ||
| ¹¹ð͸ú´ü´Ö | |||
| ´Ö¼è¤êÆâÌõ | |||
| È÷¹Í | ²èÁü¤Ï½×¹©»þ¤Î¤â¤Î¤Ç¤¹¡£¸½ºß¤Î¤â¤Î¤Ç¤Ï¤¢¤ê¤Þ¤»¤ó¡£ | ||
| ʪ·ïÈÖ¹æ | EF0003 | ||
|---|---|---|---|
| ½êºßÃÏ | ½Ð±À»ÔÈåÀîÄ®¹õÌÜ | ||
| ¼ïÊÌ | Ãæ¸Å°ì¸Í·ú½»Âð | ||
| ¹½Â¤ | ÌÚ¤£²³¬·ú | ||
| ´Ö¼è¤ê | £µ£Ì£Ä£Ë | ||
| ·úÃÛǯ·î | 2010ǯ | ||
| ·úʪÌÌÀÑ | 100Ö¡Ê30.25ÄÚ¡Ë | ||
| ÅÚÃÏÌÌÀÑ | 350.5Ö¡Ê106.03ÄÚ¡Ë | ||
| »äÆ»ÌÌÀÑ | |||
| ·ú¤Ú¤¤Î¨ | 70¡ó | ||
| ÍÆÀÑΨ | 200¡ó | ||
| ÀÜÆ»¾õ¶· | Åì¦¤Ë»ÔÆ»5mÀÜÆ» | ||
| Êݾڶ⡦Éß¶â | |||
| ¸¢Íø¶â | |||
| ¤½¤Î¾°ì»þ¶â | |||
| Ãó¼Ö¾ì | Í(ÎÁ¶â¹þ¤ß) | ||
| Ãó¼Ö¾ìÀâÌÀ | |||
| ¶è²èÈÖ¹æ | |||
| ¼è°ú·ÁÂÖ | ÇÞ²ð | ||
| ÅÚÃϸ¢Íø | ½ê͸¢ | ||
| ¹ñÅÚË¡ÆÏ½Ð | ÉÔÍ× | ||
| ±èÀþ¸òÄÌ | £Ê£Ò | ||
| °úÅϤ· | ÁêÃÌ | ||
| ÃÏÌÜ | ÂðÃÏ | ||
| ÅԻԷײè | ¤½¤Î¾ | ||
| ÍÑÅÓÃϰè | »ØÄê¤Ê¤· | ||
| ÃÏÌÜÀâÌÀ | |||
| °Ý»ý´ÉÍýÈñÅù | |||
| ¼ÚÃÏ´ü´Ö¡¦ÃÏÂå | |||
| ÃÏÀª | |||
| ´ÉÍý·ÁÂÖ¡¢¾ò·ïÅù | |||
| ºÇ´ó±Ø | |||
| ¥Ð¥¹Åù¸òÄ̼êÃÊ | |||
| ¹»¶è | ½ÐÅì¾®³Ø¹» | ||
| ¾Ò²ð¥µ¥¤¥È | https://www.ohkurahome.com/co_bukken/d0650f35e164d32c55c494b7d9994239-147.html&p=5 | ||
| ¹¹ð͸ú´ü´Ö | |||
| ´Ö¼è¤êÆâÌõ | |||
| È÷¹Í | ²èÁü¤Ï½×¹©»þ¤Î¤â¤Î¤Ç¤¹¡£¸½ºß¤Î¤â¤Î¤Ç¤Ï¤¢¤ê¤Þ¤»¤ó¡£ | ||
13 since 2026-04-13
¼è¤ê°·¤¤Å¹ÊÞ
³ô¼°²ñ¼ÒÂçÁÒ¥Û¡¼¥à
¢©699-0505¡¡Å纬¸©½Ð±À»ÔÈåÀîÄ®¾å¾±¸¶1422-1
[ÌȵöÈÖ¹æ]Å纬¸©Ãλö(6)Âè989¹æ
¼õÉÕ¡¿8:30¡Á17:30¡¡
ÄêµÙÆü¡¿³Ö½µÅÚÍËÆü¡¢ÆüÍËÆü
¸ø±×¼ÒÃÄË¡¿ÍÁ´ÆüËÜÉÔÆ°»º¶¨²ñÅ纬¸©ËÜÉô²ñ°÷
¸ø±×¼ÒÃÄË¡¿ÍÉÔÆ°»ºÊݾڶ¨²ñÅ纬¸©ËÜÉô²ñ°÷
°ìÈ̼ÒÃÄË¡¿ÍÁ´¹ñÉÔÆ°»º¶¨²ñÅ纬¸©ËÜÉô²ñ°÷

- 0853-72-9394
¤´Ï¢Íí¤ÎºÝ¤Ï¡Ö»³±¢ÉÔÆ°»º¥Ê¥Ó¤ò¸«¤¿¡×¤È¸À¤¦¤È¥¹¥à¡¼¥º¤Ç¤¹ - FAX
- 0853-72-9391


























