Ãæ¸Å°ì¸Í·ú½»Âð
¡Ṳ́Æþµïʪ·ï¡ÛÂçÄíÄ®22¹æÃÏ¡ÚZEH޵ި޴ŽÝŽÃޝŽÄŽÞ´ð½à¡¦Îô²½ÂкöÅùµé£³¤Ê¤É¡Û
| ²Á³Ê 2,750Ëü±ß ¸ò¾Ä¾õ¶· ÈÎÇäÃæ ¸½¶· ¶õ¼¼Ãæ | ¤³¤Îʪ·ï¤Ë¤Ä¤¤¤ÆÌ䤤¹ç¤ï¤»¤ë |
- µëÅò
- ¥ª¡¼¥ëÅŲ½
- ¼ýǼ¥¹¥Ú¡¼¥¹
- Àö¾ôÊØºÂ
- ÃÈË¼ÊØºÂ
- ¥Õ¥í¡¼¥ê¥ó¥°
- IH¥¯¥Ã¥¥ó¥°¥Ò¡¼¥¿¡¼
- ¥·¥¹¥Æ¥à¥¥Ã¥Á¥ó
- TV¥â¥Ë¥¿¡¼¥Õ¥©¥ó
- Íá¼¼´¥Áç
- ¥Ú¥Ã¥ÈÁêÃ̲Ä
- ³Ú´ïÁêÃ̲Ä
- ÆüÅö¤¿¤êÎɹ¥
- Ãó¼Ö¾ì£²Âæ°Ê¾å
¼Ì¿¿
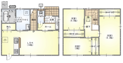
´Ö¼è¤ê¿Þ
ʪ·ï¾ÜºÙ¾ðÊó
| ʪ·ïÈÖ¹æ | EL0036 | ½êºßÃÏ | ¾¾¹¾»ÔÂçÄíÄ®1109-21¡ÊÂçÄí22¹æÃÏ¡Ë |
|---|---|---|---|
| ¼ïÊÌ | Ãæ¸Å°ì¸Í·ú½»Âð | ¹½Â¤ | ÌÚ¤£²³¬·ú |
| ´Ö¼è¤ê | £³£Ì£Ä£Ë | ·úÃÛǯ·î | 2023ǯ7·î |
| ·úʪÌÌÀÑ | 84.46Ö¡Ê25.55ÄÚ¡Ë | ÅÚÃÏÌÌÀÑ | 200.2Ö¡Ê60.56ÄÚ¡Ë |
| »äÆ»ÌÌÀÑ | ·ú¤Ú¤¤Î¨ | 60¡ó | |
| ÍÆÀÑΨ | 100¡ó | ÀÜÆ»¾õ¶· | À¾Â¦¸øÆ»¡¡Éý°÷6.0£í |
| Êݾڶ⡦Éß¶â | ¸¢Íø¶â | ||
| ¤½¤Î¾°ì»þ¶â | ¿åƻʬô¶â¡¡88000±ßÍ× | Ãó¼Ö¾ì | Í(ÎÁ¶â¹þ¤ß) |
| Ãó¼Ö¾ìÀâÌÀ | ½ÄÎó£³ÂæÃó¼Ö²Äǽ | ¶è²èÈÖ¹æ | |
| ¼è°ú·ÁÂÖ | Çä¼ç | ÅÚÃϸ¢Íø | ½ê͸¢ |
| ¹ñÅÚË¡ÆÏ½Ð | ÉÔÍ× | ±èÀþ¸òÄÌ | £Ê£Ò |
| °úÅϤ· | ¨»þ | ÃÏÌÜ | ÂðÃÏ |
| ÅԻԷײè | »Ô³¹²½Ä´À°¶è°è | ÍÑÅÓÃϰè | »ØÄê¤Ê¤· |
| ÃÏÌÜÀâÌÀ | |||
| °Ý»ý´ÉÍýÈñÅù | |||
| ¼ÚÃÏ´ü´Ö¡¦ÃÏÂå | |||
| ÃÏÀª | |||
| ´ÉÍý·ÁÂÖ¡¢¾ò·ïÅù | |||
| ºÇ´ó±Ø | |||
| ¥Ð¥¹Åù¸òÄ̼êÃÊ | Ȭ½Å³ÀÃÄÃÏÆþ¸ýÅÌÊâ8ʬ | ||
| ¹»¶è | ÂçÄí¾®³Ø¹»¡ÊÌó500£í¡Ë¸ÐÅìÃæ³Ø¹»¡ÊÌó1800£í¡Ë | ||
| ¾Ò²ð¥µ¥¤¥È | https://matsue-housedo.com/new_ikkodate/3386801/ | ||
| ¹¹ð͸ú´ü´Ö | |||
| ´Ö¼è¤êÆâÌõ | |||
| È÷¹Í | ¡ù 3/24 ²Á³ÊÊѹ¹¡ª ´°À®¤«¤é£±Ç¯¤¬·Ð²á¤·¤¿¤¿¤á¡¢Ì¤ÆþµïÃæ¸Åʪ·ï¤È¤¤¤¦°·¤¤¤Ë¤Ê¤ê¤Þ¤¹¡£ ¼¼Æâ¤ÏÆþµï¤·¤¿¤³¤È¤¬¤Ê¤¤¤¿¤á¡¢¾õÂÖ¤ÏÊѤï¤ê¤Ê¤¯¥¥ì¥¤¤Ê¤Þ¤Þ¤Ç¤¹¡ª ¾Ò²ð¥µ¥¤¥ÈURL¤«¤é¼Ì¿¿Â¿¿ô&360¡ë¼Ì¿¿¤â¤´Í÷¤¤¤¿¤À¤±¤Þ¤¹¡£ ¡¦ÂÑ¿ÌÅùµé£³¡¡ºå¿ÀøϩÂç¿ÌºÒ¥¯¥é¥¹¤ÎÃϿ̤òÁÛÄꤷ¤¿Âѿ̽»Âð ¡¡¡¡¡¡¡¡¡¡¡¡¡¡ÃÏ¿ÌÊݸ±ÎÁ¤¬50¡ó³ä°ú¤È¤¤¤¦·ÐºÑŪ¥á¥ê¥Ã¥È¤â¤¢¤ê¤Þ¤¹ ¡¦Îô²½ÂкöÅùµé£³¡¡³µ¤Í75¡Á90ǯ¤ÎÂѵ×À ¡¦ZEH¥ª¥ê¥¨¥ó¥Æ¥Ã¥É´ð½à¤Î¼×Ç®Àǽ¤ÇÇ¯Ãæ²÷Ŭ¡¢¾Ê¥¨¥Í¤ÇÅŵ¤Âå·Ú¸º¤â ¡¦³°ÊÉ¡¡¸÷¥»¥é¡¡¡Ú³°ÊɤΥá¥ó¥Æ¥Ê¥ó¥¹¤Ï40ǯ¸å¤Ë¡Û¥á¥ó¥Æ¥Ê¥ó¥¹¤Î¼ê´Ö¤ÈÈñÍѤòÍÞ¤¨¤Þ¤¹¡£ ¡¦´¤²°º¬¡¡¡Ú¸«¤¿ÌܤÎÈþ¤·¤µ¤ÈÂѵ×À¤ò·ó¤ÍÈ÷¤¨¤¿ÁǺà¡Û ¡¦Ä¶¹âÃÇÇ®Áë¡¡²Æ¤ÎÂÀÍÛ¤«¤é¤ÎÇ®Àþ¤ò60¡ó°Ê¾å¥«¥Ã¥È¡£·ëϪ¤â¤·¤Ë¤¯¤¤¤Ç¤¹¡£ ¡¦¥¹¥Þ¡¼¥È¥¡¼¡¡²Ùʪ¤ò»ý¤Ã¤¿¤Þ¤Þ¤Ç¤â³Ú¤Ë³«¾û¤¬¤Ç¤¤Þ¤¹ ¡¦Àß·×Àǽɾ²Á½ñ¤¢¤ê ¡¦Ãó¼Ö¾ì¤Ï½ÄÎó´Þ¤á£³Âæ ¾®³Ø¹»¤â¶á¤¯¡¢Ä̳ذ¿´¤Îµ÷Î¥¤Ç¤¹¡£ ¥í¡¼¥½¥ó¾¾¹¾ÂçÄíŹ¡¡Ìó890£í ¤Ò¤Þ¤êÂçÄíŹ¡¡Ìó1£ë£í ¥Ð¡¼¥¹¥Ç¥¤¤ä¥»¥ê¥¢¡¢¥É¥é¥Ã¥°¥¹¥È¥¢¥¦¥§¥ë¥Í¥¹¤â¤¢¤ê¤Þ¤¹¡£ ÅöÆü¤Î¤´°ÆÆâͽÌó¤â²Äǽ¤Ç¤¹¡£ ¤ªÅÅÏäǤªÌä¹ç¤»¤¯¤À¤µ¤¤¡ª »ñÎÁ¤ò¤´´õ˾¤ÎÊý¤Ï¥Ú¡¼¥¸²¼¤Î¤ªÌä¹ç¤»¥Õ¥©¡¼¥à¤«¤é¤´Ï¢Íí¤¯¤À¤µ¤¤¡£ ¢¨²È¶ñ¤¬Æþ¤Ã¤Æ¤¤¤ë¼Ì¿¿¤ÏAI¡¦CG¤ÇºîÀ®¤·¤¿²èÁü¤Ç¤¢¤ê¡¢²È¶ñÅù¤ÏÈÎÇäÆâÍÆ¤Ë´Þ¤Þ¤ì¤Þ¤»¤ó¡£ |
||
| ʪ·ïÈÖ¹æ | EL0036 | ||
|---|---|---|---|
| ½êºßÃÏ | ¾¾¹¾»ÔÂçÄíÄ®1109-21¡ÊÂçÄí22¹æÃÏ¡Ë | ||
| ¼ïÊÌ | Ãæ¸Å°ì¸Í·ú½»Âð | ||
| ¹½Â¤ | ÌÚ¤£²³¬·ú | ||
| ´Ö¼è¤ê | £³£Ì£Ä£Ë | ||
| ·úÃÛǯ·î | 2023ǯ7·î | ||
| ·úʪÌÌÀÑ | 84.46Ö¡Ê25.55ÄÚ¡Ë | ||
| ÅÚÃÏÌÌÀÑ | 200.2Ö¡Ê60.56ÄÚ¡Ë | ||
| »äÆ»ÌÌÀÑ | |||
| ·ú¤Ú¤¤Î¨ | 60¡ó | ||
| ÍÆÀÑΨ | 100¡ó | ||
| ÀÜÆ»¾õ¶· | À¾Â¦¸øÆ»¡¡Éý°÷6.0£í | ||
| Êݾڶ⡦Éß¶â | |||
| ¸¢Íø¶â | |||
| ¤½¤Î¾°ì»þ¶â | ¿åƻʬô¶â¡¡88000±ßÍ× | ||
| Ãó¼Ö¾ì | Í(ÎÁ¶â¹þ¤ß) | ||
| Ãó¼Ö¾ìÀâÌÀ | ½ÄÎó£³ÂæÃó¼Ö²Äǽ | ||
| ¶è²èÈÖ¹æ | |||
| ¼è°ú·ÁÂÖ | Çä¼ç | ||
| ÅÚÃϸ¢Íø | ½ê͸¢ | ||
| ¹ñÅÚË¡ÆÏ½Ð | ÉÔÍ× | ||
| ±èÀþ¸òÄÌ | £Ê£Ò | ||
| °úÅϤ· | ¨»þ | ||
| ÃÏÌÜ | ÂðÃÏ | ||
| ÅԻԷײè | »Ô³¹²½Ä´À°¶è°è | ||
| ÍÑÅÓÃϰè | »ØÄê¤Ê¤· | ||
| ÃÏÌÜÀâÌÀ | |||
| °Ý»ý´ÉÍýÈñÅù | |||
| ¼ÚÃÏ´ü´Ö¡¦ÃÏÂå | |||
| ÃÏÀª | |||
| ´ÉÍý·ÁÂÖ¡¢¾ò·ïÅù | |||
| ºÇ´ó±Ø | |||
| ¥Ð¥¹Åù¸òÄ̼êÃÊ | Ȭ½Å³ÀÃÄÃÏÆþ¸ýÅÌÊâ8ʬ | ||
| ¹»¶è | ÂçÄí¾®³Ø¹»¡ÊÌó500£í¡Ë¸ÐÅìÃæ³Ø¹»¡ÊÌó1800£í¡Ë | ||
| ¾Ò²ð¥µ¥¤¥È | https://matsue-housedo.com/new_ikkodate/3386801/ | ||
| ¹¹ð͸ú´ü´Ö | |||
| ´Ö¼è¤êÆâÌõ | |||
| È÷¹Í | ¡ù 3/24 ²Á³ÊÊѹ¹¡ª ´°À®¤«¤é£±Ç¯¤¬·Ð²á¤·¤¿¤¿¤á¡¢Ì¤ÆþµïÃæ¸Åʪ·ï¤È¤¤¤¦°·¤¤¤Ë¤Ê¤ê¤Þ¤¹¡£ ¼¼Æâ¤ÏÆþµï¤·¤¿¤³¤È¤¬¤Ê¤¤¤¿¤á¡¢¾õÂÖ¤ÏÊѤï¤ê¤Ê¤¯¥¥ì¥¤¤Ê¤Þ¤Þ¤Ç¤¹¡ª ¾Ò²ð¥µ¥¤¥ÈURL¤«¤é¼Ì¿¿Â¿¿ô&360¡ë¼Ì¿¿¤â¤´Í÷¤¤¤¿¤À¤±¤Þ¤¹¡£ ¡¦ÂÑ¿ÌÅùµé£³¡¡ºå¿ÀøϩÂç¿ÌºÒ¥¯¥é¥¹¤ÎÃϿ̤òÁÛÄꤷ¤¿Âѿ̽»Âð ¡¡¡¡¡¡¡¡¡¡¡¡¡¡ÃÏ¿ÌÊݸ±ÎÁ¤¬50¡ó³ä°ú¤È¤¤¤¦·ÐºÑŪ¥á¥ê¥Ã¥È¤â¤¢¤ê¤Þ¤¹ ¡¦Îô²½ÂкöÅùµé£³¡¡³µ¤Í75¡Á90ǯ¤ÎÂѵ×À ¡¦ZEH¥ª¥ê¥¨¥ó¥Æ¥Ã¥É´ð½à¤Î¼×Ç®Àǽ¤ÇÇ¯Ãæ²÷Ŭ¡¢¾Ê¥¨¥Í¤ÇÅŵ¤Âå·Ú¸º¤â ¡¦³°ÊÉ¡¡¸÷¥»¥é¡¡¡Ú³°ÊɤΥá¥ó¥Æ¥Ê¥ó¥¹¤Ï40ǯ¸å¤Ë¡Û¥á¥ó¥Æ¥Ê¥ó¥¹¤Î¼ê´Ö¤ÈÈñÍѤòÍÞ¤¨¤Þ¤¹¡£ ¡¦´¤²°º¬¡¡¡Ú¸«¤¿ÌܤÎÈþ¤·¤µ¤ÈÂѵ×À¤ò·ó¤ÍÈ÷¤¨¤¿ÁǺà¡Û ¡¦Ä¶¹âÃÇÇ®Áë¡¡²Æ¤ÎÂÀÍÛ¤«¤é¤ÎÇ®Àþ¤ò60¡ó°Ê¾å¥«¥Ã¥È¡£·ëϪ¤â¤·¤Ë¤¯¤¤¤Ç¤¹¡£ ¡¦¥¹¥Þ¡¼¥È¥¡¼¡¡²Ùʪ¤ò»ý¤Ã¤¿¤Þ¤Þ¤Ç¤â³Ú¤Ë³«¾û¤¬¤Ç¤¤Þ¤¹ ¡¦Àß·×Àǽɾ²Á½ñ¤¢¤ê ¡¦Ãó¼Ö¾ì¤Ï½ÄÎó´Þ¤á£³Âæ ¾®³Ø¹»¤â¶á¤¯¡¢Ä̳ذ¿´¤Îµ÷Î¥¤Ç¤¹¡£ ¥í¡¼¥½¥ó¾¾¹¾ÂçÄíŹ¡¡Ìó890£í ¤Ò¤Þ¤êÂçÄíŹ¡¡Ìó1£ë£í ¥Ð¡¼¥¹¥Ç¥¤¤ä¥»¥ê¥¢¡¢¥É¥é¥Ã¥°¥¹¥È¥¢¥¦¥§¥ë¥Í¥¹¤â¤¢¤ê¤Þ¤¹¡£ ÅöÆü¤Î¤´°ÆÆâͽÌó¤â²Äǽ¤Ç¤¹¡£ ¤ªÅÅÏäǤªÌä¹ç¤»¤¯¤À¤µ¤¤¡ª »ñÎÁ¤ò¤´´õ˾¤ÎÊý¤Ï¥Ú¡¼¥¸²¼¤Î¤ªÌä¹ç¤»¥Õ¥©¡¼¥à¤«¤é¤´Ï¢Íí¤¯¤À¤µ¤¤¡£ ¢¨²È¶ñ¤¬Æþ¤Ã¤Æ¤¤¤ë¼Ì¿¿¤ÏAI¡¦CG¤ÇºîÀ®¤·¤¿²èÁü¤Ç¤¢¤ê¡¢²È¶ñÅù¤ÏÈÎÇäÆâÍÆ¤Ë´Þ¤Þ¤ì¤Þ¤»¤ó¡£ |
||
24592 since 2023-03-10
¼è¤ê°·¤¤Å¹ÊÞ
¥Ï¥¦¥¹¥É¥¥¡¡¾¾¹¾¡ÊÀ¾ÆüËÜ¥Û¡¼¥à¡Ê³ô¡Ë¡Ë
¢©690-0017¡¡¾¾¹¾»ÔÀ¾ÄÅÅÄ5ÃúÌÜ1-1
[ÌȵöÈÖ¹æ]¹ñÅÚ¸òÄÌÂç¿Ã(3)Âè8218¹æ
°µÅÝŪ¤Êʪ·ï¿ô¡ª
¥Þ¥¤¥Ú¡¼¥¸ÅÐÏ¿¤Ç300·ï°Ê¾å¤Îʪ·ï¾ðÊó¤ò¸ø³«Ã桪
ÉÔÆ°»ºÃç²ð¤ò¤Ï¤¸¤á¡¢¿·ÃÛ¤ä¥ê¥Õ¥©¡¼¥à¤Ê¤É½»¤Þ¤¤¤Î¤³¤È¤Ê¤é¤Ê¤ó¤Ç¤â¥Ï¥¦¥¹¥É¥¥¾¾¹¾Å¹¤Ø¤ªÇ¤¤»¤¯¤À¤µ¤¤¤Þ¤»¡£
·úÀ߶ȵö²Ä¡¡¡¡¡¡¡¡ ¡¡¡¡¹ñÅÚ¸òÄÌÂç¿Ãµö²Ä¡ÊÈÌ-5¡ËÂè18110¹æ
Æóµé·úÃۻλö̳½ê¡¡¡¡¡¡ Å纬¸©Ãλö¡Ê6¡ËÂè4748¹æ
¡Ê¸ø¼Ò¡ËÅ纬¸©ÂðÃÏ·úʪ¼è°ú¶È¶¨²ñ²ñ°÷
¡Ê¸ø¼Ò¡ËÁ´¹ñÂðÃÏ·úʪ¼è°ú¶ÈÊݾڶ¨²ñ²ñ°÷
¡Ê¸ø¼Ò¡ËÀ¾ÆüËÜÉÔÆ°»ºÎ®Ä̵¡¹½²ñ°÷
¡Ê¸ø¼Ò¡ËÃæ¹ñÃ϶èÉÔÆ°»º¸øÀµ¼è°ú¶¨µÄ²ñ²ÃÌÁ

- 0852-33-7778
¤´Ï¢Íí¤ÎºÝ¤Ï¡Ö»³±¢ÉÔÆ°»º¥Ê¥Ó¤ò¸«¤¿¡×¤È¸À¤¦¤È¥¹¥à¡¼¥º¤Ç¤¹ - FAX
- 0852-33-7735


























