¿·ÃÛ°ì¸Í·ú½»Âð
Ȭ±ÀÄ®À¾´äºä¿·ÃÛ·úÇä½»Âð¡¡10/23²Á³ÊÊѹ¹¤·¤Þ¤·¤¿
| ²Á³Ê 2,590Ëü±ß ¸ò¾Ä¾õ¶· ÈÎÇäÃæ ¸½¶· ʬ¾ùÃæ | ¤³¤Îʪ·ï¤Ë¤Ä¤¤¤ÆÌ䤤¹ç¤ï¤»¤ë |
- ¥ª¡¼¥ëÅŲ½
- ¼ýǼ¥¹¥Ú¡¼¥¹
- Àö¾ôÊØºÂ
- ¥Õ¥í¡¼¥ê¥ó¥°
- ¥·¥¹¥Æ¥à¥¥Ã¥Á¥ó
- ¥Ð¥ë¥³¥Ë¡¼
- ÀìÍÑÄí
- TV¥â¥Ë¥¿¡¼¥Õ¥©¥ó
- Íá¼¼´¥Áç
- Äɤ¤¿æ¤
- ´×ÀŽ»ÂðÃÏ
- Ãó¼Ö¾ì£²Âæ°Ê¾å
¼Ì¿¿
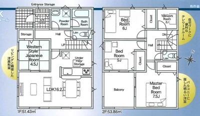
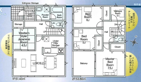
´Ö¼è¤ê¿Þ
ʪ·ï¾ÜºÙ¾ðÊó
774 since 2025-10-18
¼è¤ê°·¤¤Å¹ÊÞ
͸²ñ¼Ò¡¡Ãݲ¼Èþ·ú
¢©693-0064¡¡½Ð±À»ÔΤÊýÄ®1090ÈÖÃÏ
[ÌȵöÈÖ¹æ]Å纬¸©Ãλö¡Ê4¡ËÂè1129¹æ
͸²ñ¼ÒÃݲ¼Èþ·ú¤ÏÅÚÃÏ¡¢°ì¸Í·ú¤Æ¤òÃæ¿´¤Ë°·¤Ã¤Æ¤ª¤ê¤Þ¤¹
ÅÚÃϤä°ì¸Í·ú¤ÆÅù¡¢ÇäµÑʪ·ï¤âÊç½¸Ãæ¤Ç¤¹¡£
°ìµé·úÃۻΡ¢Å纬½»ÂðÁí¹çÁêÃ̰÷¡¢Å纬¸©ÌÚ¤½»ÂðÂѿ̿ÇÃǻΡ¢½»Â𥤥󥹥ڥ¯¥¿¡¼¡¢ÂðÃÏ·úʪ¼è°ú»Î¡¢Á곿ÇÃǻΡ¢Ç¤°ÕÇäµÑ¼è°·¼çǤ¼Ô¡¢ÉÔÆ°»º½ª³è»Î¡¢¶õ¤²ÈÁêÃ̻Ρ¢ÅÚÃϳèÍÑ¥×¥é¥ó¥Ê¡¼¤¬¤´ÁêÃ̤ËÂбþ¤µ¤»¤ÆÄº¤¤Þ¤¹¡£
¤ªµ¤·Ú¤Ë¤´ÁêÃ̤¯¤À¤µ¤¤¡£
¸ø±×¼ÒÃÄË¡¿Í¡¡Á´¹ñÂðÃÏ·úʪ¼è°ú¶ÈÊݾڶ¨²ñ²ñ°÷
¸ø±×¼ÒÃÄË¡¿Í¡¡Å纬¸©ÂðÃÏ·úʪ¼è°ú¶È¶¨²ñ°÷
Ãæ¹ñÃ϶èÉÔÆ°»º¸øÀµ¼è°ú¶È¶¨²ñ²ñ°÷

- 090-8284-4268
¤´Ï¢Íí¤ÎºÝ¤Ï¡Ö»³±¢ÉÔÆ°»º¥Ê¥Ó¤ò¸«¤¿¡×¤È¸À¤¦¤È¥¹¥à¡¼¥º¤Ç¤¹ - FAX
- 0853-22-5003


























