Ãæ¸Å°ì¸Í·ú½»Âð

»°Åá²°Ä®»°Åá²°¡Ê²¼Ä®¡Ë¡¡Ãæ¸Å½»Âð

¤ªµ¤¤ËÆþ¤ê¤ËÄɲà °õºþ²èÌ̤ò³«¤¯

²Á³Ê 480Ëü±ß ¸ò¾Ä¾õ¶· ÈÎÇäÃæ ¸½¶· ¶õ¼¼Ãæ ¤³¤Îʪ·ï¤Ë¤Ä¤¤¤ÆÌ䤤¹ç¤ï¤»¤ë
  • ¥¨¥¢¥³¥ó
  • µëÅò
  • ¥ª¡¼¥ëÅŲ½
  • £Ã£Á£Ô£Ö
  • ¼ýǼ¥¹¥Ú¡¼¥¹
  • ¾²²¼¼ýǼ
  • Àö¾ôÊØºÂ
  • ÃÈË¼ÊØºÂ
  • IH¥¯¥Ã¥­¥ó¥°¥Ò¡¼¥¿¡¼
  • ¥·¥¹¥Æ¥à¥­¥Ã¥Á¥ó
  • ÀìÍÑÄí
  • ´×ÀŽ»ÂðÃÏ

¼Ì¿¿ ¼Ì¿¿¤ò¥¯¥ê¥Ã¥¯¤¹¤ë¤ÈÂ礭¤¯É½¼¨¤µ¤ì¤Þ¤¹¡£

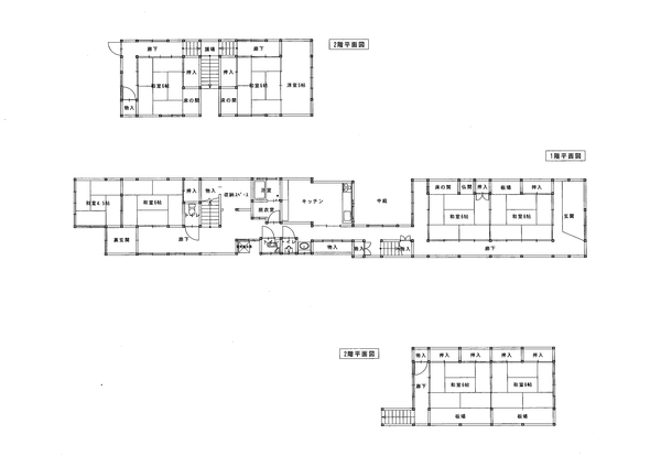
´Ö¼è¤ê¿Þ

¼Ì¿¿

´Ö¼è¤ê¿Þ

ʪ·ï¾ÜºÙ¾ðÊó

ʪ·ïÈÖ¹æ ES0033 ½êºßÃÏ ±ÀÆî»Ô»°Åá²°Ä®»°Åá²°1088-2
¼ïÊÌ Ãæ¸Å°ì¸Í·ú½»Â𠹽¤ ÌÚ¤£²³¬·ú
´Ö¼è¤ê £¶£Ë°Ê¾å ·úÃÛǯ·î 1965ǯ11·î
·úʪÌÌÀÑ 237.51­Ö¡Ê71.85ÄÚ¡Ë ÅÚÃÏÌÌÀÑ 259.28­Ö¡Ê78.43ÄÚ¡Ë
»äÆ»ÌÌÀÑ ·ú¤Ú¤¤Î¨ 80¡ó
ÍÆÀÑΨ 200¡ó ÀÜÆ»¾õ¶· ¸©Æ»µÈÅÄ»°Åá²°Àþ¡Ê1¹æÆ»Ï©¡Ë¤Ë5.2mÀÜÆ»
Êݾڶ⡦Éß¶â ¸¢Íø¶â
¤½¤Î¾°ì»þ¶â ¼êÉÕ¶â¡§96Ëü±ß Ãó¼Ö¾ì Í­(ÎÁ¶â¹þ¤ß)
Ãó¼Ö¾ìÀâÌÀ ¤¢¤ê ¶è²èÈÖ¹æ
¼è°ú·ÁÂÖ ÇÞ²ð ÅÚÃϸ¢Íø ½êÍ­¸¢
¹ñÅÚË¡ÆÏ½Ð ÉÔÍ× ±èÀþ¸òÄÌ £Ê£Ò
°úÅϤ· ÁêÃÌ ÃÏÌÜ ÂðÃÏ
ÅÔ»Ô·×²è ¤½¤Î¾ ÍÑÅÓÃÏ°è ¶áÎÙ¾¦¶ÈÃϰè
ÃÏÌÜÀâÌÀ ÂðÃÏ
°Ý»ý´ÉÍýÈñÅù
¼ÚÃÏ´ü´Ö¡¦ÃÏÂå
ÃÏÀª
´ÉÍý·ÁÂÖ¡¢¾ò·ïÅù ±ÀÆî»Ô22¾ò¶è°è¡¢ÅÚº½ºÒ³²·Ù²ü¶è°è¡ÊÅÚÀÐή¡Ë
ºÇ´ó±Ø JRÌÚ¼¡Àþ¡ÖÌÚ¼¡±Ø¡×¤Þ¤Ç3.5km
¥Ð¥¹Åù¸òÄ̼êÃÊ ±ÀÆî»Ô̱¥Ð¥¹¡ÖÃæÄ®¡×¤Þ¤Ç130m
¹»¶è »°Åá²°¾®³Ø¹»¡¡»°Åá²°Ãæ³Ø¹»
¾Ò²ð¥µ¥¤¥È
¹­¹ðÍ­¸ú´ü´Ö
´Ö¼è¤êÆâÌõ ¸¼´Ø¡¢¥­¥Ã¥Á¥ó¡¢Ï¼¼¡¢Íμ¼¡¢Íá¼¼¡¢Ã¦°á¼¼¡¢¥È¥¤¥ì¡¢¼ýǼ
È÷¹Í ¡Ô·úʪ¾ÜºÙ¡Õ
¸¼´Ø¡¢¥­¥Ã¥Á¥ó¡¢Íá¼¼¡¢Ã¦°á¼¼¡¢¥È¥¤¥ì¡¢ÀöÌÌ¡¢
ϼ¼6Ä¡­§¡¢Ï¼¼4.5Ä¡­¡¡¢Íμ¼5Ä¡­¡¡¢¼ýǼ¡¢Î¢¸ý
¢¨·ÇºÜ¤Î¿ÞÌ̤ϴּè¿Þ¤Ç¤¹¡Ê¸½¶·Í¥Àè¡Ë

¡ÔÀßÈ÷¾õ¶·¡Õ¡¡¡úºîư̤³Îǧ
¢¡µëÅò´ï¡§Åŵ¤²¹¿å´ï
¢¡¥³¥ó¥í¡§£É£È¥¯¥Ã¥­¥ó¥°¥Ò¡¼¥¿¡¼
¢¡Íá¼¼¡§¥æ¥Ë¥Ã¥È¥Ð¥¹
¢¡¥È¥¤¥ì¡§Íμ°¡¢Ï¼°¡¢ÃË»ÒÍÑ
¢¡¥¨¥¢¥³¥ó¡§2Âæ

¡Ô¤½¤Î¾¡Õ
¢¡ÃæÄí¤È΢Äí¤¬¤¢¤ê¤Þ¤¹¡£ÃæÄí¤Ë¤Ï°æ¸Í¤¬¤¢¤ê¤Þ¤¹¡Ê¥Ý¥ó¥×¼°¡Ë
¢¡Ãó¼Ö¾ì¡§Î¢Â¦¤Ë£²ÂæÊ¬

¡Ô¼þÊմĶ­¡Õ
¢¡¥¹¡¼¥Ñ¡¼¡§¤ß¤·¤Þ¤ä»°ÅᲰŹ¤Þ¤Ç2.2km
¢¡¥³¥ó¥Ó¥Ë¡§¥í¡¼¥½¥ó»°Åá²°ÌÚ¼¡¥¤¥ó¥¿¡¼Å¹¤Þ¤Ç1.4km
¢¡É±¡¡§Ê¿À®µ­Ç°É±¡¤Þ¤Ç1.2km
¢¡³Ø¹»¡§»°Åá²°¾®³Ø¹»¤Þ¤Ç2.4km¡¢»°Åá²°Ãæ³Ø¹»¤Þ¤Ç600m

¡ù¡ú¡ù¡ú¡ù ¸½Ãϸ«³Ø¤Ç¤­¤Þ¤¹¡£»öÁ°¤Ë¤´Ï¢Íí¤ò¤ª´ê¤¤¤¤¤¿¤·¤Þ¤¹¡£ ¡ù¡ú¡ù¡ú¡ù
ʪ·ïÈÖ¹æ ES0033
½êºßÃÏ ±ÀÆî»Ô»°Åá²°Ä®»°Åá²°1088-2
¼ïÊÌ Ãæ¸Å°ì¸Í·ú½»Âð
¹½Â¤ ÌÚ¤£²³¬·ú
´Ö¼è¤ê £¶£Ë°Ê¾å
·úÃÛǯ·î 1965ǯ11·î
·úʪÌÌÀÑ 237.51­Ö¡Ê71.85ÄÚ¡Ë
ÅÚÃÏÌÌÀÑ 259.28­Ö¡Ê78.43ÄÚ¡Ë
»äÆ»ÌÌÀÑ
·ú¤Ú¤¤Î¨ 80¡ó
ÍÆÀÑΨ 200¡ó
ÀÜÆ»¾õ¶· ¸©Æ»µÈÅÄ»°Åá²°Àþ¡Ê1¹æÆ»Ï©¡Ë¤Ë5.2mÀÜÆ»
Êݾڶ⡦Éß¶â
¸¢Íø¶â
¤½¤Î¾°ì»þ¶â ¼êÉÕ¶â¡§96Ëü±ß
Ãó¼Ö¾ì Í­(ÎÁ¶â¹þ¤ß)
Ãó¼Ö¾ìÀâÌÀ ¤¢¤ê
¶è²èÈÖ¹æ
¼è°ú·ÁÂÖ ÇÞ²ð
ÅÚÃϸ¢Íø ½êÍ­¸¢
¹ñÅÚË¡ÆÏ½Ð ÉÔÍ×
±èÀþ¸òÄÌ £Ê£Ò
°úÅϤ· ÁêÃÌ
ÃÏÌÜ ÂðÃÏ
ÅÔ»Ô·×²è ¤½¤Î¾
ÍÑÅÓÃÏ°è ¶áÎÙ¾¦¶ÈÃϰè
ÃÏÌÜÀâÌÀ ÂðÃÏ
°Ý»ý´ÉÍýÈñÅù
¼ÚÃÏ´ü´Ö¡¦ÃÏÂå
ÃÏÀª
´ÉÍý·ÁÂÖ¡¢¾ò·ïÅù ±ÀÆî»Ô22¾ò¶è°è¡¢ÅÚº½ºÒ³²·Ù²ü¶è°è¡ÊÅÚÀÐή¡Ë
ºÇ´ó±Ø JRÌÚ¼¡Àþ¡ÖÌÚ¼¡±Ø¡×¤Þ¤Ç3.5km
¥Ð¥¹Åù¸òÄ̼êÃÊ ±ÀÆî»Ô̱¥Ð¥¹¡ÖÃæÄ®¡×¤Þ¤Ç130m
¹»¶è »°Åá²°¾®³Ø¹»¡¡»°Åá²°Ãæ³Ø¹»
¾Ò²ð¥µ¥¤¥È
¹­¹ðÍ­¸ú´ü´Ö
´Ö¼è¤êÆâÌõ ¸¼´Ø¡¢¥­¥Ã¥Á¥ó¡¢Ï¼¼¡¢Íμ¼¡¢Íá¼¼¡¢Ã¦°á¼¼¡¢¥È¥¤¥ì¡¢¼ýǼ
È÷¹Í ¡Ô·úʪ¾ÜºÙ¡Õ
¸¼´Ø¡¢¥­¥Ã¥Á¥ó¡¢Íá¼¼¡¢Ã¦°á¼¼¡¢¥È¥¤¥ì¡¢ÀöÌÌ¡¢
ϼ¼6Ä¡­§¡¢Ï¼¼4.5Ä¡­¡¡¢Íμ¼5Ä¡­¡¡¢¼ýǼ¡¢Î¢¸ý
¢¨·ÇºÜ¤Î¿ÞÌ̤ϴּè¿Þ¤Ç¤¹¡Ê¸½¶·Í¥Àè¡Ë

¡ÔÀßÈ÷¾õ¶·¡Õ¡¡¡úºîư̤³Îǧ
¢¡µëÅò´ï¡§Åŵ¤²¹¿å´ï
¢¡¥³¥ó¥í¡§£É£È¥¯¥Ã¥­¥ó¥°¥Ò¡¼¥¿¡¼
¢¡Íá¼¼¡§¥æ¥Ë¥Ã¥È¥Ð¥¹
¢¡¥È¥¤¥ì¡§Íμ°¡¢Ï¼°¡¢ÃË»ÒÍÑ
¢¡¥¨¥¢¥³¥ó¡§2Âæ

¡Ô¤½¤Î¾¡Õ
¢¡ÃæÄí¤È΢Äí¤¬¤¢¤ê¤Þ¤¹¡£ÃæÄí¤Ë¤Ï°æ¸Í¤¬¤¢¤ê¤Þ¤¹¡Ê¥Ý¥ó¥×¼°¡Ë
¢¡Ãó¼Ö¾ì¡§Î¢Â¦¤Ë£²ÂæÊ¬

¡Ô¼þÊմĶ­¡Õ
¢¡¥¹¡¼¥Ñ¡¼¡§¤ß¤·¤Þ¤ä»°ÅᲰŹ¤Þ¤Ç2.2km
¢¡¥³¥ó¥Ó¥Ë¡§¥í¡¼¥½¥ó»°Åá²°ÌÚ¼¡¥¤¥ó¥¿¡¼Å¹¤Þ¤Ç1.4km
¢¡É±¡¡§Ê¿À®µ­Ç°É±¡¤Þ¤Ç1.2km
¢¡³Ø¹»¡§»°Åá²°¾®³Ø¹»¤Þ¤Ç2.4km¡¢»°Åá²°Ãæ³Ø¹»¤Þ¤Ç600m

¡ù¡ú¡ù¡ú¡ù ¸½Ãϸ«³Ø¤Ç¤­¤Þ¤¹¡£»öÁ°¤Ë¤´Ï¢Íí¤ò¤ª´ê¤¤¤¤¤¿¤·¤Þ¤¹¡£ ¡ù¡ú¡ù¡ú¡ù
11 since 2025-12-15

¼è¤ê°·¤¤Å¹ÊÞ

Í­¸Â²ñ¼Ò¡¡±Ñ(¤Ï¤Ê¤Ö¤µ)¹©Ì³Å¹

¢©690-2404¡¡Å纬¸©±ÀÆî»Ô»°Åá²°Ä®»°Åá²°24-8
[ÌȵöÈÖ¹æ]Å纬¸©Ãλö¡Ê6¡ËÂè1010¹æ
¸ø±×¼ÒÃÄË¡¿Í Á´ÆüËÜÉÔÆ°»º¶¨²ñ²ñ°÷
¸ø±×¼ÒÃÄË¡¿Í ÉÔÆ°»ºÊݾڶ¨²ñ²ñ°÷

TEL
0854-45-5755
¤´Ï¢Íí¤ÎºÝ¤Ï¡Ö»³±¢ÉÔÆ°»º¥Ê¥Ó¤ò¸«¤¿¡×¤È¸À¤¦¤È¥¹¥à¡¼¥º¤Ç¤¹
FAX
0854-45-5758

¤³¤ÎŹÊޤξܺ٤ò¸«¤ë