Ãæ¸Å¥Þ¥ó¥·¥ç¥ó
¥¨¥¯¥»¥ì¥ó¥·¥¢½Ð±ÀÃæ±û¥×¥ì¥ß¥¢¥à¥ì¥¸¥Ç¥ó¥¹
| ²Á³Ê 3,150Ëü±ß ¸ò¾Ä¾õ¶· ÈÎÇäÃæ ¸½¶· ÆþµïÃæ | ¤³¤Îʪ·ï¤Ë¤Ä¤¤¤ÆÌ䤤¹ç¤ï¤»¤ë |
- ¥¨¥¢¥³¥ó
- ¥ª¡¼¥ëÅŲ½
- £Â£Ó
- £Ã£Ó
- £Ã£Á£Ô£Ö
- ¥¤¥ó¥¿¡¼¥Í¥Ã¥È
- ÃÈË¼ÊØºÂ
- ¥Õ¥í¡¼¥ê¥ó¥°
- ¥¨¥ì¥Ù¡¼¥¿¡¼
- IH¥¯¥Ã¥¥ó¥°¥Ò¡¼¥¿¡¼
- ¥·¥¹¥Æ¥à¥¥Ã¥Á¥ó
- ¥Ð¥ë¥³¥Ë¡¼
- ¥ª¡¼¥È¥í¥Ã¥¯
- ÃóÎØ¾ì
- TV¥â¥Ë¥¿¡¼¥Õ¥©¥ó
- Íá¼¼´¥Áç
- Äɤ¤¿æ¤
- ÆüÅö¤¿¤êÎɹ¥
- ´ÉÍý¿Í¾ïÃó
¼Ì¿¿
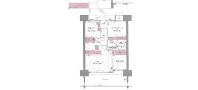
´Ö¼è¤ê¿Þ
ʪ·ï¾ÜºÙ¾ðÊó
| ʪ·ïÈÖ¹æ | EV0018 | ½êºßÃÏ | ½Ð±À»Ôº£»ÔÄ®£±£³£¹¡Ý£· |
|---|---|---|---|
| ¼ïÊÌ | Ãæ¸Å¥Þ¥ó¥·¥ç¥ó | ¹½Â¤ | Å´¶Ú¥³¥ó¥¯¥ê(RC)15³¬·ú |
| ½êºß³¬ | £´³¬Éô | ·úÃÛǯ·î | 2020ǯ2·î |
| ´Ö¼è¤ê | ¤½¤Î¾ | ÀìÍÌÌÀÑ | 66.3Ö¡Ê20.06ÄÚ¡Ë |
| ¥Ð¥ë¥³¥Ë¡¼ÌÌÀÑ | 19.18Ö¡Ê5.80ÄÚ¡Ë | ÉßÃÏÌÌÀÑ | 8,778.92Ö¡Ê2,655.62ÄÚ¡Ë |
| Êݾڶ⡦Éß¶â | ¸¢Íø¶â | ||
| ¤½¤Î¾°ì»þ¶â | Ãó¼Ö¾ì | Í(ÎÁ¶â¹þ¤ß) | |
| Ãó¼Ö¾ìÀâÌÀ | Ê¿ÌÌ | Éô²°ÈÖ¹æ | |
| ¼è°ú·ÁÂÖ | ÇÞ²ð | ÅÚÃϸ¢Íø | ½ê͸¢ |
| ¹ñÅÚË¡ÆÏ½Ð | ÉÔÍ× | ±èÀþ¸òÄÌ | £Ê£Ò |
| °úÅϤ· | ÁêÃÌ | ||
| °Ý»ý´ÉÍýÈñÅù | ´ÉÍýÈñ10600±ß½¤Á¶Èñ2800±ß | ||
| ¼ÚÃÏ´ü´Ö¡¦ÃÏÂå | |||
| ÃÏÀª | |||
| ´ÉÍý·ÁÂÖ¡¢¾ò·ïÅù | ¾ï¶Ð | ||
| ºÇ´ó±Ø | £ÊR½Ð±À»Ô±Ø | ||
| ¥Ð¥¹Åù¸òÄ̼êÃÊ | ½Ð±À»ÔÌò½ê | ||
| ¹»¶è | »ÔΩº£»Ô¾®³Ø¹» | ||
| ¾Ò²ð¥µ¥¤¥È | https://www.zennichi.net/m/grotier/index.asp | ||
| ¹¹ð͸ú´ü´Ö | |||
| ´Ö¼è¤êÆâÌõ | L£Ä£Ë14.1Ä¡¡¢Íμ¼£±¡¤6.0Ä¡¡¢Íμ¼£²¡¤4.5Ä¡¡¢Ï¼¼4.5Ä¡ | ||
| È÷¹Í | ¥¨¥¯¥»¥ì¥ó¥·¥¢½Ð±ÀÃæ±û¥×¥ì¥ß¥¢¥à¥ì¥¸¥Ç¥ó¥¹¥ª¡¼¥ëÅŲ½¥Þ¥ó¥·¥ç¥ó¤ÎÃæÉô²°¤Ç¤¹¡£ 24»þ´Ö¥´¥ß½Ð¤·²Äǽ¡¢¥¤¥ó¥¿¡¼¥Í¥Ã¥È̵ÎÁ¡¢¥¿¥¤¥äÃÖ¤¾ìÍ¡¢½Ð±À¥±¡¼¥Ö¥ë¥Ó¥¸¥ç¥óÍ¡¢¥ª¡¼¥ë¾ô¿å´ïÍ¡£ ½»Âð¥í¡¼¥ó¤Ç¤¹¤È¡¢¼ÚÆþ´ü´Ö40ǯ10ǯ¸ÇÄê¶âÍø£±¡¥£²¡ó·î¡¹»Ùʧ83974±ß¤Ç¤¹¡£ ÄÂÂߤǼڤê¤ë¤È¡¢Ìó£±3Ëü±ßÂæ¤Ç¤¹¡£ ΩÃϤϡ¢¥Þ¥Ã¥¯¥¹¥Ð¥ê¥åº£»ÔŹÌܤÎÁ°¤Ç¤¹¡£ ¤ªµÒÍͤΥˡ¼¥º¤Ë1È֤ˤª±þ¤¨¤Ç¤¤ë¤è¤¦¤Ë´èÄ¥¤ê¤Þ¤¹¡£ ¤´¹ØÆþ¼ÔÍͤˡ¢¥Ç¥¶¥¤¥ó¥¯¥í¥¹¥×¥ì¥¼¥ó¥È¡£ ½Ð±À»Ô¤ÎÉÔÆ°»º²ñ¼Ò¿·ÃÛ¥Þ¥ó¥·¥ç¥ó¥¨¥¯¥»¥ì¥ó¥·¥¢ÈÎÇäÂåÍý¤Î³ô¼°²ñ¼Ò¥°¥í¥Æ¥£¥¢¥¨¥¹¥Æ¡¼¥È¤Ë¤ªÇ¤¤»¤¯¤À¤µ¤¤¡£ ¤ªµ¤·Ú¤Ë¤ªÌ䤤¹ç¤ï¤»¤¯¤À¤µ¤¤¡£ ¿·ÃÛ¥Þ¥ó¥·¥ç¥ó¡Ê¥¨¥¯¥»¥ì¥ó¥·¥¢±ØÆî¥×¥ì¥ß¥¢¥à¥ì¥¸¥Ç¥ó¥¹¡ËÈÎÇäÃæ ¿·ÃÛ¥Þ¥ó¥·¥ç¥ó¡Ê¥¨¥¯¥»¥ì¥ó¥·¥¢ÃæÌîÈþÊÝ¥×¥ì¥ß¥¢¥à¥ì¥¸¥Ç¥ó¥¹¡Ë¥×¥ì¡¼¥ª¡¼¥×¥ó |
||
| ʪ·ïÈÖ¹æ | EV0018 |
|---|---|
| ½êºßÃÏ | ½Ð±À»Ôº£»ÔÄ®£±£³£¹¡Ý£· |
| ¼ïÊÌ | Ãæ¸Å¥Þ¥ó¥·¥ç¥ó |
| ¹½Â¤ | Å´¶Ú¥³¥ó¥¯¥ê(RC)15³¬·ú |
| ½êºß³¬ | £´³¬Éô |
| ·úÃÛǯ·î | 2020ǯ2·î |
| ´Ö¼è¤ê | ¤½¤Î¾ |
| ÀìÍÌÌÀÑ | 66.3Ö¡Ê20.06ÄÚ¡Ë |
| ¥Ð¥ë¥³¥Ë¡¼ÌÌÀÑ | 19.18Ö¡Ê5.80ÄÚ¡Ë |
| ÉßÃÏÌÌÀÑ | 8,778.92Ö¡Ê2,655.62ÄÚ¡Ë |
| Êݾڶ⡦Éß¶â | |
| ¸¢Íø¶â | |
| ¤½¤Î¾°ì»þ¶â | |
| Ãó¼Ö¾ì | Í(ÎÁ¶â¹þ¤ß) |
| Ãó¼Ö¾ìÀâÌÀ | Ê¿ÌÌ |
| Éô²°ÈÖ¹æ | |
| ¼è°ú·ÁÂÖ | ÇÞ²ð |
| ÅÚÃϸ¢Íø | ½ê͸¢ |
| ¹ñÅÚË¡ÆÏ½Ð | ÉÔÍ× |
| ±èÀþ¸òÄÌ | £Ê£Ò |
| °úÅϤ· | ÁêÃÌ |
| °Ý»ý´ÉÍýÈñÅù | ´ÉÍýÈñ10600±ß½¤Á¶Èñ2800±ß |
| ¼ÚÃÏ´ü´Ö¡¦ÃÏÂå | |
| ÃÏÀª | |
| ´ÉÍý·ÁÂÖ¡¢¾ò·ïÅù | ¾ï¶Ð |
| ºÇ´ó±Ø | £ÊR½Ð±À»Ô±Ø |
| ¥Ð¥¹Åù¸òÄ̼êÃÊ | ½Ð±À»ÔÌò½ê |
| ¹»¶è | »ÔΩº£»Ô¾®³Ø¹» |
| ¾Ò²ð¥µ¥¤¥È | https://www.zennichi.net/m/grotier/index.asp |
| ¹¹ð͸ú´ü´Ö | |
| ´Ö¼è¤êÆâÌõ | L£Ä£Ë14.1Ä¡¡¢Íμ¼£±¡¤6.0Ä¡¡¢Íμ¼£²¡¤4.5Ä¡¡¢Ï¼¼4.5Ä¡ |
| È÷¹Í | ¥¨¥¯¥»¥ì¥ó¥·¥¢½Ð±ÀÃæ±û¥×¥ì¥ß¥¢¥à¥ì¥¸¥Ç¥ó¥¹¥ª¡¼¥ëÅŲ½¥Þ¥ó¥·¥ç¥ó¤ÎÃæÉô²°¤Ç¤¹¡£ 24»þ´Ö¥´¥ß½Ð¤·²Äǽ¡¢¥¤¥ó¥¿¡¼¥Í¥Ã¥È̵ÎÁ¡¢¥¿¥¤¥äÃÖ¤¾ìÍ¡¢½Ð±À¥±¡¼¥Ö¥ë¥Ó¥¸¥ç¥óÍ¡¢¥ª¡¼¥ë¾ô¿å´ïÍ¡£ ½»Âð¥í¡¼¥ó¤Ç¤¹¤È¡¢¼ÚÆþ´ü´Ö40ǯ10ǯ¸ÇÄê¶âÍø£±¡¥£²¡ó·î¡¹»Ùʧ83974±ß¤Ç¤¹¡£ ÄÂÂߤǼڤê¤ë¤È¡¢Ìó£±3Ëü±ßÂæ¤Ç¤¹¡£ ΩÃϤϡ¢¥Þ¥Ã¥¯¥¹¥Ð¥ê¥åº£»ÔŹÌܤÎÁ°¤Ç¤¹¡£ ¤ªµÒÍͤΥˡ¼¥º¤Ë1È֤ˤª±þ¤¨¤Ç¤¤ë¤è¤¦¤Ë´èÄ¥¤ê¤Þ¤¹¡£ ¤´¹ØÆþ¼ÔÍͤˡ¢¥Ç¥¶¥¤¥ó¥¯¥í¥¹¥×¥ì¥¼¥ó¥È¡£ ½Ð±À»Ô¤ÎÉÔÆ°»º²ñ¼Ò¿·ÃÛ¥Þ¥ó¥·¥ç¥ó¥¨¥¯¥»¥ì¥ó¥·¥¢ÈÎÇäÂåÍý¤Î³ô¼°²ñ¼Ò¥°¥í¥Æ¥£¥¢¥¨¥¹¥Æ¡¼¥È¤Ë¤ªÇ¤¤»¤¯¤À¤µ¤¤¡£ ¤ªµ¤·Ú¤Ë¤ªÌ䤤¹ç¤ï¤»¤¯¤À¤µ¤¤¡£ ¿·ÃÛ¥Þ¥ó¥·¥ç¥ó¡Ê¥¨¥¯¥»¥ì¥ó¥·¥¢±ØÆî¥×¥ì¥ß¥¢¥à¥ì¥¸¥Ç¥ó¥¹¡ËÈÎÇäÃæ ¿·ÃÛ¥Þ¥ó¥·¥ç¥ó¡Ê¥¨¥¯¥»¥ì¥ó¥·¥¢ÃæÌîÈþÊÝ¥×¥ì¥ß¥¢¥à¥ì¥¸¥Ç¥ó¥¹¡Ë¥×¥ì¡¼¥ª¡¼¥×¥ó |
8072 since 2025-08-16
¼è¤ê°·¤¤Å¹ÊÞ
³ô¼°²ñ¼Ò¥°¥í¥Æ¥£¥¢¥¨¥¹¥Æ¡¼¥È
¢©693-0063¡¡Å纬¸©½Ð±À»ÔÂçÄÍÄ®791-1-308
[ÌȵöÈÖ¹æ]Å纬¸©Ãλö¡Ê1¡ËÂè1369¹æ
¡Ê¸ø¼Ò¡ËÁ´ÆüËÜÉÔÆ°»º¶¨²ñ¡Ê¸øÀµ¼è°ú¶¨µÄ²ñ²ÃÌÁ¶È¼Ô¡Ë
¡Ê¸ø¼Ò¡ËÉÔÆ°»ºÊݾڶ¨²ñÅ纬¸©ËÜÉô
¥¨¥¯¥»¥ì¥ó¥·¥¢¥Þ¥ó¥·¥ç¥óÈÎÇäÂåÍý¿·ÃÛ¥Þ¥ó¥·¥ç¥ó
¥¨¥¯¥»¥ì¥ó¥·±ØÆî¥×¥ì¥ß¥¢¥à¥ì¥¸¥Ç¥ó¥¹ÈÎÇäÃæ
ôÅöÈø¾å¡¡·ÈÂÓÈÖ¹æ080-3964¡Ý9090

- 0853-25-7491
¤´Ï¢Íí¤ÎºÝ¤Ï¡Ö»³±¢ÉÔÆ°»º¥Ê¥Ó¤ò¸«¤¿¡×¤È¸À¤¦¤È¥¹¥à¡¼¥º¤Ç¤¹ - FAX
- 0853-25-7492




















