Ãæ¸Å°ì¸Í·ú½»Âð
¡ù²Á³Ê²þÄꤷ¤Þ¤·¤¿¡ª¡ª¡ª¡¡ÌÚ¼¡Ä®»³Êý¡¡¸«À²¤é¤·Îɤ¯¡¡¥¢¥¯¥»¥¹Îɹ¥¤Êʪ·ï¡ù
| ²Á³Ê 600Ëü±ß ¸ò¾Ä¾õ¶· ÈÎÇäÃæ ¸½¶· ¶õ¼¼Ãæ | ¤³¤Îʪ·ï¤Ë¤Ä¤¤¤ÆÌ䤤¹ç¤ï¤»¤ë |
- ¥×¥í¥Ñ¥ó¥¬¥¹
- ÃÈË¼ÊØºÂ
- ÁÒ¸Ë
¼Ì¿¿
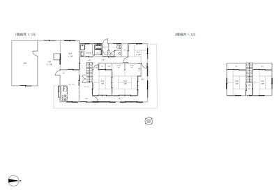
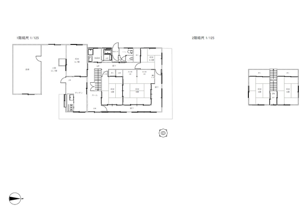
´Ö¼è¤ê¿Þ
ʪ·ï¾ÜºÙ¾ðÊó
2085 since 2025-08-18
¼è¤ê°·¤¤Å¹ÊÞ
ÅÄÃæ¹©¶È¡¡³ô¼°²ñ¼Ò
¢©699-1333¡¡Å纬¸©±ÀÆî»ÔÌÚ¼¡Ä®²¼·§Ã«1098ÈÖÃÏ8
[ÌȵöÈÖ¹æ]Å纬¸©Ãλö¡Ê4¡Ë¹æ1111¹æ
¸ø±×¼ÒÃÄË¡¿Í¡¡Á´ÆüËÜÉÔÆ°»º¶¨²ñ²ñ°÷¡¡¡¡¡¡¡¡¡¡¡¡¡¡¡¡¡¡¡¡¡¡¡¡¡¡¡¡¡¡¡¡
¸ø±×¼ÒÃÄË¡¿Í¡¡ÉÔÆ°»ºÊݾڶ¨²ñ²ñ°÷¡¡¡¡¡¡¡¡¡¡¡¡¡¡¡¡¡¡¡¡¡¡¡¡¡¡¡¡¡¡
°ìÈ̼ÒÃÄË¡¿Í¡¡Á´¹ñÉÔÆ°»º¶¨²ñ²ñ°÷

- 0854-42-0473
¤´Ï¢Íí¤ÎºÝ¤Ï¡Ö»³±¢ÉÔÆ°»º¥Ê¥Ó¤ò¸«¤¿¡×¤È¸À¤¦¤È¥¹¥à¡¼¥º¤Ç¤¹ - FAX
- 0854-42-5406

















