Ãæ¸Å°ì¸Í·ú½»Âð
¼µÆ»Ä®¾¼Ï¡¡Ãæ¸Å½»Âð
| ²Á³Ê 180Ëü±ß ¸ò¾Ä¾õ¶· ÈÎÇäÃæ ¸½¶· ¶õ¼¼Ãæ | ¤³¤Îʪ·ï¤Ë¤Ä¤¤¤ÆÌ䤤¹ç¤ï¤»¤ë |
¼Ì¿¿
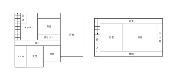
´Ö¼è¤ê¿Þ
ʪ·ï¾ÜºÙ¾ðÊó
20968 since 2022-05-02
¼è¤ê°·¤¤Å¹ÊÞ
³ô¼°²ñ¼Ò¡¡¾¾¹¾¥Æ¥¯¥Î¥µ¡¼¥Ó¥¹
¢©699-0407¡¡Å纬¸©¾¾¹¾»Ô¼µÆ»Ä®°Ë»Ö¸«493-1
[ÌȵöÈÖ¹æ]Å纬¸©Ãλö¡Ê3¡ËÂè1154¹æ
¸ø±×¼ÒÃÄË¡¿Í¡¡Á´ÆüËÜÉÔÆ°»º¶¨²ñ²ñ°÷
¸ø±×¼ÒÃÄË¡¿Í¡¡ÉÔÆ°»ºÊݾڶ¨²ñ²ñ°÷

- 0852-66-3050
¤´Ï¢Íí¤ÎºÝ¤Ï¡Ö»³±¢ÉÔÆ°»º¥Ê¥Ó¤ò¸«¤¿¡×¤È¸À¤¦¤È¥¹¥à¡¼¥º¤Ç¤¹ - FAX
- 0852-66-3156
























