¿·ÃÛ°ì¸Í·ú½»Âð
¡Î¥¯¥ì¥Ð¥ê¡¼¥Û¡¼¥à¡Ï¾¾¹¾»Ô¸Å»Ö¸¶3ÃúÌÜ·úÇä¡Ã·úÃۥǥ¶¥¤¥Ê¡¼¤¬¹Í¤¨¤¿¡¢¥Ç¥¶¥¤¥ó¤âÀǽ¤âÂŶ¨¤·¤Ê¤¤²È¡£
| ²Á³Ê 4,220Ëü±ß ¸ò¾Ä¾õ¶· ÈÎÇäÃæ ¸½¶· ·úÀßÃæ | ¤³¤Îʪ·ï¤Ë¤Ä¤¤¤ÆÌ䤤¹ç¤ï¤»¤ë |
- Îä˼
- ÃÈ˼
- ¥¨¥¢¥³¥ó
- µëÅò
- ¥ª¡¼¥ëÅŲ½
- ¼ýǼ¥¹¥Ú¡¼¥¹
- ¾²²¼¼ýǼ
- Àö¾ôÊØºÂ
- ÃÈË¼ÊØºÂ
- ¥Õ¥í¡¼¥ê¥ó¥°
- IH¥¯¥Ã¥¥ó¥°¥Ò¡¼¥¿¡¼
- ¥·¥¹¥Æ¥à¥¥Ã¥Á¥ó
- ¥Ð¥ë¥³¥Ë¡¼
- TV¥â¥Ë¥¿¡¼¥Õ¥©¥ó
- Íá¼¼´¥Áç
- Äɤ¤¿æ¤
- ÆüÅö¤¿¤êÎɹ¥
- ´×ÀŽ»ÂðÃÏ
- Ãó¼Ö¾ì£²Âæ°Ê¾å
¼Ì¿¿
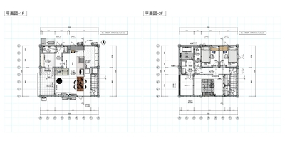
´Ö¼è¤ê¿Þ
ʪ·ï¾ÜºÙ¾ðÊó
| ʪ·ïÈÖ¹æ | FK0617 | ½êºßÃÏ | ¾¾¹¾»Ô¸Å»Ö¸¶3ÃúÌÜ1085-21¡Ê1¹æÃÏ¡Ë |
|---|---|---|---|
| ¼ïÊÌ | ¿·ÃÛ°ì¸Í·ú½»Âð | ¹½Â¤ | ÌÚ¤£²³¬·ú |
| ´Ö¼è¤ê | £³£Ì£Ä£Ë | ·úÃÛǯ·î | 2025ǯ10·î |
| ·úʪÌÌÀÑ | 101.02Ö¡Ê30.56ÄÚ¡Ë | ÅÚÃÏÌÌÀÑ | 171.85Ö¡Ê51.98ÄÚ¡Ë |
| »äÆ»ÌÌÀÑ | ·ú¤Ú¤¤Î¨ | 26¡ó | |
| ÍÆÀÑΨ | 47¡ó | ÀÜÆ»¾õ¶· | ¸øÆ»À¾Â¦Éý°÷5.0m¡¡ÀÜÆ»Ä¹¤µ9.61m |
| Êݾڶ⡦Éß¶â | ¸¢Íø¶â | ||
| ¤½¤Î¾°ì»þ¶â | Ãó¼Ö¾ì | Í(ÎÁ¶â¹þ¤ß) | |
| Ãó¼Ö¾ìÀâÌÀ | 3¡Á4Âæ²Äǽ¡Ê¼Ö¼ï¤Ë¤è¤ë¡Ë | ¶è²èÈÖ¹æ | 1¹æÃÏ |
| ¼è°ú·ÁÂÖ | Çä¼ç | ÅÚÃϸ¢Íø | ½ê͸¢ |
| ¹ñÅÚË¡ÆÏ½Ð | ÉÔÍ× | ±èÀþ¸òÄÌ | £Ê£Ò |
| °úÅϤ· | ÁêÃÌ | ÃÏÌÜ | ÂðÃÏ |
| ÅԻԷײè | »Ô³¹²½¶è°è | ÍÑÅÓÃϰè | Â裲¼ïÃæ¹âÁؽ»µïÀìÍÑÃϰè |
| ÃÏÌÜÀâÌÀ | ÂðÃÏ | ||
| °Ý»ý´ÉÍýÈñÅù | |||
| ¼ÚÃÏ´ü´Ö¡¦ÃÏÂå | |||
| ÃÏÀª | |||
| ´ÉÍý·ÁÂÖ¡¢¾ò·ïÅù | Çä¼ç | ||
| ºÇ´ó±Ø | JR¾¾¹¾±Ø¤Þ¤Ç3.3Ò | ||
| ¥Ð¥¹Åù¸òÄ̼êÃÊ | ¸Å»Ö¸¶¡Ê¥Ð¥¹¡Ë¤Þ¤Ç400£í | ||
| ¹»¶è | ¾¾¹¾»ÔΩ¸Å»Ö¸¶¾®³Ø¹»¡¡¾¾¹¾»ÔΩÂè»ÍÃæ³Ø¹» | ||
| ¾Ò²ð¥µ¥¤¥È | https://housing-staff.co.jp/cleverlyhome/lineup_house/lineup_house-21143/ | ||
| ¹¹ð͸ú´ü´Ö | |||
| ´Ö¼è¤êÆâÌõ | LDKÍμ¼3¼¼ | ||
| È÷¹Í | Àǽ¡£¥Ç¥¶¥¤¥ó¡£²Á³Ê¡£¤¹¤Ù¤Æ¤ò¹â¿å½à¤ÇËþ¤¿¤·¤¿¡Öclevers¡×¥â¥Ç¥ë¤Î°ì¸Í·ú¤Æ½»Â𤬾¾¹¾¥¨¥ê¥¢¤Ë½éÅо졪 ¤³¤Á¤é¤Îʪ·ï¤Ï·úÇä½»Âð¡Êʬ¾ù½»Âð¡Ë¤Ê¤Î¤Ç¨»þ¤´Æþµï²Äǽ¤Ç¤¹¡£ ¤µ¤é¤ËÁ´¼¼¤ËLED¾ÈÌÀ¤È¥«¡¼¥Æ¥ó¡¢¥¨¥¢¥³¥ó2Âæ¡¢ÉßÃÏÆâÃó¼Ö¾ì3¡Á4ÂæÊ¬¤Ä¤¡ª ¤´Æþµï¸å¤Î¥³¥¹¥È¤òÂçÉý¤Ë¥«¥Ã¥È¤·¡¢Êë¤é¤·»Ï¤á¤¿¤½¤ÎÆü¤«¤é²÷Ŭ¤Ë²á¤´¤»¤Þ¤¹¡£ ¤â¤Á¤í¤óÃç²ð¼ê¿ôÎÁ¤Ï0±ß¤Ç¤¹¡£ ¡Î²Á¡¡¡¡³Ê¡Ï4220Ëü±ß¡ÊÆâÅÚÃÏÂå¡§1320Ëü±ß¡Ë ¡Ê²Á³Ê¤Ë´Þ¤Þ¤ì¤ë¤â¤Î¡§Á´¼¼¾ÈÌÀ¡¦¥«¡¼¥Æ¥ó¹©¡¦Ãó¼Ö¾ì3¡Á4ÂæÊ¬¡¦¥¨¥¢¥³¥ó2Âæ¡Ë ¡ÎÅÚÃÏÌÌÀÑ¡Ï171.85Ö¡¡(51.98ÄÚ) ¡Î±ä¾²ÌÌÀÑ¡Ï81.14Ö¡¡(24.54ÄÚ) ¢¡½»Â𤪤¹¤¹¤á¥Ý¥¤¥ó¥È ¡¦Àǽ¡£¥Ç¥¶¥¤¥ó¡£²Á³Ê¡£¤¹¤Ù¤Æ¤òËþ¤¿¤·¤¿¡Öclevers¡×¥â¥Ç¥ë¤Î°ì¸Í·ú¤Æ½»Â𤬾¾¹¾¥¨¥ê¥¢¤Ë½éÅо졪 ¡¦¥Ö¥é¥Ã¥¯¿§¤ò»ÈÍѤ·¤¿³°ÊÉ¥¿¥¤¥ë¤ÇÍî¤ÁÃ夤ȹâµé´¶¡¢¤½¤·¤Æ¤É¤Ã¤·¤ê¤È¤·¤¿½Å¸ü´¶¤òÍ¿¤¨¡¢»þ´ÖÂÓ¤ä¸÷¤ÎÅö¤¿¤êÊý¤Ë¤è¤Ã¤ÆÍÍ¡¹¤Êɽ¾ð¤ò¸«¤»¤Æ¤¯¤ì¤Þ¤¹¡ª ¢¡¤³¤ó¤ÊÊý¤Ë¤ª¤¹¤¹¤á ¡¡¡¦2¡Á4¿Í²È²Í͸þ¤±🪴 ¡¡¡¦¾¾¹¾¤Î»ÔÆâ¤è¤ê¤Ë½»¤ß¤¿¤¤Êý ¡¡¡¦¼Ö¤ò3¡Á4Âæ¤ÏÃó¼Ö¤·¤¿¤¤Êý Á´Ì̳°ÊÉ¥¿¥¤¥ë¤ò»ÈÍѤ·¤¿³°´Ñ¤Ç¹âµé´¶¤Î¤¢¤ë¥Ç¥¶¥¤¥ó ±«¤ä±ø¤ì¡¦½ý¤Ë¶¯¤¯¡¢²¿½½Ç¯·Ð²á¤·¤Æ¤âÈþ¤·¤µ¤òÊݤĤΤ¬Ì¥ÎϤǤ¹¡£ Ť¯°Â¿´¤·¤Æ½»¤ß³¤±¤é¤ì¤ë¹âÉʼÁ¤ÊÁǺà¤ò»ÈÍѤ·¡¢½»¤à¿Í¤ÎÆü¡¹¤ÎÀ¸³è¤òˤ«¤Ë¤·¤Þ¤¹¡£ ¥¯¥ì¥Ð¥ê¡¼¥Û¡¼¥à¤ÏÄê´üŪ¤ÊÅÀ¸¡¤ä¥á¥ó¥Æ¥Ê¥ó¥¹¤Ê¤É¡¢°Â¿´¤·¤Æ½»¤ß³¤±¤é¤ì¤ë¥µ¥Ý¡¼¥ÈÂÎÀ©¤â½¼¼Â¡ª ʪ·ï¤ò¤â¤Ã¤È¾Ü¤·¤¯¤ªÊ¹¤¤Ë¤Ê¤ê¤¿¤¤Êý¤Ï ²¼µ¡Ú¤ªÌ䤤¹ç¤ï¤»¥Õ¥©¡¼¥à¡ÛËô¤Ï¤ªÅÅÏò¼¤µ¤¤ ¥¯¥ì¥Ð¥ê¡¼¥Û¡¼¥à¾¾¹¾Å¹¡¡0852-67-3857 ¤ªµ¤·Ú¤Ë¤´ÁêÃ̤¯¤À¤µ¤¤☺️✨ |
||
| ʪ·ïÈÖ¹æ | FK0617 | ||
|---|---|---|---|
| ½êºßÃÏ | ¾¾¹¾»Ô¸Å»Ö¸¶3ÃúÌÜ1085-21¡Ê1¹æÃÏ¡Ë | ||
| ¼ïÊÌ | ¿·ÃÛ°ì¸Í·ú½»Âð | ||
| ¹½Â¤ | ÌÚ¤£²³¬·ú | ||
| ´Ö¼è¤ê | £³£Ì£Ä£Ë | ||
| ·úÃÛǯ·î | 2025ǯ10·î | ||
| ·úʪÌÌÀÑ | 101.02Ö¡Ê30.56ÄÚ¡Ë | ||
| ÅÚÃÏÌÌÀÑ | 171.85Ö¡Ê51.98ÄÚ¡Ë | ||
| »äÆ»ÌÌÀÑ | |||
| ·ú¤Ú¤¤Î¨ | 26¡ó | ||
| ÍÆÀÑΨ | 47¡ó | ||
| ÀÜÆ»¾õ¶· | ¸øÆ»À¾Â¦Éý°÷5.0m¡¡ÀÜÆ»Ä¹¤µ9.61m | ||
| Êݾڶ⡦Éß¶â | |||
| ¸¢Íø¶â | |||
| ¤½¤Î¾°ì»þ¶â | |||
| Ãó¼Ö¾ì | Í(ÎÁ¶â¹þ¤ß) | ||
| Ãó¼Ö¾ìÀâÌÀ | 3¡Á4Âæ²Äǽ¡Ê¼Ö¼ï¤Ë¤è¤ë¡Ë | ||
| ¶è²èÈÖ¹æ | 1¹æÃÏ | ||
| ¼è°ú·ÁÂÖ | Çä¼ç | ||
| ÅÚÃϸ¢Íø | ½ê͸¢ | ||
| ¹ñÅÚË¡ÆÏ½Ð | ÉÔÍ× | ||
| ±èÀþ¸òÄÌ | £Ê£Ò | ||
| °úÅϤ· | ÁêÃÌ | ||
| ÃÏÌÜ | ÂðÃÏ | ||
| ÅԻԷײè | »Ô³¹²½¶è°è | ||
| ÍÑÅÓÃϰè | Â裲¼ïÃæ¹âÁؽ»µïÀìÍÑÃϰè | ||
| ÃÏÌÜÀâÌÀ | ÂðÃÏ | ||
| °Ý»ý´ÉÍýÈñÅù | |||
| ¼ÚÃÏ´ü´Ö¡¦ÃÏÂå | |||
| ÃÏÀª | |||
| ´ÉÍý·ÁÂÖ¡¢¾ò·ïÅù | Çä¼ç | ||
| ºÇ´ó±Ø | JR¾¾¹¾±Ø¤Þ¤Ç3.3Ò | ||
| ¥Ð¥¹Åù¸òÄ̼êÃÊ | ¸Å»Ö¸¶¡Ê¥Ð¥¹¡Ë¤Þ¤Ç400£í | ||
| ¹»¶è | ¾¾¹¾»ÔΩ¸Å»Ö¸¶¾®³Ø¹»¡¡¾¾¹¾»ÔΩÂè»ÍÃæ³Ø¹» | ||
| ¾Ò²ð¥µ¥¤¥È | https://housing-staff.co.jp/cleverlyhome/lineup_house/lineup_house-21143/ | ||
| ¹¹ð͸ú´ü´Ö | |||
| ´Ö¼è¤êÆâÌõ | LDKÍμ¼3¼¼ | ||
| È÷¹Í | Àǽ¡£¥Ç¥¶¥¤¥ó¡£²Á³Ê¡£¤¹¤Ù¤Æ¤ò¹â¿å½à¤ÇËþ¤¿¤·¤¿¡Öclevers¡×¥â¥Ç¥ë¤Î°ì¸Í·ú¤Æ½»Â𤬾¾¹¾¥¨¥ê¥¢¤Ë½éÅо졪 ¤³¤Á¤é¤Îʪ·ï¤Ï·úÇä½»Âð¡Êʬ¾ù½»Âð¡Ë¤Ê¤Î¤Ç¨»þ¤´Æþµï²Äǽ¤Ç¤¹¡£ ¤µ¤é¤ËÁ´¼¼¤ËLED¾ÈÌÀ¤È¥«¡¼¥Æ¥ó¡¢¥¨¥¢¥³¥ó2Âæ¡¢ÉßÃÏÆâÃó¼Ö¾ì3¡Á4ÂæÊ¬¤Ä¤¡ª ¤´Æþµï¸å¤Î¥³¥¹¥È¤òÂçÉý¤Ë¥«¥Ã¥È¤·¡¢Êë¤é¤·»Ï¤á¤¿¤½¤ÎÆü¤«¤é²÷Ŭ¤Ë²á¤´¤»¤Þ¤¹¡£ ¤â¤Á¤í¤óÃç²ð¼ê¿ôÎÁ¤Ï0±ß¤Ç¤¹¡£ ¡Î²Á¡¡¡¡³Ê¡Ï4220Ëü±ß¡ÊÆâÅÚÃÏÂå¡§1320Ëü±ß¡Ë ¡Ê²Á³Ê¤Ë´Þ¤Þ¤ì¤ë¤â¤Î¡§Á´¼¼¾ÈÌÀ¡¦¥«¡¼¥Æ¥ó¹©¡¦Ãó¼Ö¾ì3¡Á4ÂæÊ¬¡¦¥¨¥¢¥³¥ó2Âæ¡Ë ¡ÎÅÚÃÏÌÌÀÑ¡Ï171.85Ö¡¡(51.98ÄÚ) ¡Î±ä¾²ÌÌÀÑ¡Ï81.14Ö¡¡(24.54ÄÚ) ¢¡½»Â𤪤¹¤¹¤á¥Ý¥¤¥ó¥È ¡¦Àǽ¡£¥Ç¥¶¥¤¥ó¡£²Á³Ê¡£¤¹¤Ù¤Æ¤òËþ¤¿¤·¤¿¡Öclevers¡×¥â¥Ç¥ë¤Î°ì¸Í·ú¤Æ½»Â𤬾¾¹¾¥¨¥ê¥¢¤Ë½éÅо졪 ¡¦¥Ö¥é¥Ã¥¯¿§¤ò»ÈÍѤ·¤¿³°ÊÉ¥¿¥¤¥ë¤ÇÍî¤ÁÃ夤ȹâµé´¶¡¢¤½¤·¤Æ¤É¤Ã¤·¤ê¤È¤·¤¿½Å¸ü´¶¤òÍ¿¤¨¡¢»þ´ÖÂÓ¤ä¸÷¤ÎÅö¤¿¤êÊý¤Ë¤è¤Ã¤ÆÍÍ¡¹¤Êɽ¾ð¤ò¸«¤»¤Æ¤¯¤ì¤Þ¤¹¡ª ¢¡¤³¤ó¤ÊÊý¤Ë¤ª¤¹¤¹¤á ¡¡¡¦2¡Á4¿Í²È²Í͸þ¤±🪴 ¡¡¡¦¾¾¹¾¤Î»ÔÆâ¤è¤ê¤Ë½»¤ß¤¿¤¤Êý ¡¡¡¦¼Ö¤ò3¡Á4Âæ¤ÏÃó¼Ö¤·¤¿¤¤Êý Á´Ì̳°ÊÉ¥¿¥¤¥ë¤ò»ÈÍѤ·¤¿³°´Ñ¤Ç¹âµé´¶¤Î¤¢¤ë¥Ç¥¶¥¤¥ó ±«¤ä±ø¤ì¡¦½ý¤Ë¶¯¤¯¡¢²¿½½Ç¯·Ð²á¤·¤Æ¤âÈþ¤·¤µ¤òÊݤĤΤ¬Ì¥ÎϤǤ¹¡£ Ť¯°Â¿´¤·¤Æ½»¤ß³¤±¤é¤ì¤ë¹âÉʼÁ¤ÊÁǺà¤ò»ÈÍѤ·¡¢½»¤à¿Í¤ÎÆü¡¹¤ÎÀ¸³è¤òˤ«¤Ë¤·¤Þ¤¹¡£ ¥¯¥ì¥Ð¥ê¡¼¥Û¡¼¥à¤ÏÄê´üŪ¤ÊÅÀ¸¡¤ä¥á¥ó¥Æ¥Ê¥ó¥¹¤Ê¤É¡¢°Â¿´¤·¤Æ½»¤ß³¤±¤é¤ì¤ë¥µ¥Ý¡¼¥ÈÂÎÀ©¤â½¼¼Â¡ª ʪ·ï¤ò¤â¤Ã¤È¾Ü¤·¤¯¤ªÊ¹¤¤Ë¤Ê¤ê¤¿¤¤Êý¤Ï ²¼µ¡Ú¤ªÌ䤤¹ç¤ï¤»¥Õ¥©¡¼¥à¡ÛËô¤Ï¤ªÅÅÏò¼¤µ¤¤ ¥¯¥ì¥Ð¥ê¡¼¥Û¡¼¥à¾¾¹¾Å¹¡¡0852-67-3857 ¤ªµ¤·Ú¤Ë¤´ÁêÃ̤¯¤À¤µ¤¤☺️✨ |
||
1474 since 2025-07-18
¼è¤ê°·¤¤Å¹ÊÞ
¥Ï¥¦¥¸¥ó¥°¡¦¥¹¥¿¥Ã¥Õ³ô¼°²ñ¼Ò¡Ê¥¯¥ì¥Ð¥ê¡¼¥Û¡¼¥à¾¾¹¾Å¹/½Ð±ÀŹ¡Ë
¢©690-0011¡¡Å纬¸©¾¾¹¾»ÔÅìÄÅÅÄÄ®453-2
[ÌȵöÈÖ¹æ]¹ñÅÚ¸òÄÌÂç¿Ã¡Ê2¡ËÂè009150¹æ
¥Ï¥¦¥¸¥ó¥°¡¦¥¹¥¿¥Ã¥Õ¤Î½»Âð¥Ö¥é¥ó¥É¤Ç¿·ÃÛ¡¦·úÇä½»Âð¡¦Ãæ¸Å½»Âð¤ò¤¼¤Ò¤´¸¡Æ¤²¼¤µ¤¤¡£

- 0852-67-3857
¤´Ï¢Íí¤ÎºÝ¤Ï¡Ö»³±¢ÉÔÆ°»º¥Ê¥Ó¤ò¸«¤¿¡×¤È¸À¤¦¤È¥¹¥à¡¼¥º¤Ç¤¹ - FAX
- --


























