ÅÚÃÏ
¥æ¥Ë¥Ð ¥¢¡¼¥¯¥¿¥¦¥óË¡µÈÂ糦«¹æÃÏ
| ²Á³Ê 1,020Ëü±ß¡ÊÄÚñ²Á¡§19.82Ëü±ß¡Ë ¸ò¾Ä¾õ¶· ÈÎÇäÃæ ¸½¶· ʬ¾ùÃæ | ¤³¤Îʪ·ï¤Ë¤Ä¤¤¤ÆÌ䤤¹ç¤ï¤»¤ë |
¼Ì¿¿
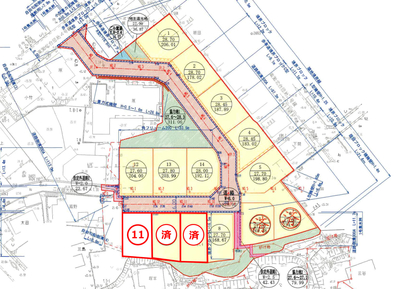
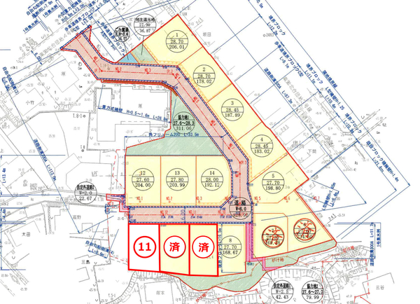
´Ö¼è¤ê¿Þ
ʪ·ï¾ÜºÙ¾ðÊó
1209 since 2025-12-05
¼è¤ê°·¤¤Å¹ÊÞ
¥æ¥Ë¥Ð¡¼¥µ¥ë¥Û¡¼¥à¾¾¹¾Å¹¡Ê¥¥É¥Ç¥¶¥¤¥ó°ìµé·úÃۻλö̳½ê¡Ë
¢©690-0876¡¡Å纬¸©¾¾¹¾»Ô¹õÅÄÄ®485-5
[ÌȵöÈÖ¹æ]Å纬¸©Ãλö¡Ê4¡ËÂ裱£±£¶£·¹æ
ÄêµÙÆü¡§²ÐÍËÆü¡¦¿åÍËÆü
¸ø±×¼ÒÃÄË¡¿Í¡¡Á´ÆüËÜÉÔÆ°»º¶¨²ñÅ纬¸©ËÜÉô²ñ°÷
¸ø±×¼ÒÃÄË¡¿Í¡¡ÉÔÆ°»ºÊݾڶ¨²ñÅ纬¸©ËÜÉô²ñ°÷
°ìÈ̼ÒÃÄË¡¿Í¡¡Á´¹ñÉÔÆ°»º¶¨²ñÅ纬¸©ËÜÉô²ñ°÷
°ìÈ̼ÒÃÄË¡¿Í¡¡Å纬¸©½»¤Þ¤¤¤Å¤¯¤ê¶¨²ñ²ñ°÷

- 0852-32-4700
¤´Ï¢Íí¤ÎºÝ¤Ï¡Ö»³±¢ÉÔÆ°»º¥Ê¥Ó¤ò¸«¤¿¡×¤È¸À¤¦¤È¥¹¥à¡¼¥º¤Ç¤¹ - FAX
- 0852-32-4701




















