¿·ÃÛ°ì¸Í·ú½»Âð
¾¾¹¾»ÔÀ¾ÀîÄÅÄ®Âè1¡Á2026ǯ4·î´°À®Í½Äê¡Á
| ²Á³Ê 3,480Ëü±ß ¸ò¾Ä¾õ¶· ÈÎÇäÃæ ¸½¶· ·úÀßÃæ | ¤³¤Îʪ·ï¤Ë¤Ä¤¤¤ÆÌ䤤¹ç¤ï¤»¤ë |
- µëÅò
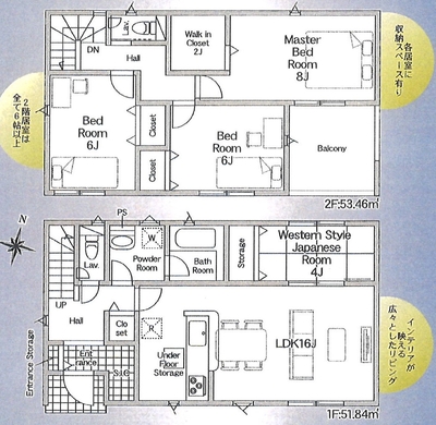
- ¥ª¡¼¥ëÅŲ½
- ¼ýǼ¥¹¥Ú¡¼¥¹
- Àö¾ôÊØºÂ
- ÃÈË¼ÊØºÂ
- ¥Õ¥í¡¼¥ê¥ó¥°
- IH¥¯¥Ã¥¥ó¥°¥Ò¡¼¥¿¡¼
- ¥·¥¹¥Æ¥à¥¥Ã¥Á¥ó
- ÀìÍÑÄí
- TV¥â¥Ë¥¿¡¼¥Õ¥©¥ó
- ´×ÀŽ»ÂðÃÏ
- Ãó¼Ö¾ì£²Âæ°Ê¾å
¼Ì¿¿
´Ö¼è¤ê¿Þ
ʪ·ï¾ÜºÙ¾ðÊó
811 since 2025-12-10
¼è¤ê°·¤¤Å¹ÊÞ
¡¡Soel
¢©690-0015¡¡Å纬¸©¾¾¹¾»Ô¾åǵÌÚ6ÃúÌÜ1-19
[ÌȵöÈÖ¹æ]Å纬¸©Ãλö¡Ê£²¡ËÂ裱£³£³£°¹æ
¸ø±×¼ÒÃÄË¡¿Í¡¡Á´¹ñÂðÃÏ·úʪ¼è°ú¶ÈÊݾڶ¨²ñ²ñ°÷
¸ø±×¼ÒÃÄË¡¿Í¡¡Å纬¸©ÂðÃÏ·úʪ¼è°ú¶È¶¨²ñ²ñ°÷

- 0852-67-3089
¤´Ï¢Íí¤ÎºÝ¤Ï¡Ö»³±¢ÉÔÆ°»º¥Ê¥Ó¤ò¸«¤¿¡×¤È¸À¤¦¤È¥¹¥à¡¼¥º¤Ç¤¹ - FAX
- 0852-67-3158
















