Ãæ¸Å°ì¸Í·ú½»Âð
¡Ú¼ý±×ʪ·ï¡ÛÅÏÄŸͷúÄÂÂßAÅï¡Ú¥ª¡¼¥Ê¡¼¥Á¥§¥ó¥¸¡Û
| ²Á³Ê 2,069Ëü±ß ¸ò¾Ä¾õ¶· ÈÎÇäÃæ ¸½¶· ÆþµïÃæ | ¤³¤Îʪ·ï¤Ë¤Ä¤¤¤ÆÌ䤤¹ç¤ï¤»¤ë |
- µëÅò
- ¥ª¡¼¥ëÅŲ½
- ¼ýǼ¥¹¥Ú¡¼¥¹
- ¥Õ¥í¡¼¥ê¥ó¥°
- ¥·¥¹¥Æ¥à¥¥Ã¥Á¥ó
¼Ì¿¿
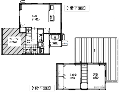
´Ö¼è¤ê¿Þ
ʪ·ï¾ÜºÙ¾ðÊó
6 since 2026-02-09
¼è¤ê°·¤¤Å¹ÊÞ
³ô¼°²ñ¼Ò°æ¾åÁÈ¡¡ÏÂÌÚ»ö̳½ê
¢©695-0017¡¡Å纬¸©¹¾ÄÅ»ÔÏÂÌÚÄ®1148-6
[ÌȵöÈÖ¹æ]Å纬¸©Ãλö(1)1380¹æ
ËܼҽêºßÃÏ¡§Å纬¸©¹¾ÄŻԺù¹¾Ä®¾®ÅÄ943-12
¡Ú²ÃÌÁÃÄÂΡ۸ø±×¼ÒÃÄË¡¿Í¡¡Á´ÆüËÜÉÔÆ°»º¶¨²ñ²ñ°÷
¡¡¡¡¡¡¡¡¡¡¡¡¸ø±×¼ÒÃÄË¡¿Í¡¡ÉÔÆ°»ºÊݾڶ¨²ñ²ñ°÷
¡¡¡¡¡¡¡¡¡¡¡¡°ìÈ̼ÒÃÄË¡¿Í¡¡Á´¹ñÉÔÆ°»º¶¨²ñ²ñ°÷
¡¡¡¡¡¡¡¡¡¡¡¡Ãæ¹ñÃ϶èÉÔÆ°»º¸øÀµ¼è°ú¶¨µÄ²ñ

- 080-9335-7091
¤´Ï¢Íí¤ÎºÝ¤Ï¡Ö»³±¢ÉÔÆ°»º¥Ê¥Ó¤ò¸«¤¿¡×¤È¸À¤¦¤È¥¹¥à¡¼¥º¤Ç¤¹ - FAX
- 0855-92-0270






















