Ãæ¸Å°ì¸Í·ú½»Âð
¸Å»Ö¸¶3ÃúÌÜÅÚÃϡʷúʪÉÕ¤¡Ë
| ²Á³Ê 700Ëü±ß ¸ò¾Ä¾õ¶· ¾¦ÃÌÃæ ¸½¶· ¶õ¼¼Ãæ | ¤³¤Îʪ·ï¤Ë¤Ä¤¤¤ÆÌ䤤¹ç¤ï¤»¤ë |
- ¥×¥í¥Ñ¥ó¥¬¥¹
- ¥¨¥¢¥³¥ó
- µëÅò
- Àö¾ôÊØºÂ
- ¥Õ¥í¡¼¥ê¥ó¥°
- ÁÒ¸Ë
¼Ì¿¿
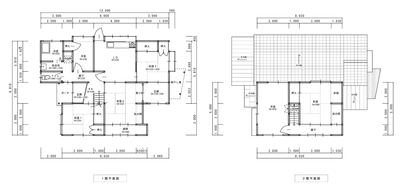
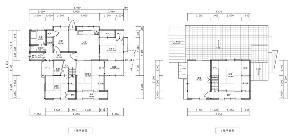
´Ö¼è¤ê¿Þ
ʪ·ï¾ÜºÙ¾ðÊó
1742 since 2025-08-19
¼è¤ê°·¤¤Å¹ÊÞ
¥æ¥Ë¥Æ¥£ÉÔÆ°»º¡¿³ô¼°²ñ¼ÒUNITY
¢©690-0064¡¡Å纬¸©¾¾¹¾»ÔÅ·¿ÀÄ®127ÈÖÃÏ2£Æ
[ÌȵöÈÖ¹æ]Å纬¸©Ãλö¡Ê1¡ËÂè1344¹æ
¡þ±Ä¶È»þ´Ö 9¡§30¡Á18¡§30¡þ
¾¾¹¾¤ÎÇäÇ㡦ÄÂÂßʪ·ï¤Î¤³¤È¤Ê¤é²¿¤Ç¤â
¤ªµ¤·Ú¤Ë¤´ÁêÃ̤¯¤À¤µ¤¤¡ª

- 0852-61-8833
¤´Ï¢Íí¤ÎºÝ¤Ï¡Ö»³±¢ÉÔÆ°»º¥Ê¥Ó¤ò¸«¤¿¡×¤È¸À¤¦¤È¥¹¥à¡¼¥º¤Ç¤¹ - FAX
- 0852-61-8834


























