¿·ÃÛ°ì¸Í·ú½»Âð
✨¾åǵÌÚ·úÇä2¹æÃÏ🏠
| ²Á³Ê 3,813Ëü±ß ¸ò¾Ä¾õ¶· ¾¦ÃÌÃæ ¸½¶· ʬ¾ùÃæ | ¤³¤Îʪ·ï¤Ë¤Ä¤¤¤ÆÌ䤤¹ç¤ï¤»¤ë |
- ¥¨¥¢¥³¥ó
- µëÅò
- ¥ª¡¼¥ëÅŲ½
- ¥¤¥ó¥¿¡¼¥Í¥Ã¥È
- ¼ýǼ¥¹¥Ú¡¼¥¹
- Àö¾ôÊØºÂ
- ÃÈË¼ÊØºÂ
- ¥Õ¥í¡¼¥ê¥ó¥°
- IH¥¯¥Ã¥¥ó¥°¥Ò¡¼¥¿¡¼
- ¥·¥¹¥Æ¥à¥¥Ã¥Á¥ó
- TV¥â¥Ë¥¿¡¼¥Õ¥©¥ó
- Íá¼¼´¥Áç
- Äɤ¤¿æ¤
- ´×ÀŽ»ÂðÃÏ
- Ãó¼Ö¾ì£²Âæ°Ê¾å
¼Ì¿¿
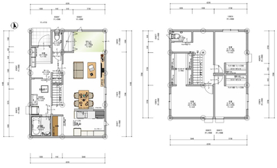
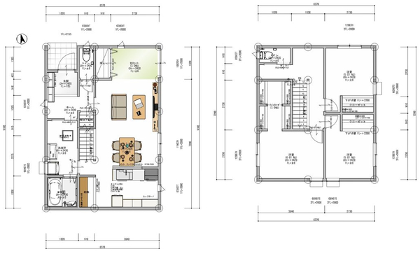
´Ö¼è¤ê¿Þ
ʪ·ï¾ÜºÙ¾ðÊó
3066 since 2025-03-16
¼è¤ê°·¤¤Å¹ÊÞ
¥È¥Á¥¹¥Þ¡¦¥·¥ç¥Ã¥×¾¾¹¾Å¹
¢©690-0011¡¡Å纬¸©¾¾¹¾»ÔÅìÄÅÅÄÄ®453ÈÖÃÏ 3F
[ÌȵöÈÖ¹æ]¹ñÅÚ¸òÄÌÂç¿ÃÌȵö¡Ê£²¡Ë9150¹æ
¡ý±Ä¶È»þ´Ö:9:00¡Á17:00 ¡ýÄêµÙÆü:²ÐÍËÆü¡¢¿åÍËÆü (½ËÆü½ü¤¯)
¡ý¸ø¼°Instagram¤â¤ä¤Ã¤Æ¤Þ¤¹😊🎈🎈¡¡¡¡¡¡¡¡¡¡¡¡¡¡¡¡¡¡¡¡¡¡¡¡¡¡¡ýÃæ¸Åʪ·ï¡Ü¥ê¥Õ¥©¡¼¥àÄ󰯤â¤Ç¤¤Þ¤¹¡ª¤Þ¤¿Çã¼è´õ˾¤ÎÊý¤âÂç´¿·Þ¤Ç¤¹💛

- 0852-61-3857
¤´Ï¢Íí¤ÎºÝ¤Ï¡Ö»³±¢ÉÔÆ°»º¥Ê¥Ó¤ò¸«¤¿¡×¤È¸À¤¦¤È¥¹¥à¡¼¥º¤Ç¤¹ - FAX
- --


























