Ãæ¸Å°ì¸Í·ú½»Âð
±ØÆîÄ®¡¡Ãæ¸Å½»Âð
| ²Á³Ê 3,850Ëü±ß ¸ò¾Ä¾õ¶· ÈÎÇäÃæ ¸½¶· ¶õ¼¼Ãæ | ¤³¤Îʪ·ï¤Ë¤Ä¤¤¤ÆÌ䤤¹ç¤ï¤»¤ë |
- ¥ª¡¼¥ëÅŲ½
- ¥·¥¹¥Æ¥à¥¥Ã¥Á¥ó
- ÆüÅö¤¿¤êÎɹ¥
- ´×ÀŽ»ÂðÃÏ
- Ãó¼Ö¾ì£²Âæ°Ê¾å
¼Ì¿¿
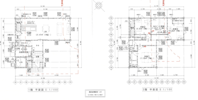
´Ö¼è¤ê¿Þ
ʪ·ï¾ÜºÙ¾ðÊó
3494 since 2025-05-13
¼è¤ê°·¤¤Å¹ÊÞ
³ô¼°²ñ¼Ò¾ï¾¾ÉÔÆ°»º
¢©693-0004¡¡Å纬¸©½Ð±À»ÔÅ϶¶Ä®1212ÈÖÃÏ
[ÌȵöÈÖ¹æ]Å纬¸©Ãλö(3)Âè1248¹æ
¸ø±×¼ÒÃÄË¡¿Í¡¡Á´¹ñÂðÃÏ·úʪ¼è°ú¶ÈÊݾڶ¨²ñ²ñ°÷
¸ø±×¼ÒÃÄË¡¿Í¡¡Å纬¸©ÂðÃÏ·úʪ¼è°ú¶È¶¨²ñ²ñ°÷
Ãæ¹ñÃ϶èÉÔÆ°»º¸øÀµ¼è°ú¶È¶¨²ñ²ñ°÷

- 0853-25-8888
¤´Ï¢Íí¤ÎºÝ¤Ï¡Ö»³±¢ÉÔÆ°»º¥Ê¥Ó¤ò¸«¤¿¡×¤È¸À¤¦¤È¥¹¥à¡¼¥º¤Ç¤¹ - FAX
- 0853-25-8800






















