Ãæ¸Å°ì¸Í·ú½»Âð
¾¾¹¾»ÔÅìÄÅÅÄÄ®¡¡ÇäÅÚÃÏ(²òÂι¹ÃÏÅϤ·)²Ä
| ²Á³Ê 1,150Ëü±ß ¸ò¾Ä¾õ¶· ÈÎÇäÃæ ¸½¶· ¶õ¼¼Ãæ | ¤³¤Îʪ·ï¤Ë¤Ä¤¤¤ÆÌ䤤¹ç¤ï¤»¤ë |
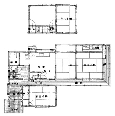
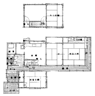
¼Ì¿¿
´Ö¼è¤ê¿Þ
ʪ·ï¾ÜºÙ¾ðÊó
| ʪ·ïÈÖ¹æ | IB0021 | ½êºßÃÏ | ¾¾¹¾»ÔÅìÄÅÅÄÄ® |
|---|---|---|---|
| ¼ïÊÌ | Ãæ¸Å°ì¸Í·ú½»Âð | ¹½Â¤ | ÌÚ¤£²³¬·ú |
| ´Ö¼è¤ê | £µ£Ä£Ë | ·úÃÛǯ·î | 1982ǯ2·î |
| ·úʪÌÌÀÑ | 128.55Ö¡Ê38.89ÄÚ¡Ë | ÅÚÃÏÌÌÀÑ | 291.5Ö¡Ê88.18ÄÚ¡Ë |
| »äÆ»ÌÌÀÑ | ·ú¤Ú¤¤Î¨ | 50¡ó | |
| ÍÆÀÑΨ | 100¡ó | ÀÜÆ»¾õ¶· | À¾Â¦Éý°÷5£í¸øÆ»¤ËÀÜÌÌ |
| Êݾڶ⡦Éß¶â | ¸¢Íø¶â | ||
| ¤½¤Î¾°ì»þ¶â | Ãó¼Ö¾ì | Í(ÎÁ¶â¹þ¤ß) | |
| Ãó¼Ö¾ìÀâÌÀ | ¶è²èÈÖ¹æ | ||
| ¼è°ú·ÁÂÖ | ÇÞ²ð | ÅÚÃϸ¢Íø | ½ê͸¢ |
| ¹ñÅÚË¡ÆÏ½Ð | ÉÔÍ× | ±èÀþ¸òÄÌ | £Ê£Ò |
| °úÅϤ· | ÁêÃÌ | ÃÏÌÜ | ÂðÃÏ |
| ÅԻԷײè | »Ô³¹²½¶è°è | ÍÑÅÓÃϰè | Â裱¼ïÄãÁؽ»µïÀìÍÑÃϰè |
| ÃÏÌÜÀâÌÀ | |||
| °Ý»ý´ÉÍýÈñÅù | |||
| ¼ÚÃÏ´ü´Ö¡¦ÃÏÂå | |||
| ÃÏÀª | |||
| ´ÉÍý·ÁÂÖ¡¢¾ò·ïÅù | |||
| ºÇ´ó±Ø | |||
| ¥Ð¥¹Åù¸òÄ̼êÃÊ | Ʋ¤ÎÁ°¥Ð¥¹Ää¤è¤êÅÌÊâ8ʬ | ||
| ¹»¶è | ÄÅÅľ® | ||
| ¾Ò²ð¥µ¥¤¥È | https://www.houseplanning.jp/001-baibai-001/syousai-baibai-001/8095/8095.html | ||
| ¹¹ð͸ú´ü´Ö | |||
| ´Ö¼è¤êÆâÌõ | |||
| È÷¹Í | ÇäÅÚÃÏ (²òÂι¹ÃÏÅϤ·Çä¼çÉéô) ²Äǽ¤Ç¤¹¡£ ²Á³Ê13225500±ß (ÄÚ15Ëü±ß) |
||
| ʪ·ïÈÖ¹æ | IB0021 | ||
|---|---|---|---|
| ½êºßÃÏ | ¾¾¹¾»ÔÅìÄÅÅÄÄ® | ||
| ¼ïÊÌ | Ãæ¸Å°ì¸Í·ú½»Âð | ||
| ¹½Â¤ | ÌÚ¤£²³¬·ú | ||
| ´Ö¼è¤ê | £µ£Ä£Ë | ||
| ·úÃÛǯ·î | 1982ǯ2·î | ||
| ·úʪÌÌÀÑ | 128.55Ö¡Ê38.89ÄÚ¡Ë | ||
| ÅÚÃÏÌÌÀÑ | 291.5Ö¡Ê88.18ÄÚ¡Ë | ||
| »äÆ»ÌÌÀÑ | |||
| ·ú¤Ú¤¤Î¨ | 50¡ó | ||
| ÍÆÀÑΨ | 100¡ó | ||
| ÀÜÆ»¾õ¶· | À¾Â¦Éý°÷5£í¸øÆ»¤ËÀÜÌÌ | ||
| Êݾڶ⡦Éß¶â | |||
| ¸¢Íø¶â | |||
| ¤½¤Î¾°ì»þ¶â | |||
| Ãó¼Ö¾ì | Í(ÎÁ¶â¹þ¤ß) | ||
| Ãó¼Ö¾ìÀâÌÀ | |||
| ¶è²èÈÖ¹æ | |||
| ¼è°ú·ÁÂÖ | ÇÞ²ð | ||
| ÅÚÃϸ¢Íø | ½ê͸¢ | ||
| ¹ñÅÚË¡ÆÏ½Ð | ÉÔÍ× | ||
| ±èÀþ¸òÄÌ | £Ê£Ò | ||
| °úÅϤ· | ÁêÃÌ | ||
| ÃÏÌÜ | ÂðÃÏ | ||
| ÅԻԷײè | »Ô³¹²½¶è°è | ||
| ÍÑÅÓÃϰè | Â裱¼ïÄãÁؽ»µïÀìÍÑÃϰè | ||
| ÃÏÌÜÀâÌÀ | |||
| °Ý»ý´ÉÍýÈñÅù | |||
| ¼ÚÃÏ´ü´Ö¡¦ÃÏÂå | |||
| ÃÏÀª | |||
| ´ÉÍý·ÁÂÖ¡¢¾ò·ïÅù | |||
| ºÇ´ó±Ø | |||
| ¥Ð¥¹Åù¸òÄ̼êÃÊ | Ʋ¤ÎÁ°¥Ð¥¹Ää¤è¤êÅÌÊâ8ʬ | ||
| ¹»¶è | ÄÅÅľ® | ||
| ¾Ò²ð¥µ¥¤¥È | https://www.houseplanning.jp/001-baibai-001/syousai-baibai-001/8095/8095.html | ||
| ¹¹ð͸ú´ü´Ö | |||
| ´Ö¼è¤êÆâÌõ | |||
| È÷¹Í | ÇäÅÚÃÏ (²òÂι¹ÃÏÅϤ·Çä¼çÉéô) ²Äǽ¤Ç¤¹¡£ ²Á³Ê13225500±ß (ÄÚ15Ëü±ß) |
||
241 since 2025-10-30
¼è¤ê°·¤¤Å¹ÊÞ
³ô¼°²ñ¼Ò¥Ï¥¦¥¹¥×¥é¥ó¥Ë¥ó¥°
¢©683-0067¡¡Ä»¼è¸©ÊƻһÔÅìÄ®327¸ÅÌð¥Ó¥ë1F
[ÌȵöÈÖ¹æ]Ä»¼è¸©Ãλö(£´)Âè1262¹æ
¢£(¸ø¼Ò)Ä»¼è¸©ÂðÃÏ·úʪ¼è°ú¶È¶¨²ñ²ñ°÷
¢£(¸ø¼Ò)Á´¹ñÂðÃÏ·úʪ¼è°ú¶ÈÊݾڶ¨²ñ²ñ°÷
¢£(¸ø¼Ò)À¾ÆüËÜÉÔÆ°»ºÎ®Ä̵¡¹½²ñ°÷
¢£Ãæ¹ñÃ϶èÉÔÆ°»º¸øÀµ¼è°ú¶¨µÄ²ñ²ÃÌÁ

- 0859-35-3211
¤´Ï¢Íí¤ÎºÝ¤Ï¡Ö»³±¢ÉÔÆ°»º¥Ê¥Ó¤ò¸«¤¿¡×¤È¸À¤¦¤È¥¹¥à¡¼¥º¤Ç¤¹ - FAX
- 0859-35-3212


























