| 賃料/共益費 8万円/ 礼金/敷金 無し/3ヶ月 現況 空室中 | この物件について問い合わせる |
- 1階の物件
- 角部屋
- 南向き
- 即入居可
写真
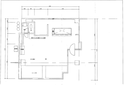
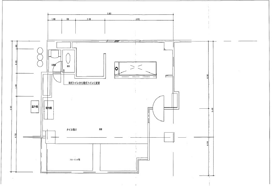
間取り図
物件詳細情報
| 物件番号 | AJ0050 | 所在地 | 松江市千鳥町26-1 |
|---|---|---|---|
| 種別 | 貸し事務所 | 構造 | 鉄筋コンクリート造 |
| 建築年月 | 1979年10月 | 間取り | 無該当 |
| 専有面積 | 73m² | 向き | 南 |
| 建物階数 | 7階建 | 駐車場 | 有(料金別) |
| 駐車料金 | 7,000円 | 所在階数 | 1階部 |
| 取引形態 | 直営 | 仲介料 | |
| 敷き引き | |||
| 保険料 | 事業活動総合保険に加入要 | ||
| 校区 | |||
| 備考 | 【周辺】 松江しんじ湖温泉駅や市役所に近く、また温泉街に立地しているため、宿泊で お越しのお客様の集客も見込める立地です。 【条件】 現況有姿での貸し出しとなります。 ※現況を優先し間取図は参考資料としてご利用下さい 内装・設備の設置や改修工事等の費用は、全て借主様負担となります。 現在設置されている設備(エアコン等)については、そのままご利用頂けます。 ※但し、故障等が発生した場合の対応・費用は全て借主様負担となります。 【賃料】 別途消費税が必要となります。 【駐車場】 有り(@7000円+消費税)※台数要確認 【仲介手数料】 自社物件につき必要ございません。 ※仲介業者様が有る場合は必要となります。 【その他】 連帯保証人の設定及び保証会社へのご加入が必要となります。 その他、詳細はお気軽にお問い合わせ下さい。 |
||
| 物件番号 | AJ0050 |
|---|---|
| 所在地 | 松江市千鳥町26-1 |
| 種別 | 貸し事務所 |
| 構造 | 鉄筋コンクリート造 |
| 建築年月 | 1979年10月 |
| 間取り | 無該当 |
| 専有面積 | 73m² |
| 向き | 南 |
| 建物階数 | 7階建 |
| 駐車場 | 有(料金別) |
| 駐車料金 | 7,000円 |
| 所在階数 | 1階部 |
| 取引形態 | 直営 |
| 仲介料 | |
| 敷き引き | |
| 保険料 | 事業活動総合保険に加入要 |
| 校区 | |
| 備考 | 【周辺】 松江しんじ湖温泉駅や市役所に近く、また温泉街に立地しているため、宿泊で お越しのお客様の集客も見込める立地です。 【条件】 現況有姿での貸し出しとなります。 ※現況を優先し間取図は参考資料としてご利用下さい 内装・設備の設置や改修工事等の費用は、全て借主様負担となります。 現在設置されている設備(エアコン等)については、そのままご利用頂けます。 ※但し、故障等が発生した場合の対応・費用は全て借主様負担となります。 【賃料】 別途消費税が必要となります。 【駐車場】 有り(@7000円+消費税)※台数要確認 【仲介手数料】 自社物件につき必要ございません。 ※仲介業者様が有る場合は必要となります。 【その他】 連帯保証人の設定及び保証会社へのご加入が必要となります。 その他、詳細はお気軽にお問い合わせ下さい。 |
2708 since 2024-02-20
地図
この物件の周辺地図を開く取り扱い店舗
一畑電気鉄道株式会社
〒690-0874 島根県松江市中原町49
[免許番号]島根県知事(15)第109号
公益社団法人全国宅地建物取引業保証協会会員
公益社団法人島根県宅地建物取引業協会会員
一般社団法人全国賃貸不動産管理業協会会員

- 0852-26-6151
ご連絡の際は「山陰不動産ナビを見た」と言うとスムーズです - FAX
- 0852-25-0506













