| 賃料/共益費 0.4万円/ 礼金/敷金 無し/1ヶ月 現況 空室中 | この物件について問い合わせる |
写真
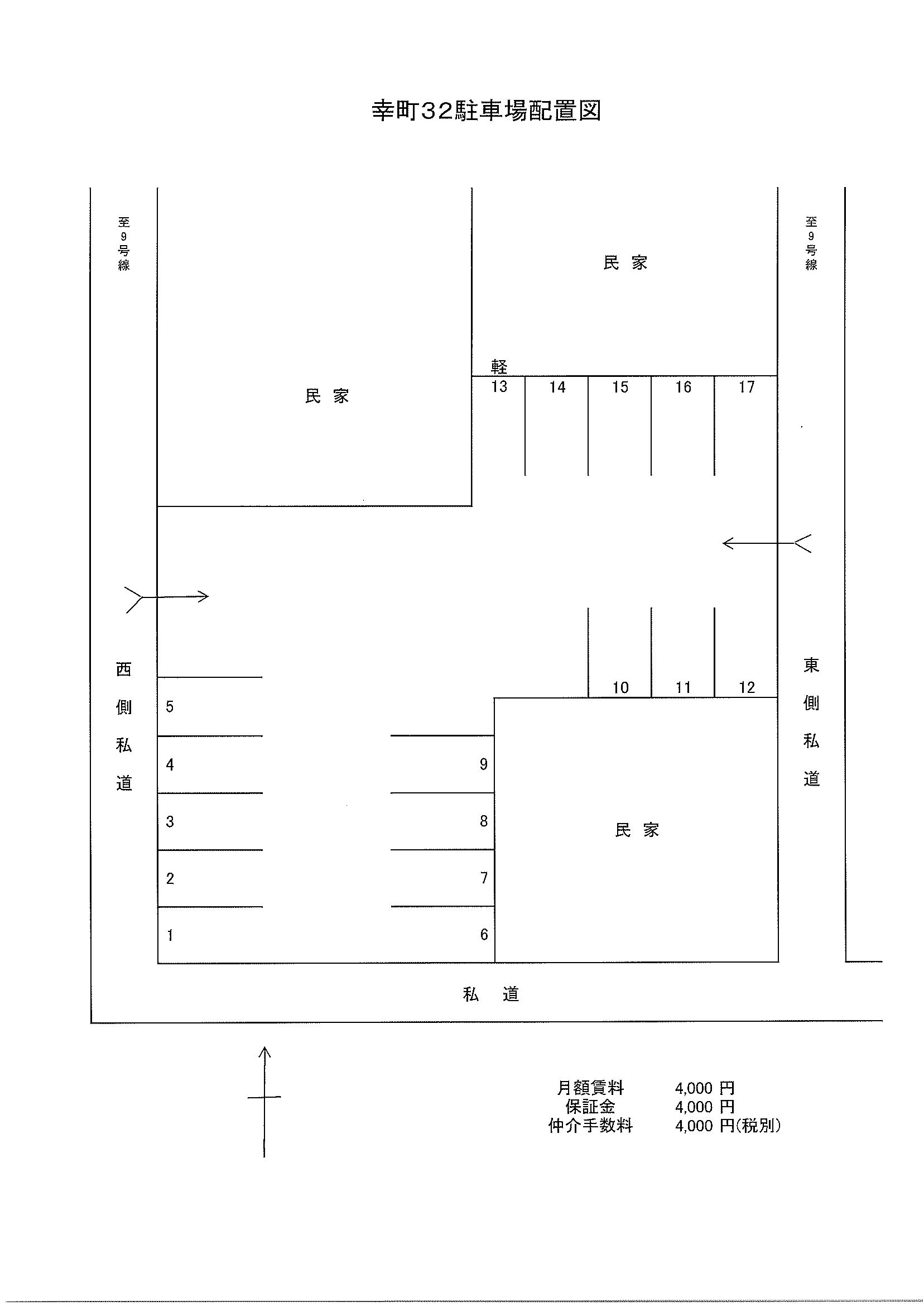
間取り図
物件詳細情報
| 物件番号 | AJ0465 | 所在地 | 松江市幸町 |
|---|---|---|---|
| 種別 | 貸し駐車場 | 構造 | --- |
| 建築年月 | 間取り | 無該当 | |
| 専有面積 | 向き | --- | |
| 建物階数 | --- | 駐車場 | --- |
| 駐車料金 | 所在階数 | --- | |
| 取引形態 | 仲介 | 仲介料 | 4,400円 |
| 敷き引き | |||
| 保険料 | |||
| 校区 | |||
| 備考 | 《周 辺》 9号線袖師交差点から南に入った所にあります 《総台数》 17台 《その他》 申込・契約については、月極駐車場検索アットパーキング経由にていつでも可能です。 専用URL https://www.at-parking.jp/ichibata/index.php?action=detail&area1=shimane&area2=matsue-shi&area3=saiwaimachi |
||
| 物件番号 | AJ0465 |
|---|---|
| 所在地 | 松江市幸町 |
| 種別 | 貸し駐車場 |
| 構造 | --- |
| 建築年月 | |
| 間取り | 無該当 |
| 専有面積 | |
| 向き | --- |
| 建物階数 | --- |
| 駐車場 | --- |
| 駐車料金 | |
| 所在階数 | --- |
| 取引形態 | 仲介 |
| 仲介料 | 4,400円 |
| 敷き引き | |
| 保険料 | |
| 校区 | |
| 備考 | 《周 辺》 9号線袖師交差点から南に入った所にあります 《総台数》 17台 《その他》 申込・契約については、月極駐車場検索アットパーキング経由にていつでも可能です。 専用URL https://www.at-parking.jp/ichibata/index.php?action=detail&area1=shimane&area2=matsue-shi&area3=saiwaimachi |
3512 since 2019-02-28
地図
この物件の周辺地図を開く取り扱い店舗
一畑電気鉄道株式会社
〒690-0874 島根県松江市中原町49
[免許番号]島根県知事(15)第109号
公益社団法人全国宅地建物取引業保証協会会員
公益社団法人島根県宅地建物取引業協会会員
一般社団法人全国賃貸不動産管理業協会会員

- 0852-26-6151
ご連絡の際は「山陰不動産ナビを見た」と言うとスムーズです - FAX
- 0852-25-0506














