| 賃料/共益費 3.5万円/ 礼金/敷金 無し/1ヶ月 現況 空室中 | この物件について問い合わせる |
- 1階の物件
- 南向き
- ガスコンロ
- システムキッチン
- バス・トイレ別
- シャワー
- エアコン
- 給湯
- 室内洗濯機置場
- フローリング
- 駐輪場
- バルコニ−
- 学生可
- 礼金ゼロ
写真
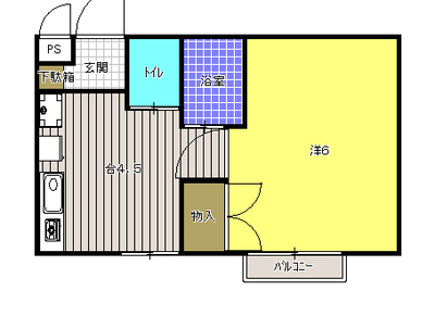
間取り図
物件詳細情報
| 物件番号 | AT0656 | 所在地 | 松江市北堀町138 |
|---|---|---|---|
| 種別 | アパート、コーポ | 構造 | 木造 |
| 建築年月 | 1991年3月 | 間取り | 1K |
| 専有面積 | 26.8m² | 向き | 南 |
| 建物階数 | 2階建 | 駐車場 | 有(料金別) |
| 駐車料金 | 4,500円 | 所在階数 | 1階部 |
| 取引形態 | 仲介 | 仲介料 | 38,500円 |
| 敷き引き | 1ヶ月 | ||
| 保険料 | 16000円(2年) | ||
| 校区 | |||
| 備考 | ★島根県庁まで徒歩10分、松江赤十字病院まで徒歩11分★ ■洋6・DK4.5 ■1口ガスコンロ ■風呂・トイレ別 ■エアコン ■収納 ■下駄箱 ■照明器具 ■室内洗濯機置場 ■屋根付き自転車置場 ※駐車場事務手数料:4950円 ※駐車場は敷地外となります。(徒歩2分)※軽区画・先着順にて都度空要確認 ※鍵交換代:14300円(税込) ※24時間駆付けサポート:月額1100円(税込) ※保証会社要加入 (初回保証料:総賃料の50% 事務手数料:月額総賃料の1.32%/毎月 更新保証料:1万円/毎年) ※物件写真、間取等が現況と異なる(反転・色・設備の種類等)場合、現況を優先します。 【月額賃料等】 家賃:35000円 24H駆付けS:1100円 月次事務手数料:477円 《合計》:36577円 【概算初期費用】 入居月家賃:35000円 入居月24H駆付けS:1100円 敷金:35000円 仲介手数料:38500円 鍵交換代:14300円 初回保証料:18050円 火災保険料:16000円(2年分) 《合計》157950円 |
||
| 物件番号 | AT0656 |
|---|---|
| 所在地 | 松江市北堀町138 |
| 種別 | アパート、コーポ |
| 構造 | 木造 |
| 建築年月 | 1991年3月 |
| 間取り | 1K |
| 専有面積 | 26.8m² |
| 向き | 南 |
| 建物階数 | 2階建 |
| 駐車場 | 有(料金別) |
| 駐車料金 | 4,500円 |
| 所在階数 | 1階部 |
| 取引形態 | 仲介 |
| 仲介料 | 38,500円 |
| 敷き引き | 1ヶ月 |
| 保険料 | 16000円(2年) |
| 校区 | |
| 備考 | ★島根県庁まで徒歩10分、松江赤十字病院まで徒歩11分★ ■洋6・DK4.5 ■1口ガスコンロ ■風呂・トイレ別 ■エアコン ■収納 ■下駄箱 ■照明器具 ■室内洗濯機置場 ■屋根付き自転車置場 ※駐車場事務手数料:4950円 ※駐車場は敷地外となります。(徒歩2分)※軽区画・先着順にて都度空要確認 ※鍵交換代:14300円(税込) ※24時間駆付けサポート:月額1100円(税込) ※保証会社要加入 (初回保証料:総賃料の50% 事務手数料:月額総賃料の1.32%/毎月 更新保証料:1万円/毎年) ※物件写真、間取等が現況と異なる(反転・色・設備の種類等)場合、現況を優先します。 【月額賃料等】 家賃:35000円 24H駆付けS:1100円 月次事務手数料:477円 《合計》:36577円 【概算初期費用】 入居月家賃:35000円 入居月24H駆付けS:1100円 敷金:35000円 仲介手数料:38500円 鍵交換代:14300円 初回保証料:18050円 火災保険料:16000円(2年分) 《合計》157950円 |
1312 since 2025-11-06
地図
この物件の周辺地図を開く取り扱い店舗
株式会社スミトモ
〒690-0825 島根県松江市学園2丁目28-30
[免許番号]島根県知事(3)第1217号
http://www.estate-sumitomo.co.jp/
公益財団法人 全国宅地建物取引業保証協会会員
公益財団法人 島根県宅地建物取引業協会会員
一般社団法人 全国賃貸不動産管理業協会会員

- 0852-24-9144
ご連絡の際は「山陰不動産ナビを見た」と言うとスムーズです - FAX
- 0852-24-9159


























