¥¢¥Ñ¡¼¥È¡¢¥³¡¼¥Ý
¥°¥é¥Æ¥£¥¢¥¹¡¡A¡¡103
| ÄÂÎÁ/¶¦±×Èñ 8.2Ëü±ß/3,000±ß Îé¶â/Éß¶â ̵¤·/̵¤· ¸½¶· ¶õ¼¼ÂÔ¤Á(Æþµï²ÄǽÆü:2026ǯ02·î13Æü) | ¤³¤Îʪ·ï¤Ë¤Ä¤¤¤ÆÌ䤤¹ç¤ï¤»¤ë |
- £±³¬¤Îʪ·ï
- £²³¬°Ê¾å
- ¥¬¥¹¥³¥ó¥í
- ¥³¥ó¥í£²¸ý°Ê¾å
- ¥«¥¦¥ó¥¿¡¼¥¥Ã¥Á¥ó
- ¥Ð¥¹¡¦¥È¥¤¥ìÊÌ
- Àö¾ôÊØºÂ
- ÃÈË¼ÊØºÂ
- Íá¼¼´¥Áç
- Äɤ¤¿æ¤µ¡Ç½
- ¥·¥ã¥ï¡¼
- ¥¨¥¢¥³¥ó
- µëÅò
- ÀöÌÌÂæ
- ¼¼ÆâÀöÂõµ¡ÃÖ¾ì
- ¥Õ¥í¡¼¥ê¥ó¥°
- ¥¦¥©¡¼¥¯¥¤¥ó¥¯¥í¡¼¥¼¥Ã¥È
- ¥á¥¾¥Í¥Ã¥È¥¿¥¤¥×
- Ãó¼Ö£²Âæ²Ä
- ÂðÇۥܥ寥¹
- ¥Ð¥ë¥³¥Ë¡Ý
- TV¥â¥Ë¥¿¡¼¥Õ¥©¥ó
- ¥¤¥ó¥¿¡¼¥Í¥Ã¥È
¼Ì¿¿
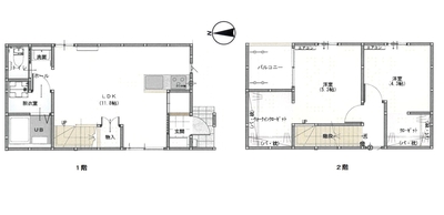
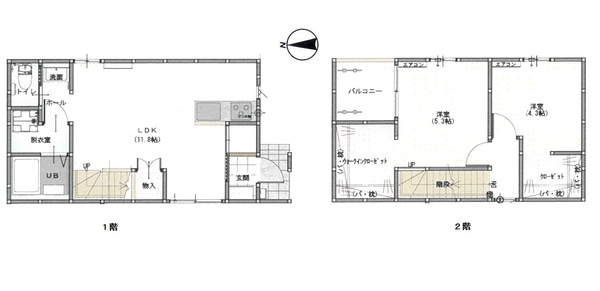
´Ö¼è¤ê¿Þ
ʪ·ï¾ÜºÙ¾ðÊó
| ʪ·ïÈÖ¹æ | AT0962 | ½êºßÃÏ | ¾¾¹¾»Ô¹õÅÄÄ®459-5 |
|---|---|---|---|
| ¼ïÊÌ | ¥¢¥Ñ¡¼¥È¡¢¥³¡¼¥Ý | ¹½Â¤ | ÌÚ¤ |
| ·úÃÛǯ·î | 2023ǯ9·î | ´Ö¼è¤ê | £²£Ì£Ä£Ë |
| ÀìÍÌÌÀÑ | 59.61m² | ¸þ¤ | Æî |
| ·úʪ³¬¿ô | £²³¬·ú | Ãó¼Ö¾ì | Í¡ÊÎÁ¶â¹þ¤ß¡Ë |
| Ãó¼ÖÎÁ¶â | ¡¡¡¡ | ½êºß³¬¿ô | --- |
| ¼è°ú·ÁÂÖ | Ãç²ð | Ãç²ðÎÁ | 90,200±ß |
| Éߤ°ú¤ | |||
| Êݸ±ÎÁ | 20000±ß¡Ê2ǯ´Ö¡Ë | ||
| ¹»¶è | |||
| È÷¹Í | 2023ǯ9·îËö´°À®¡ª¡ª ¢£ÀìÍÌÌÀÑ103¹æ¼¼¡¡59.61Ö¡Ê56.5Ö¡Ü¥¤¥ó¥Ê¡¼¥Ð¥ë¥³¥Ë¡¼3.11Ö¡Ë ¢£Ãó¼Ö¾ì1ÂæÉÕ ¢££²¸ý¥³¥ó¥í¡Ê¥¬¥¹orIH¡ËÀßÃÖ²Äǽ ¢£¥Ú¥¢¥¬¥é¥¹ ¢£Íá¼¼ÃÈ˼´¥Á絡 ¢£¥¤¥ó¥¿¡¼¥Í¥Ã¥È̵ÎÁ ¢£TV¥É¥¢¥Û¥ó ¢£ÂðÇۥܥ寥¹ ¢£¥¨¥¢¥³¥ó£³ÂæÉÕ¡ÊLDK¡¦Íμ¼2Éô²°¡Ë ¢£Äɤ¤Ê²¤µ¡Ç½ÉÕµëÅò ¢¨2ÂæÌÜÃó¼Ö¾ì¡§·î³Û2500±ß¡Ê·Ú¼«Æ°¼Ö¤Î¤ß¡Ë ¢¨2ÂæÌÜÃó¼Ö¾ì»ö̳¼ê¿ôÎÁ¡§2750±ß¡ÊÀǹþ¡Ë ¢¨24»þ´Ö¶îÉÕ¤±¥µ¥Ý¡¼¥È¡§·î³Û1100±ß¡ÊÀǹþ¡Ë ¢¨Âàµî»þ¥Ï¥¦¥¹¥¯¥ê¡¼¥Ë¥ó¥°ÎÁ¶â¼Ú¼çÉéô ¢¨Êݾڲñ¼ÒÍ×²ÃÆþ ¡Ê½é²óÊݾÚÎÁ¡§ÁíÄÂÎÁ¤Î50¡ó¡¡»ö̳¼ê¿ôÎÁ¡§·î³ÛÁíÄÂÎÁ¤Î1.32¡ó¡ÊÀǹþ¡Ë/Ëè·î¡¡¹¹¿·ÊݾÚÎÁ¡§1Ëü±ß/Ëèǯ¡Ë ¢¨¼«Å¾¼ÖÃÖ¾ì¤Ï¤´¤¶¤¤¤Þ¤»¤ó¡£ ¢¨Êª·ï¼Ì¿¿¡¢´Ö¼èÅù¤¬¸½¶·¤È°Û¤Ê¤ë(ȿž¡¦¿§¡¦ÀßÈ÷¤Î¼ïÎàÅù)¾ì¹ç¡¢¸½¶·¤òÍ¥À褷¤Þ¤¹¡£ |
||
| ʪ·ïÈÖ¹æ | AT0962 |
|---|---|
| ½êºßÃÏ | ¾¾¹¾»Ô¹õÅÄÄ®459-5 |
| ¼ïÊÌ | ¥¢¥Ñ¡¼¥È¡¢¥³¡¼¥Ý |
| ¹½Â¤ | ÌÚ¤ |
| ·úÃÛǯ·î | 2023ǯ9·î |
| ´Ö¼è¤ê | £²£Ì£Ä£Ë |
| ÀìÍÌÌÀÑ | 59.61m² |
| ¸þ¤ | Æî |
| ·úʪ³¬¿ô | £²³¬·ú |
| Ãó¼Ö¾ì | Í¡ÊÎÁ¶â¹þ¤ß¡Ë |
| Ãó¼ÖÎÁ¶â | ¡¡¡¡ |
| ½êºß³¬¿ô | --- |
| ¼è°ú·ÁÂÖ | Ãç²ð |
| Ãç²ðÎÁ | 90,200±ß |
| Éߤ°ú¤ | |
| Êݸ±ÎÁ | 20000±ß¡Ê2ǯ´Ö¡Ë |
| ¹»¶è | |
| È÷¹Í | 2023ǯ9·îËö´°À®¡ª¡ª ¢£ÀìÍÌÌÀÑ103¹æ¼¼¡¡59.61Ö¡Ê56.5Ö¡Ü¥¤¥ó¥Ê¡¼¥Ð¥ë¥³¥Ë¡¼3.11Ö¡Ë ¢£Ãó¼Ö¾ì1ÂæÉÕ ¢££²¸ý¥³¥ó¥í¡Ê¥¬¥¹orIH¡ËÀßÃÖ²Äǽ ¢£¥Ú¥¢¥¬¥é¥¹ ¢£Íá¼¼ÃÈ˼´¥Á絡 ¢£¥¤¥ó¥¿¡¼¥Í¥Ã¥È̵ÎÁ ¢£TV¥É¥¢¥Û¥ó ¢£ÂðÇۥܥ寥¹ ¢£¥¨¥¢¥³¥ó£³ÂæÉÕ¡ÊLDK¡¦Íμ¼2Éô²°¡Ë ¢£Äɤ¤Ê²¤µ¡Ç½ÉÕµëÅò ¢¨2ÂæÌÜÃó¼Ö¾ì¡§·î³Û2500±ß¡Ê·Ú¼«Æ°¼Ö¤Î¤ß¡Ë ¢¨2ÂæÌÜÃó¼Ö¾ì»ö̳¼ê¿ôÎÁ¡§2750±ß¡ÊÀǹþ¡Ë ¢¨24»þ´Ö¶îÉÕ¤±¥µ¥Ý¡¼¥È¡§·î³Û1100±ß¡ÊÀǹþ¡Ë ¢¨Âàµî»þ¥Ï¥¦¥¹¥¯¥ê¡¼¥Ë¥ó¥°ÎÁ¶â¼Ú¼çÉéô ¢¨Êݾڲñ¼ÒÍ×²ÃÆþ ¡Ê½é²óÊݾÚÎÁ¡§ÁíÄÂÎÁ¤Î50¡ó¡¡»ö̳¼ê¿ôÎÁ¡§·î³ÛÁíÄÂÎÁ¤Î1.32¡ó¡ÊÀǹþ¡Ë/Ëè·î¡¡¹¹¿·ÊݾÚÎÁ¡§1Ëü±ß/Ëèǯ¡Ë ¢¨¼«Å¾¼ÖÃÖ¾ì¤Ï¤´¤¶¤¤¤Þ¤»¤ó¡£ ¢¨Êª·ï¼Ì¿¿¡¢´Ö¼èÅù¤¬¸½¶·¤È°Û¤Ê¤ë(ȿž¡¦¿§¡¦ÀßÈ÷¤Î¼ïÎàÅù)¾ì¹ç¡¢¸½¶·¤òÍ¥À褷¤Þ¤¹¡£ |
4859 since 2023-10-31
¼è¤ê°·¤¤Å¹ÊÞ
³ô¼°²ñ¼Ò¥¹¥ß¥È¥â
¢©690-0825¡¡Å纬¸©¾¾¹¾»Ô³Ø±à2ÃúÌÜ28-30
[ÌȵöÈÖ¹æ]Å纬¸©Ãλö¡Ê3¡ËÂè1217¹æ
http://www.estate-sumitomo.co.jp/
¸ø±×ºâÃÄË¡¿Í¡¡Á´¹ñÂðÃÏ·úʪ¼è°ú¶ÈÊݾڶ¨²ñ²ñ°÷
¸ø±×ºâÃÄË¡¿Í¡¡Å纬¸©ÂðÃÏ·úʪ¼è°ú¶È¶¨²ñ²ñ°÷
°ìÈ̼ÒÃÄË¡¿Í¡¡Á´¹ñÄÂÂßÉÔÆ°»º´ÉÍý¶È¶¨²ñ²ñ°÷

- 0852-24-9144
¤´Ï¢Íí¤ÎºÝ¤Ï¡Ö»³±¢ÉÔÆ°»º¥Ê¥Ó¤ò¸«¤¿¡×¤È¸À¤¦¤È¥¹¥à¡¼¥º¤Ç¤¹ - FAX
- 0852-24-9159


























