| 賃料/共益費 10.5万円/11,000円 礼金/敷金 無し/3ヶ月 現況 商談中 | この物件について問い合わせる |
- 2階以上
写真
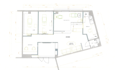
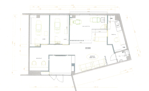
間取り図
物件詳細情報
| 物件番号 | AV0702 | 所在地 | 松江市西川津町4271 |
|---|---|---|---|
| 種別 | 貸し店舗 | 構造 | 鉄骨造 |
| 建築年月 | 2004年11月 | 間取り | その他 |
| 専有面積 | 70m² | 向き | 西 |
| 建物階数 | 2階建 | 駐車場 | 有(料金別) |
| 駐車料金 | 5,500円 | 所在階数 | 2階部 |
| 取引形態 | 仲介 | 仲介料 | 115,500円 |
| 敷き引き | |||
| 保険料 | 要加入 | ||
| 校区 | |||
| 備考 | 約20坪の店舗のご紹介です! 同施設内にピラティススタジオ、美容室、洋菓子屋さん、イベント会社等のお店が入っています。 ※現在営業中のため、一部の写真のみ掲載しています。 ※賃料等に別途消費税がかかります。 ・警備費月額5000円(税抜) ・共益費内訳:お客様用駐車場、可燃物、不燃物のゴミ処理代、共用部消耗品。 ・従業員様用の駐車場代金は共益費に含まれておりません。 1台5000円(税抜)をご負担いただきます。3台目以降3000円(税抜)です。 ご案内をご希望の際は事前にご予約をお願い致します。 |
||
| 物件番号 | AV0702 |
|---|---|
| 所在地 | 松江市西川津町4271 |
| 種別 | 貸し店舗 |
| 構造 | 鉄骨造 |
| 建築年月 | 2004年11月 |
| 間取り | その他 |
| 専有面積 | 70m² |
| 向き | 西 |
| 建物階数 | 2階建 |
| 駐車場 | 有(料金別) |
| 駐車料金 | 5,500円 |
| 所在階数 | 2階部 |
| 取引形態 | 仲介 |
| 仲介料 | 115,500円 |
| 敷き引き | |
| 保険料 | 要加入 |
| 校区 | |
| 備考 | 約20坪の店舗のご紹介です! 同施設内にピラティススタジオ、美容室、洋菓子屋さん、イベント会社等のお店が入っています。 ※現在営業中のため、一部の写真のみ掲載しています。 ※賃料等に別途消費税がかかります。 ・警備費月額5000円(税抜) ・共益費内訳:お客様用駐車場、可燃物、不燃物のゴミ処理代、共用部消耗品。 ・従業員様用の駐車場代金は共益費に含まれておりません。 1台5000円(税抜)をご負担いただきます。3台目以降3000円(税抜)です。 ご案内をご希望の際は事前にご予約をお願い致します。 |
440 since 2026-01-10
地図
この物件の周辺地図を開く取り扱い店舗
株式会社サカタ
〒690-0825 島根県松江市学園1丁目22-5
[免許番号]国土交通大臣(1)第10518号
公益社団法人 全国宅地建物取引業保証協会会員
公益社団法人 島根県宅地建物取引業協会会員

- 0852-24-1687
ご連絡の際は「山陰不動産ナビを見た」と言うとスムーズです - FAX
- 0852-33-7395























