| 賃料/共益費 3.8万円/ 礼金/敷金 無し/1ヶ月 現況 商談中 | この物件について問い合わせる |
- 2階以上
- 南向き
- バス・トイレ別
- エアコン
- 給湯
- フローリング
- 駐輪場
- バルコニ−
- インターネット
- 学生可
写真
物件詳細情報
| 物件番号 | BG0017 | 所在地 | 松江市西川津町 |
|---|---|---|---|
| 種別 | 賃貸マンション | 構造 | 鉄骨造 |
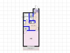
| 建築年月 | 1996年3月 | 間取り | 1K |
| 専有面積 | 28.15m² | 向き | 南 |
| 建物階数 | 4階建 | 駐車場 | 有(料金別) |
| 駐車料金 | 3,000円 | 所在階数 | 3階部 |
| 取引形態 | 仲介 | 仲介料 | 41,800円 |
| 敷き引き | 1ヶ月 | ||
| 保険料 | 2年間18000円 | ||
| 校区 | |||
| 備考 | ☆高速インタ−ネット無料 【間取り】洋間8帖 K3 【最寄施設】島根大学まで徒歩10分 ウェルネス(ドラックストア)徒歩2分 コンビニまで徒歩9分 保証会社加入要 |
||
| 物件番号 | BG0017 |
|---|---|
| 所在地 | 松江市西川津町 |
| 種別 | 賃貸マンション |
| 構造 | 鉄骨造 |
| 建築年月 | 1996年3月 |
| 間取り | 1K |
| 専有面積 | 28.15m² |
| 向き | 南 |
| 建物階数 | 4階建 |
| 駐車場 | 有(料金別) |
| 駐車料金 | 3,000円 |
| 所在階数 | 3階部 |
| 取引形態 | 仲介 |
| 仲介料 | 41,800円 |
| 敷き引き | 1ヶ月 |
| 保険料 | 2年間18000円 |
| 校区 | |
| 備考 | ☆高速インタ−ネット無料 【間取り】洋間8帖 K3 【最寄施設】島根大学まで徒歩10分 ウェルネス(ドラックストア)徒歩2分 コンビニまで徒歩9分 保証会社加入要 |
167 since 2026-01-28
地図
この物件の周辺地図を開く取り扱い店舗
(株)ラシーヌ不動産
〒690-0825 島根県松江市学園2丁目1-5 エピナールM-1F
[免許番号]島根県知事(2)第1302号
定休日 日曜日・祝日・土曜日(第2・第4)
所属団体(公社)全日本不動産協会
保証協会(公社)不動産保証協会

- 0852-26-5570
ご連絡の際は「山陰不動産ナビを見た」と言うとスムーズです - FAX
- 0852-28-8934
























