| 賃料/共益費 4.9万円/ 礼金/敷金 無し/2ヶ月 現況 空室中 | この物件について問い合わせる |
- バス・トイレ別
- シャワー
- エアコン
- 洗面台
- メゾネットタイプ
- 駐車2台可
- ルームシェア可
写真
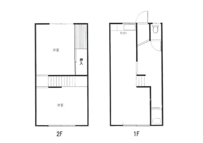
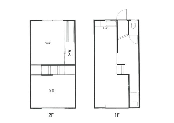
間取り図
物件詳細情報
| 物件番号 | BM0236 | 所在地 | 松江市西川津町2126-2 |
|---|---|---|---|
| 種別 | アパート、コーポ | 構造 | 鉄筋コンクリート造 |
| 建築年月 | 1973年10月 | 間取り | 2LDK |
| 専有面積 | 51.84m² | 向き | 東 |
| 建物階数 | 2階建 | 駐車場 | 有(料金込み) |
| 駐車料金 | 所在階数 | 2階部 | |
| 取引形態 | 仲介 | 仲介料 | 53,900円 |
| 敷き引き | |||
| 保険料 | 要加入 | ||
| 校区 | 川津小 第二中学校 | ||
| 備考 | ★おすすめポイント(^^) ・2LDKにリフォームしました!!メゾネットタイプで、1FはLDK、2Fは洋室二部屋です! ・バス停近く、スーパー、コンビニも車ならすぐ!天気が良ければ歩いていくのもいいですね^^ ※退居時にハウスクリーニング費用/エアコンクリーニング費用をご負担頂きます。 ★物件概要 ・間取り:2LDK(LDK/洋6/洋6) ・ボックス駐車場、2台目駐車場要確認 ※ボックス駐車場については車の大きさ、高さについてご確認ください。 ・鍵交換代不要、更新料不要(保証会社更新料は必要となります) ・インターネットマンションタイプ対応(利用料別途入居者負担) ★家賃保証要加入 ・保証会社:日本セーフティー(株) ・更新料 :800円/月 ・家賃振替手数料:440円/月 ・初回保証料 ⇒【連帯保証人ありプラン】 総賃料の40%(最低保証料16000円) ⇒【連帯保証人なしプラン】 総賃料の50%(最低保証料20000円) ⇒学生様プランを別途ご用意しております。 ⇒法人様プランは別途お問い合わせください。 ★物件写真、間取りの反転等、現況と異なる場合は現況を優先します。 |
||
| 物件番号 | BM0236 |
|---|---|
| 所在地 | 松江市西川津町2126-2 |
| 種別 | アパート、コーポ |
| 構造 | 鉄筋コンクリート造 |
| 建築年月 | 1973年10月 |
| 間取り | 2LDK |
| 専有面積 | 51.84m² |
| 向き | 東 |
| 建物階数 | 2階建 |
| 駐車場 | 有(料金込み) |
| 駐車料金 | |
| 所在階数 | 2階部 |
| 取引形態 | 仲介 |
| 仲介料 | 53,900円 |
| 敷き引き | |
| 保険料 | 要加入 |
| 校区 | 川津小 第二中学校 |
| 備考 | ★おすすめポイント(^^) ・2LDKにリフォームしました!!メゾネットタイプで、1FはLDK、2Fは洋室二部屋です! ・バス停近く、スーパー、コンビニも車ならすぐ!天気が良ければ歩いていくのもいいですね^^ ※退居時にハウスクリーニング費用/エアコンクリーニング費用をご負担頂きます。 ★物件概要 ・間取り:2LDK(LDK/洋6/洋6) ・ボックス駐車場、2台目駐車場要確認 ※ボックス駐車場については車の大きさ、高さについてご確認ください。 ・鍵交換代不要、更新料不要(保証会社更新料は必要となります) ・インターネットマンションタイプ対応(利用料別途入居者負担) ★家賃保証要加入 ・保証会社:日本セーフティー(株) ・更新料 :800円/月 ・家賃振替手数料:440円/月 ・初回保証料 ⇒【連帯保証人ありプラン】 総賃料の40%(最低保証料16000円) ⇒【連帯保証人なしプラン】 総賃料の50%(最低保証料20000円) ⇒学生様プランを別途ご用意しております。 ⇒法人様プランは別途お問い合わせください。 ★物件写真、間取りの反転等、現況と異なる場合は現況を優先します。 |
2199 since 2025-08-05
地図
この物件の周辺地図を開く取り扱い店舗
島根県農業協同組合 くにびき地区本部
〒690-0823 島根県松江市西川津町1635−1
[免許番号]島根県知事(3)1243号
営業時間 8:30〜17:00
休業日 土日祝日
公益社団法人 全国宅地建物取引業保証協会会員
公益社団法人 島根県宅地建物取引業協会会員

- 0852-32-3111
ご連絡の際は「山陰不動産ナビを見た」と言うとスムーズです - FAX
- 0852-32-7783

















