| 賃料/共益費 0.3万円/ 礼金/敷金 無し/無し 現況 空室中 | この物件について問い合わせる |
写真
間取り図
物件詳細情報
| 物件番号 | BV0804 | 所在地 | 浜田市日脚町971番地 |
|---|---|---|---|
| 種別 | 貸し駐車場 | 構造 | --- |
| 建築年月 | 間取り | 無該当 | |
| 専有面積 | 向き | --- | |
| 建物階数 | --- | 駐車場 | --- |
| 駐車料金 | 所在階数 | --- | |
| 取引形態 | 仲介 | 仲介料 | 3,000円 |
| 敷き引き | |||
| 保険料 | |||
| 校区 | |||
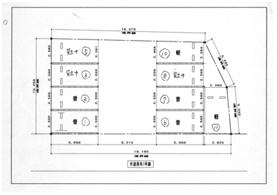
| 備考 | 【 2・11番募集中です!!】 1〜7番 幅2.5m、奥行5m(普通車・軽自動車) 10番 幅2.4m、奥行5m(軽専用) 11番 幅2.3m、奥行5m(軽専用) 2台目駐車場などお探しの方におすすめです! ※2番・・・令和8年2月9日〜 -------------------------------------------------------------------------------- 有限会社 スエタ不動産 --------------------------------------------------------------------------------- ※図面・写真・情報が現況と異なる場合は現況を優先致します。 |
||
| 物件番号 | BV0804 |
|---|---|
| 所在地 | 浜田市日脚町971番地 |
| 種別 | 貸し駐車場 |
| 構造 | --- |
| 建築年月 | |
| 間取り | 無該当 |
| 専有面積 | |
| 向き | --- |
| 建物階数 | --- |
| 駐車場 | --- |
| 駐車料金 | |
| 所在階数 | --- |
| 取引形態 | 仲介 |
| 仲介料 | 3,000円 |
| 敷き引き | |
| 保険料 | |
| 校区 | |
| 備考 | 【 2・11番募集中です!!】 1〜7番 幅2.5m、奥行5m(普通車・軽自動車) 10番 幅2.4m、奥行5m(軽専用) 11番 幅2.3m、奥行5m(軽専用) 2台目駐車場などお探しの方におすすめです! ※2番・・・令和8年2月9日〜 -------------------------------------------------------------------------------- 有限会社 スエタ不動産 --------------------------------------------------------------------------------- ※図面・写真・情報が現況と異なる場合は現況を優先致します。 |
3887 since 2022-06-17
地図
この物件の周辺地図を開く取り扱い店舗
有限会社スエタ不動産
〒697-0027 島根県浜田市殿町83番地194 スエタRビル1F
[免許番号]島根県知事(6)第951号
【URL】 http://sueta-fudousan.jp/
【営業時間】平日9:00〜17:30
【定休日】 土・日・祝日
【駐車場】 建物横のお客様駐車場をご利用くださいませ。
【お問合せ】公式LINE⇒@819shont
【加盟団体】公益社団法人 全国宅地建物取引業保証協会
公益社団法人 島根県宅地建物取引業協会

- 0855-24-2030
ご連絡の際は「山陰不動産ナビを見た」と言うとスムーズです - FAX
- 0855-24-2031















