¥¢¥Ñ¡¼¥È¡¢¥³¡¼¥Ý
£Î£Å£×¡¡£Î£Ë¥Ï¥¤¥Ä¶¡¼201¹æ¼¼ ¡¡¸÷¥¤¥ó¥¿¡¼¥Í¥Ã¥È̵ÎÁ
| ÄÂÎÁ/¶¦±×Èñ 3.8Ëü±ß/¡¡¡¡ Îé¶â/Éß¶â ̵¤·/£±¥ö·î ¸½¶· ¶õ¼¼ÂÔ¤Á(Æþµï²ÄǽÆü:2026ǯ03·î20Æü) | ¤³¤Îʪ·ï¤Ë¤Ä¤¤¤ÆÌ䤤¹ç¤ï¤»¤ë |
- £²³¬°Ê¾å
- £É£È¥³¥ó¥í
- ¥Ð¥¹¡¦¥È¥¤¥ìÊÌ
- Àö¾ôÊØºÂ
- ¥·¥ã¥ï¡¼
- ¥¨¥¢¥³¥ó
- µëÅò
- ¼¼ÆâÀöÂõµ¡ÃÖ¾ì
- ¥ª¡¼¥ëÅŲ½
- ¥Õ¥í¡¼¥ê¥ó¥°
- ¥¯¥í¡Ý¥¼¥Ã¥È
- ÃóÎØ¾ì
- ¥Ð¥ë¥³¥Ë¡Ý
- TV¥â¥Ë¥¿¡¼¥Õ¥©¥ó
- ¥±¡¼¥Ö¥ë¥Æ¥ì¥Ó
- £Â£Ó¥¢¥ó¥Æ¥Ê
- £Ã£Ó¥¢¥ó¥Æ¥Ê
- ³ØÀ¸²Ä
- Îé¶â¥¼¥í
¼Ì¿¿
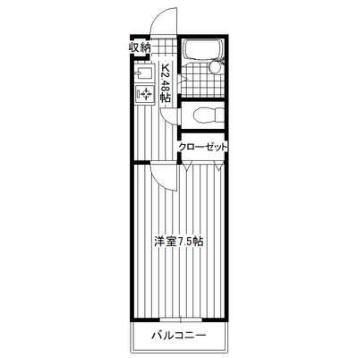
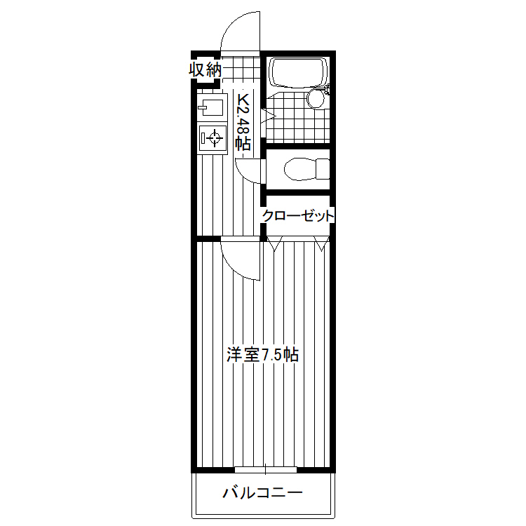
´Ö¼è¤ê¿Þ
ʪ·ï¾ÜºÙ¾ðÊó
| ʪ·ïÈÖ¹æ | CA0510 | ½êºßÃÏ | ¾¾¹¾»Ô½ÕÆüÄ®£¶£°£¹ÈÖÃÏ1 |
|---|---|---|---|
| ¼ïÊÌ | ¥¢¥Ñ¡¼¥È¡¢¥³¡¼¥Ý | ¹½Â¤ | ÌÚ¤ |
| ·úÃÛǯ·î | 1995ǯ2·î | ´Ö¼è¤ê | £±£Ë |
| ÀìÍÌÌÀÑ | 24m² | ¸þ¤ | Åì |
| ·úʪ³¬¿ô | £²³¬·ú | Ãó¼Ö¾ì | Í¡ÊÎÁ¶âÊÌ¡Ë |
| Ãó¼ÖÎÁ¶â | ¡¡¡¡ | ½êºß³¬¿ô | £²³¬Éô |
| ¼è°ú·ÁÂÖ | Ãç²ð | Ãç²ðÎÁ | 41,800±ß |
| Éߤ°ú¤ | |||
| Êݸ±ÎÁ | £±£¸¡¤£°£°£°±ß¡¿2ǯ·ÀÌó¤Î¾ì¹ç | ||
| ¹»¶è | |||
| È÷¹Í | ¡ùÉ߶⣱¥ö·îʪ·ï¡ù ¾ëËÌÀ¾Ä̤ê¤ËÌ̤·¡¢ÍøÊØÀÎɹ¥¡£ ¥¹¡¼¥Ñ¡¼(¤ß¤·¤Þ¤ä½ÕÆüŹ)¤Þ¤ÇÌó250£í ¥³¥ó¥Ó¥Ë(¥í¡¼¥½¥ó½ÕÆüŹ)¤Þ¤ÇÌó100£í ¥Û¡¼¥à¥»¥ó¥¿¡¼(¥¤¥Ê¥¤½ÕÆüŹ)¤Þ¤ÇÌó150£í ¶ä¹Ô(»³±¢¹çƱ¶ä¹Ô¡¡Ë¡µÈ½ÐÄ¥½ê)¤Þ¤ÇÌó300£í ¥ª¡¼¥ëÅŲ½½»Âð¡£ £Ã£Á£Ô£Ö»ëİÎÁ̵ÎÁ ¥¦¥©¥·¥å¥ì¥Ã¥È¡¦¥Ó¥ë¥È¥¤¥ó£É£È¥Ò¡¼¥¿¡¼ÀßÃÖºÑ¤ß ¡ù£Î£Ô£Ô¸÷¤¬ÌµÎÁ¤Ç»È¤¤ÊüÂê¡¡ Æþµï¸åÌÌÅݤʤª¼ê³¤ÉÔÍפǤª°ú±Û¤·ÅöÆü¤«¤é¥¤¥ó¥¿¡¼¥Í¥Ã¥È¤¬»ÈÍѽÐÍè¤Þ¤¹¡£¡¡ ¥ë¡¼¥¿¡¼¤òÍѰդµ¤ì¤ë¤³¤È¤ÇWi-Fi¤âÍøÍѲÄǽ¤Ç¤¹¡£ ¢¨´Ö¼è¤ê¿Þ¤Ïȿž¤Î¾ì¹çͤꡣ ¢¨ÄÂÂßÊݾڲñ¼Ò²ÃÆþÍס¡·ÀÌó»þ¤ËÊݾÚÎÁ(ÄÂÎÁ¤Î77¡ó¡Ü1430±ß¼ê¿ôÎÁ)¤¬¤«¤«¤ê¤Þ¤¹¡£(£Ã£É£ÚÄÂÂßÊÝ¾Ú¡Ë ¡¡³ØÀ¸¥×¥é¥ó¤ÏÊݾÚÎÁ¡Ê10000±ß 1430±ß¼ê¿ôÎÁ¡Ë¤¬¤«¤«¤ê¤Þ¤¹¡£ ¡¡¡ãÊݾڷÀÌó¤Î¹¹¿·ÎÁ2000±ß¤Ç¤¹¡ä |
||
| ʪ·ïÈÖ¹æ | CA0510 |
|---|---|
| ½êºßÃÏ | ¾¾¹¾»Ô½ÕÆüÄ®£¶£°£¹ÈÖÃÏ1 |
| ¼ïÊÌ | ¥¢¥Ñ¡¼¥È¡¢¥³¡¼¥Ý |
| ¹½Â¤ | ÌÚ¤ |
| ·úÃÛǯ·î | 1995ǯ2·î |
| ´Ö¼è¤ê | £±£Ë |
| ÀìÍÌÌÀÑ | 24m² |
| ¸þ¤ | Åì |
| ·úʪ³¬¿ô | £²³¬·ú |
| Ãó¼Ö¾ì | Í¡ÊÎÁ¶âÊÌ¡Ë |
| Ãó¼ÖÎÁ¶â | ¡¡¡¡ |
| ½êºß³¬¿ô | £²³¬Éô |
| ¼è°ú·ÁÂÖ | Ãç²ð |
| Ãç²ðÎÁ | 41,800±ß |
| Éߤ°ú¤ | |
| Êݸ±ÎÁ | £±£¸¡¤£°£°£°±ß¡¿2ǯ·ÀÌó¤Î¾ì¹ç |
| ¹»¶è | |
| È÷¹Í | ¡ùÉ߶⣱¥ö·îʪ·ï¡ù ¾ëËÌÀ¾Ä̤ê¤ËÌ̤·¡¢ÍøÊØÀÎɹ¥¡£ ¥¹¡¼¥Ñ¡¼(¤ß¤·¤Þ¤ä½ÕÆüŹ)¤Þ¤ÇÌó250£í ¥³¥ó¥Ó¥Ë(¥í¡¼¥½¥ó½ÕÆüŹ)¤Þ¤ÇÌó100£í ¥Û¡¼¥à¥»¥ó¥¿¡¼(¥¤¥Ê¥¤½ÕÆüŹ)¤Þ¤ÇÌó150£í ¶ä¹Ô(»³±¢¹çƱ¶ä¹Ô¡¡Ë¡µÈ½ÐÄ¥½ê)¤Þ¤ÇÌó300£í ¥ª¡¼¥ëÅŲ½½»Âð¡£ £Ã£Á£Ô£Ö»ëİÎÁ̵ÎÁ ¥¦¥©¥·¥å¥ì¥Ã¥È¡¦¥Ó¥ë¥È¥¤¥ó£É£È¥Ò¡¼¥¿¡¼ÀßÃÖºÑ¤ß ¡ù£Î£Ô£Ô¸÷¤¬ÌµÎÁ¤Ç»È¤¤ÊüÂê¡¡ Æþµï¸åÌÌÅݤʤª¼ê³¤ÉÔÍפǤª°ú±Û¤·ÅöÆü¤«¤é¥¤¥ó¥¿¡¼¥Í¥Ã¥È¤¬»ÈÍѽÐÍè¤Þ¤¹¡£¡¡ ¥ë¡¼¥¿¡¼¤òÍѰդµ¤ì¤ë¤³¤È¤ÇWi-Fi¤âÍøÍѲÄǽ¤Ç¤¹¡£ ¢¨´Ö¼è¤ê¿Þ¤Ïȿž¤Î¾ì¹çͤꡣ ¢¨ÄÂÂßÊݾڲñ¼Ò²ÃÆþÍס¡·ÀÌó»þ¤ËÊݾÚÎÁ(ÄÂÎÁ¤Î77¡ó¡Ü1430±ß¼ê¿ôÎÁ)¤¬¤«¤«¤ê¤Þ¤¹¡£(£Ã£É£ÚÄÂÂßÊÝ¾Ú¡Ë ¡¡³ØÀ¸¥×¥é¥ó¤ÏÊݾÚÎÁ¡Ê10000±ß 1430±ß¼ê¿ôÎÁ¡Ë¤¬¤«¤«¤ê¤Þ¤¹¡£ ¡¡¡ãÊݾڷÀÌó¤Î¹¹¿·ÎÁ2000±ß¤Ç¤¹¡ä |
1407 since 2021-08-03
¼è¤ê°·¤¤Å¹ÊÞ
͸²ñ¼Ò»°ÏÂÉÔÆ°»º
¢©690-0855¡¡Å纬¸©¾¾¹¾»ÔÉͺ´ÅÄÄ®739-2
[ÌȵöÈÖ¹æ]Å纬¸©Ãλö¡Ê11¡ËÂè523¹æ
¸ø±×¼ÒÃÄË¡¿Í¡¡Á´¹ñÂðÃÏ·úʪ¼è°ú¶ÈÊݾڶ¨²ñ²ñ°÷
¸ø±×¼ÒÃÄË¡¿Í¡¡Å纬¸©ÂðÃÏ·úʪ¼è°ú¶È¶¨²ñ²ñ°÷
Ãæ¹ñÃ϶èÉÔÆ°»º¸øÀµ¼è°ú¶¨µÄ²ñ²ñ°÷
°ìÈ̼ÒÃÄË¡¿Í¡¡Á´¹ñÄÂÂßÉÔÆ°»º´ÉÍý¶È¶¨²ñ²ñ°÷
Á´¹ñÄÂÂߥӥ¸¥Í¥¹¶¨²ñ²ñ°÷

- 0852-36-8844
¤´Ï¢Íí¤ÎºÝ¤Ï¡Ö»³±¢ÉÔÆ°»º¥Ê¥Ó¤ò¸«¤¿¡×¤È¸À¤¦¤È¥¹¥à¡¼¥º¤Ç¤¹ - FAX
- 0852-36-8804





















