| 賃料/共益費 5万円/2,000円 礼金/敷金 無し/1ヶ月 現況 空室中 | この物件について問い合わせる |
- 1階の物件
- ガスコンロ
- コンロ2口以上
- バス・トイレ別
- 浴室乾燥
- シャワー
- エアコン
- 給湯
- 洗面台
- 室内洗濯機置場
- フローリング
- 駐車2台可
- 駐輪場
- 宅配ボックス
- バルコニ−
- TVモニターフォン
- インターネット
- 即入居可
- 礼金ゼロ
写真
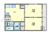
間取り図
物件詳細情報
| 物件番号 | CC0241 | 所在地 | 松江市東津田町1700−2 |
|---|---|---|---|
| 種別 | アパート、コーポ | 構造 | 鉄骨造 |
| 建築年月 | 1995年11月 | 間取り | 2DK |
| 専有面積 | 42m² | 向き | 南東 |
| 建物階数 | 2階建 | 駐車場 | 有(料金込み) |
| 駐車料金 | 所在階数 | 1階部 | |
| 取引形態 | 仲介 | 仲介料 | 55,000円 |
| 敷き引き | |||
| 保険料 | 要加入 | ||
| 校区 | 松江市立津田小学校 | ||
| 備考 | 新生活応援キャンペーン開催中♪ 入居月の家賃がなんと1万円!! インターネット付きの駐車場1台分は家賃に含まれています! ※2台目は月額3千円で駐車可能です 照明器具・ガスコンロ(ビルトイン3口)設置済み 共用部には宅配ボックスもあります! 連帯保証人・家賃保証会社どちらでも可 ※家賃保証会社を通す場合、審査・所定の費用が発生いたします。 内覧可能ですので、ご連絡お待ちしております。 |
||
| 物件番号 | CC0241 |
|---|---|
| 所在地 | 松江市東津田町1700−2 |
| 種別 | アパート、コーポ |
| 構造 | 鉄骨造 |
| 建築年月 | 1995年11月 |
| 間取り | 2DK |
| 専有面積 | 42m² |
| 向き | 南東 |
| 建物階数 | 2階建 |
| 駐車場 | 有(料金込み) |
| 駐車料金 | |
| 所在階数 | 1階部 |
| 取引形態 | 仲介 |
| 仲介料 | 55,000円 |
| 敷き引き | |
| 保険料 | 要加入 |
| 校区 | 松江市立津田小学校 |
| 備考 | 新生活応援キャンペーン開催中♪ 入居月の家賃がなんと1万円!! インターネット付きの駐車場1台分は家賃に含まれています! ※2台目は月額3千円で駐車可能です 照明器具・ガスコンロ(ビルトイン3口)設置済み 共用部には宅配ボックスもあります! 連帯保証人・家賃保証会社どちらでも可 ※家賃保証会社を通す場合、審査・所定の費用が発生いたします。 内覧可能ですので、ご連絡お待ちしております。 |
412 since 2026-02-26
地図
この物件の周辺地図を開く取り扱い店舗
けやき不動産
〒690-0015 島根県松江市上乃木5丁目13-17
[免許番号]島根県知事(4)第1082号
営業時間
平日 9:00〜18:00
土・日祝祭日 9:00〜17:00
定休日
毎週 水曜日 第2火曜日
〜美しい緑に抱かれ
心地よい暮らしを始めよう〜
所属団体
公益法人 島 根 県 宅 地 建 物 取 引 業 協 会
公益法人 全国宅地建物取引業保障協会島根県本部
インボイス登録番号
T5810707406221

- 0852-25-5261
ご連絡の際は「山陰不動産ナビを見た」と言うとスムーズです - FAX
- 0852-24-6066


























