| 賃料/共益費 6.5万円/ 礼金/敷金 無し/1ヶ月 現況 空室待ち(入居可能日:2026年03月14日) | この物件について問い合わせる |
- 2階以上
- 最上階
- 角部屋
- バス・トイレ別
- 洗浄便座
- 追い炊き機能
- シャワー
- エアコン
- 給湯
- 洗面台
- 室内洗濯機置場
- フローリング
- クロ−ゼット
- ウォークインクローゼット
- 駐車2台可
- 駐輪場
- 倉庫
- バルコニ−
- TVモニターフォン
- ケーブルテレビ
- 礼金ゼロ
写真
間取り図
物件詳細情報
| 物件番号 | CF0358 | 所在地 | 松江市春日町44 |
|---|---|---|---|
| 種別 | アパート、コーポ | 構造 | 鉄骨造 |
| 建築年月 | 2002年10月 | 間取り | 2LDK |
| 専有面積 | 62.15m² | 向き | 東 |
| 建物階数 | 2階建 | 駐車場 | 有(料金別) |
| 駐車料金 | 5,500円 | 所在階数 | 2階部 |
| 取引形態 | 仲介 | 仲介料 | 71,500円 |
| 敷き引き | なし | ||
| 保険料 | 住宅総合保険に加入要 2年間(更新必要) | ||
| 校区 | 城北小 ・ 松江一中 | ||
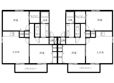
| 備考 | 【間取り】洋7.5帖 ・ 洋8帖 ・ LDK11.5帖 ★特 典:更新料不要、礼金なし、入居時のカギ交換費用不要 ■周 辺:しまむら春日店、城北産婦人科近く ■設 備:浴室追い炊き機能付、洗面シャワー付き、クローゼット(収納容量多いです) ■駐車場:敷地内 2台分で月額5,500円となります。(並列駐車) ■退去時:ハウスクリーニング費用をご負担いただきます。 ■保証会社要加入:初回保証料(賃料総額の40%) / 連帯保証人1名必要 1年毎更新料(15,000円) / 賃料振替手数料毎月440円(税込) ■くらしーど24要加入:月額880円 ※物件写真、間取りが現況と異なる(反転等)場合、現況を優先します。 |
||
| 物件番号 | CF0358 |
|---|---|
| 所在地 | 松江市春日町44 |
| 種別 | アパート、コーポ |
| 構造 | 鉄骨造 |
| 建築年月 | 2002年10月 |
| 間取り | 2LDK |
| 専有面積 | 62.15m² |
| 向き | 東 |
| 建物階数 | 2階建 |
| 駐車場 | 有(料金別) |
| 駐車料金 | 5,500円 |
| 所在階数 | 2階部 |
| 取引形態 | 仲介 |
| 仲介料 | 71,500円 |
| 敷き引き | なし |
| 保険料 | 住宅総合保険に加入要 2年間(更新必要) |
| 校区 | 城北小 ・ 松江一中 |
| 備考 | 【間取り】洋7.5帖 ・ 洋8帖 ・ LDK11.5帖 ★特 典:更新料不要、礼金なし、入居時のカギ交換費用不要 ■周 辺:しまむら春日店、城北産婦人科近く ■設 備:浴室追い炊き機能付、洗面シャワー付き、クローゼット(収納容量多いです) ■駐車場:敷地内 2台分で月額5,500円となります。(並列駐車) ■退去時:ハウスクリーニング費用をご負担いただきます。 ■保証会社要加入:初回保証料(賃料総額の40%) / 連帯保証人1名必要 1年毎更新料(15,000円) / 賃料振替手数料毎月440円(税込) ■くらしーど24要加入:月額880円 ※物件写真、間取りが現況と異なる(反転等)場合、現況を優先します。 |
14 since 2026-01-14
地図
この物件の周辺地図を開く取り扱い店舗
(有)不動産ラインズ
〒690-0825 島根県松江市学園2丁目6-3
[免許番号]島根県知事(8)第825号
公益社団法人 全国宅地建物取引業保証協会会員
公益社団法人 島根県宅地建物取引業協会会員
一般社団法人 全国賃貸不動産管理業協会会員

- 0852-22-3001
ご連絡の際は「山陰不動産ナビを見た」と言うとスムーズです - FAX
- 0852-22-3050

























