| 賃料/共益費 6.8万円/2,000円 礼金/敷金 無し/1ヶ月 現況 商談中 | この物件について問い合わせる |
- 2階以上
- 最上階
- 南向き
- IHコンロ
- コンロ2口以上
- バス・トイレ別
- 洗浄便座
- シャワー
- エアコン
- 給湯
- 洗面台
- 室内洗濯機置場
- フローリング
- クロ−ゼット
- 駐車2台可
- 駐輪場
- バルコニ−
- TVモニターフォン
- ケーブルテレビ
- 即入居可
- 礼金ゼロ
- リフォーム物件
写真
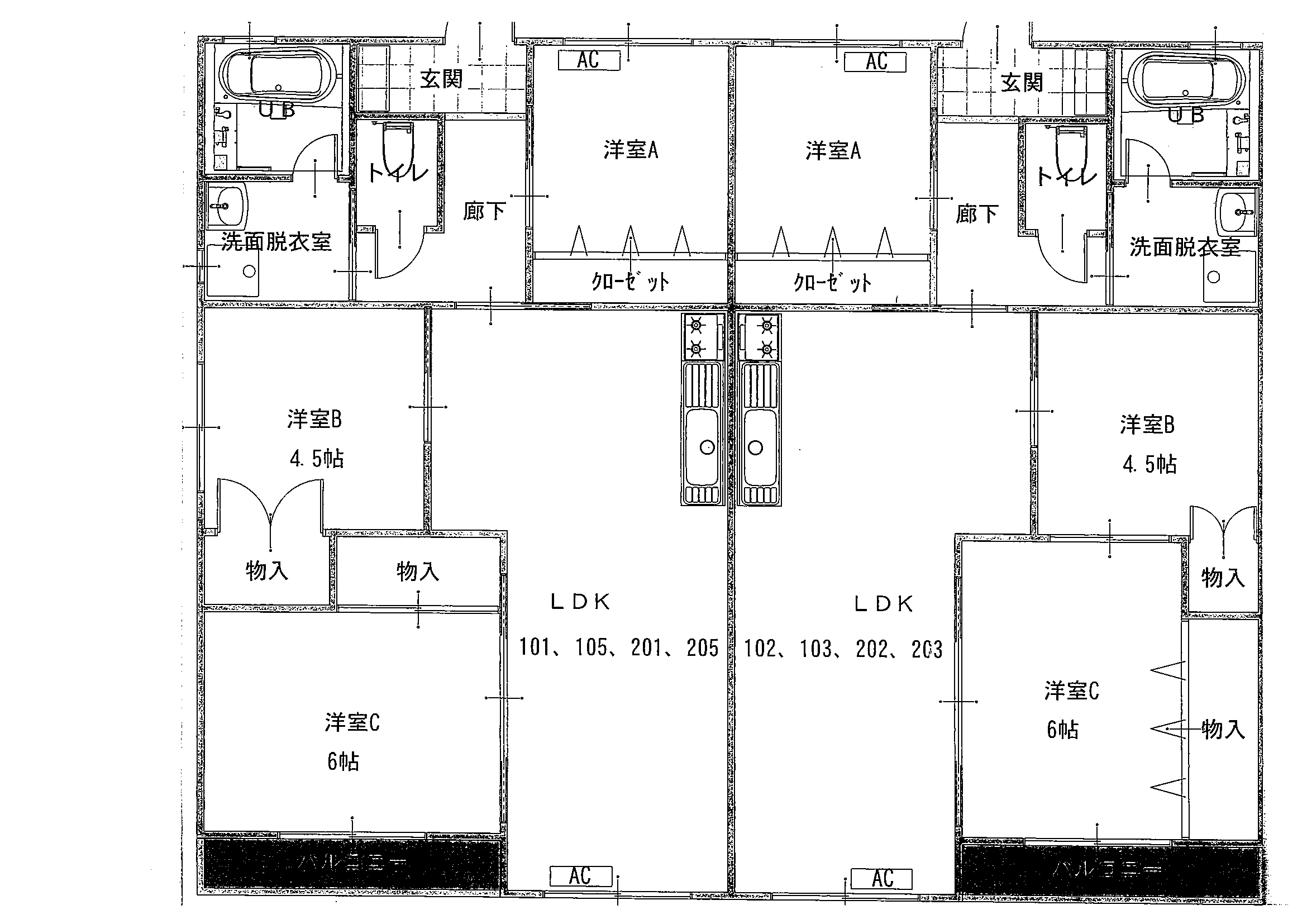
間取り図
物件詳細情報
| 物件番号 | CF0369 | 所在地 | 松江市学園2丁目5番2号 |
|---|---|---|---|
| 種別 | アパート、コーポ | 構造 | 木造 |
| 建築年月 | 1997年2月 | 間取り | 3LDK |
| 専有面積 | 70m² | 向き | 南 |
| 建物階数 | 2階建 | 駐車場 | 有(料金別) |
| 駐車料金 | 3,300円 | 所在階数 | 2階部 |
| 取引形態 | 仲介 | 仲介料 | 74,800円 |
| 敷き引き | |||
| 保険料 | 住宅総合保険加入要 | ||
| 校区 | 母衣小/二中 | ||
| 備考 | 【間取り】洋6帖・洋4.5帖・洋室4帖・LDK14 ■周 辺:イオン菅田店/小児科/皮膚科/保育園/菅田公園‥とても便利です ■設 備:新品(洗面台/トイレ/エアコン2基/照明器具/玄関エントリーキー) ■駐車場:2台目3,300円 ※台数に限りがありますので事前にご確認下さい ■退去時:ハウスクリーニング費用をご負担頂きます ■保証会社要加入:初回保証料(賃料総額の40%)/連帯保証人1名必要 1年毎更新料15,000円 /賃料等振替手数料毎月440円(税込) ■くらしーど24要加入:月額880円 ※物件写真、間取りが現況と異なる(間取りの反転・壁紙の色・床材等)場合、現況を優先します。 |
||
| 物件番号 | CF0369 |
|---|---|
| 所在地 | 松江市学園2丁目5番2号 |
| 種別 | アパート、コーポ |
| 構造 | 木造 |
| 建築年月 | 1997年2月 |
| 間取り | 3LDK |
| 専有面積 | 70m² |
| 向き | 南 |
| 建物階数 | 2階建 |
| 駐車場 | 有(料金別) |
| 駐車料金 | 3,300円 |
| 所在階数 | 2階部 |
| 取引形態 | 仲介 |
| 仲介料 | 74,800円 |
| 敷き引き | |
| 保険料 | 住宅総合保険加入要 |
| 校区 | 母衣小/二中 |
| 備考 | 【間取り】洋6帖・洋4.5帖・洋室4帖・LDK14 ■周 辺:イオン菅田店/小児科/皮膚科/保育園/菅田公園‥とても便利です ■設 備:新品(洗面台/トイレ/エアコン2基/照明器具/玄関エントリーキー) ■駐車場:2台目3,300円 ※台数に限りがありますので事前にご確認下さい ■退去時:ハウスクリーニング費用をご負担頂きます ■保証会社要加入:初回保証料(賃料総額の40%)/連帯保証人1名必要 1年毎更新料15,000円 /賃料等振替手数料毎月440円(税込) ■くらしーど24要加入:月額880円 ※物件写真、間取りが現況と異なる(間取りの反転・壁紙の色・床材等)場合、現況を優先します。 |
549 since 2026-02-04
地図
この物件の周辺地図を開く取り扱い店舗
(有)不動産ラインズ
〒690-0825 島根県松江市学園2丁目6-3
[免許番号]島根県知事(8)第825号
公益社団法人 全国宅地建物取引業保証協会会員
公益社団法人 島根県宅地建物取引業協会会員
一般社団法人 全国賃貸不動産管理業協会会員

- 0852-22-3001
ご連絡の際は「山陰不動産ナビを見た」と言うとスムーズです - FAX
- 0852-22-3050


























