| 賃料/共益費 6.6万円/ 礼金/敷金 無し/1ヶ月 現況 空室待ち(入居可能日:2026年04月18日) | この物件について問い合わせる |
- 2階以上
- 最上階
- 角部屋
- 南向き
- ガスコンロ
- システムキッチン
- バス・トイレ別
- 洗浄便座
- シャワー
- エアコン
- 給湯
- 洗面台
- 室内洗濯機置場
- フローリング
- クロ−ゼット
- 駐車2台可
- 駐輪場
- バルコニ−
- ケーブルテレビ
- インターネット
- 学生可
- 礼金ゼロ
写真
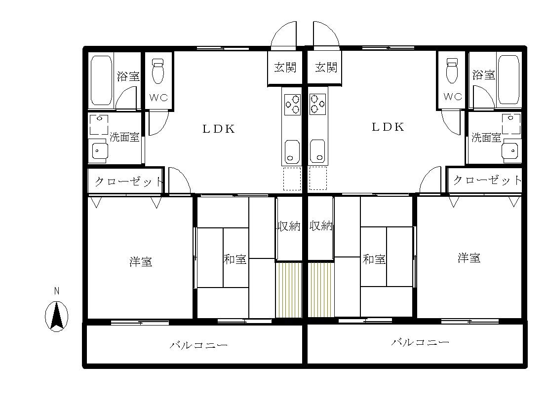
間取り図
物件詳細情報
| 物件番号 | CF0409 | 所在地 | 松江市黒田町72−4 |
|---|---|---|---|
| 種別 | アパート、コーポ | 構造 | 鉄骨造 |
| 建築年月 | 1997年9月 | 間取り | 2LDK |
| 専有面積 | 56.05m² | 向き | 南 |
| 建物階数 | 3階建 | 駐車場 | 有(料金込み) |
| 駐車料金 | 所在階数 | 3階部 | |
| 取引形態 | 仲介 | 仲介料 | 0円 |
| 敷き引き | なし | ||
| 保険料 | 住宅総合保険加入要 | ||
| 校区 | 法吉小/松江一中 | ||
| 備考 | 【間取り】 洋8帖 ・ 和6帖 ・ LDK10帖 ★特典:礼金・仲介手数料/契約更新料不要・入居時のカギ交換費用不要 ■周 辺:スーパー、ホームセンター、コンビニ近く ■設 備:システムキッチン3口ガスコンロ、洗面シャワー付 ■駐車場:敷地内 2台分賃料に含みます ■退去時:ハウスクリーニング費用をご負担いただきます ■保証会社要加入:初回保証料(賃料総額の40%) / 連帯保証人1名必要 1年毎更新料 15,000円 / 賃料等振替手数料月額440円(税込) ■くらしーど24要加入:月額880円 ■その他:短期解約(1年以内)の場合、違約金(賃料総額の1ヵ月分)有り ※物件写真、間取り等が現況と異なる(間取りの反転・壁紙の色・床材等)場合、現況を優先します。 |
||
| 物件番号 | CF0409 |
|---|---|
| 所在地 | 松江市黒田町72−4 |
| 種別 | アパート、コーポ |
| 構造 | 鉄骨造 |
| 建築年月 | 1997年9月 |
| 間取り | 2LDK |
| 専有面積 | 56.05m² |
| 向き | 南 |
| 建物階数 | 3階建 |
| 駐車場 | 有(料金込み) |
| 駐車料金 | |
| 所在階数 | 3階部 |
| 取引形態 | 仲介 |
| 仲介料 | 0円 |
| 敷き引き | なし |
| 保険料 | 住宅総合保険加入要 |
| 校区 | 法吉小/松江一中 |
| 備考 | 【間取り】 洋8帖 ・ 和6帖 ・ LDK10帖 ★特典:礼金・仲介手数料/契約更新料不要・入居時のカギ交換費用不要 ■周 辺:スーパー、ホームセンター、コンビニ近く ■設 備:システムキッチン3口ガスコンロ、洗面シャワー付 ■駐車場:敷地内 2台分賃料に含みます ■退去時:ハウスクリーニング費用をご負担いただきます ■保証会社要加入:初回保証料(賃料総額の40%) / 連帯保証人1名必要 1年毎更新料 15,000円 / 賃料等振替手数料月額440円(税込) ■くらしーど24要加入:月額880円 ■その他:短期解約(1年以内)の場合、違約金(賃料総額の1ヵ月分)有り ※物件写真、間取り等が現況と異なる(間取りの反転・壁紙の色・床材等)場合、現況を優先します。 |
340 since 2024-01-18
地図
この物件の周辺地図を開く取り扱い店舗
(有)不動産ラインズ
〒690-0825 島根県松江市学園2丁目6-3
[免許番号]島根県知事(8)第825号
公益社団法人 全国宅地建物取引業保証協会会員
公益社団法人 島根県宅地建物取引業協会会員
一般社団法人 全国賃貸不動産管理業協会会員

- 0852-22-3001
ご連絡の際は「山陰不動産ナビを見た」と言うとスムーズです - FAX
- 0852-22-3050


























