| 賃料/共益費 3.4万円/ 礼金/敷金 無し/1ヶ月 現況 空室中 | この物件について問い合わせる |
- 1階の物件
- 南向き
- バス・トイレ別
- 洗浄便座
- シャワー
- エアコン
- 給湯
- 室内洗濯機置場
- フローリング
- 駐輪場
- TVモニターフォン
- BSアンテナ
- インターネット
- 学生可
- 礼金ゼロ
写真
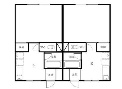
間取り図
物件詳細情報
| 物件番号 | CF0798 | 所在地 | 松江市学園1丁目3−12 |
|---|---|---|---|
| 種別 | アパート、コーポ | 構造 | 木造 |
| 建築年月 | 1987年4月 | 間取り | 1K |
| 専有面積 | 24.22m² | 向き | 南 |
| 建物階数 | 2階建 | 駐車場 | 有(料金別) |
| 駐車料金 | 1,100円 | 所在階数 | 1階部 |
| 取引形態 | 仲介 | 仲介料 | 35,700円 |
| 敷き引き | なし | ||
| 保険料 | 住宅総合保険加入必要 | ||
| 校区 | |||
| 備考 | 【間取り】洋6帖 ・ K3帖 ★特 典:仲介料不要/礼金/契約更新料不要、光インターネット使用料不要・カギ交換費用不要 ■周 辺:ドラッグストア/バス停/スーパーマーケット‥ ■設 備:光インターネット無料(使い放題)、2口ガスコンロ設置可能、ウォシュレット ■駐車場:敷地内 大型不可 ※台数に限りがありますので事前にご確認下さい。 ■退去時:ハウスクリーニング費用をご負担いただきます。 ■違約金:短期解約(1年以内)の場合、違約金が発生します ■保証会社要加入:初回保証料 16,000円 / 連帯保証人1名必要 1年毎更新料 15,000円 / 賃料振替手数料:毎月440円(税込) ■くらしーど24要加入:月額880円 ※物件写真、間取り等が現況と異なる(間取りの反転・壁紙の色・床材等)場合、現況を優先します。 |
||
| 物件番号 | CF0798 |
|---|---|
| 所在地 | 松江市学園1丁目3−12 |
| 種別 | アパート、コーポ |
| 構造 | 木造 |
| 建築年月 | 1987年4月 |
| 間取り | 1K |
| 専有面積 | 24.22m² |
| 向き | 南 |
| 建物階数 | 2階建 |
| 駐車場 | 有(料金別) |
| 駐車料金 | 1,100円 |
| 所在階数 | 1階部 |
| 取引形態 | 仲介 |
| 仲介料 | 35,700円 |
| 敷き引き | なし |
| 保険料 | 住宅総合保険加入必要 |
| 校区 | |
| 備考 | 【間取り】洋6帖 ・ K3帖 ★特 典:仲介料不要/礼金/契約更新料不要、光インターネット使用料不要・カギ交換費用不要 ■周 辺:ドラッグストア/バス停/スーパーマーケット‥ ■設 備:光インターネット無料(使い放題)、2口ガスコンロ設置可能、ウォシュレット ■駐車場:敷地内 大型不可 ※台数に限りがありますので事前にご確認下さい。 ■退去時:ハウスクリーニング費用をご負担いただきます。 ■違約金:短期解約(1年以内)の場合、違約金が発生します ■保証会社要加入:初回保証料 16,000円 / 連帯保証人1名必要 1年毎更新料 15,000円 / 賃料振替手数料:毎月440円(税込) ■くらしーど24要加入:月額880円 ※物件写真、間取り等が現況と異なる(間取りの反転・壁紙の色・床材等)場合、現況を優先します。 |
4 since 2026-05-08
地図
この物件の周辺地図を開く取り扱い店舗
(有)不動産ラインズ
〒690-0825 島根県松江市学園2丁目6-3
[免許番号]島根県知事(8)第825号
公益社団法人 全国宅地建物取引業保証協会会員
公益社団法人 島根県宅地建物取引業協会会員
一般社団法人 全国賃貸不動産管理業協会会員

- 0852-22-3001
ご連絡の際は「山陰不動産ナビを見た」と言うとスムーズです - FAX
- 0852-22-3050

























